
【项目地址】:黄埔雅居乐富春山居
【项目面积】:197㎡
【项目预算】:约为18万元
本案为新中式混搭的设计风格,业主是一个成功人士,性格大气但不缺细心,讲求细节风水及文化知识能够接受新颖先进的科技商品,要求简单低调,简单大气不失细节内涵。

▲客厅

▲餐厅1

▲餐厅2
业主想要中式风格而又不想“老气横秋”,家人又喜欢美式的风格,所以给出的设计方案是在公共区域采用中式风格,在卧室采用美式元素。

▲书房
中西元素怎样才能结合的融洽?不是纯粹的元素堆砌而是通过对传统文化的认识,将美式元素和传统元素结合在一起以现代人的审美需求来打造赋有传统韵味的事物,让传统艺术在当今社会得到合适的体现。

▲主卧

▲女儿房
混搭风格糅合东西方美学精华元素,将不同地域文化内涵完美而和谐地结合于一体,充分利用空间形式与材料,创造出个性化的家居环境。
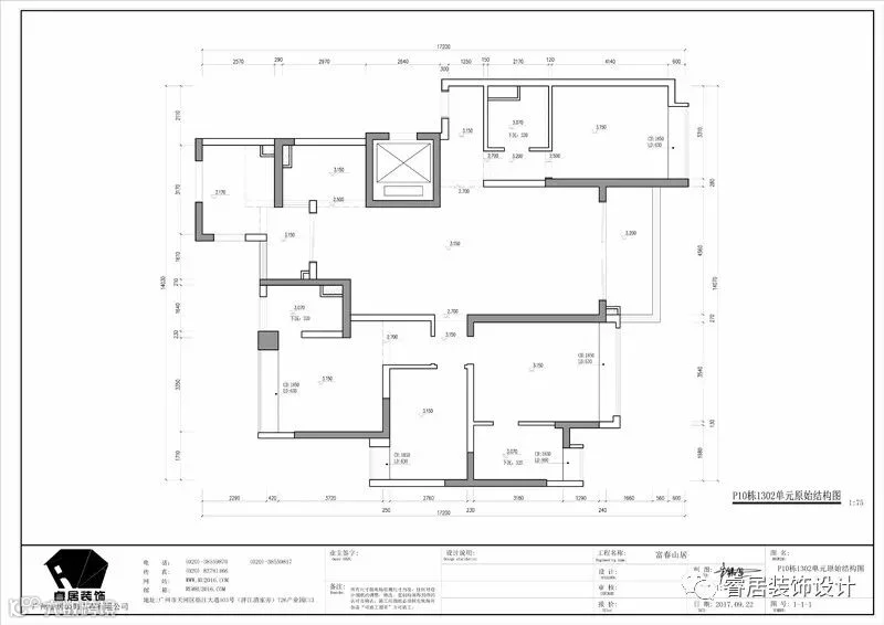
原始尺寸图

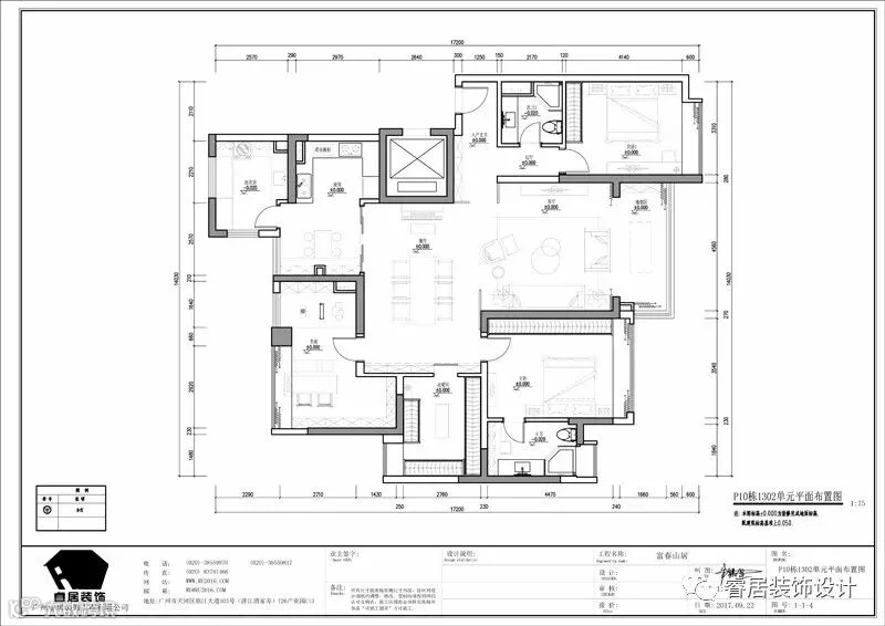
平面设计方案

【本案例设计师简介】 :孙泽少
中国高级室内设计师
中国高级建筑师
中国室内装饰协会(CIDA)注册设计师
国际商业美术一级注册师
CIID装饰协会会员
从业时间:16年
设计感言:设计是人与人、人与物、人与空间的沟通,一个家的设计标准应该是为空间内使用的人而服务,空间规划不仅仅要考虑到如何做的漂亮,还要让生活在其中的每一个成员在使用过程中多一点交流与沟通。
案例作品:雅居乐富春山居、雅居乐剑桥郡、保利西海岸、中海原山别墅、剑桥汇等


关于一个项目,
很多时候可能业主也不清楚自己想要什么,
而作为相对而言的设计师,
仅仅也只是一个懂得多一点专业技能,
更加不可以按照自己的喜好和习惯去为业主设计。
这样,我们设计师在操作项目的时候更加多的会“聆听”
一个空间需要什么,缺少什么,
把空间需要的东西融合起来,仅此而已。
您刚好需要,我们睿居装饰刚好专业!
睿居装饰
● 最 前 沿 的 设 计 资 讯 ●

长按指纹识别二维码,一分钟发现最设计
公司地址:广州市天河区珠江新城临江大道T26产业园C13
咨询热线:020-38559870 020-38559817
网址:www.gzruiju.com
睿居装饰,以口碑铸品牌,品质决定价值。

