
简介
项目地址:白云·南湖半岛花园
项目面积:140㎡
风格定位:新中式
设计师:陈汉州、朱锡泉

▲“玄之又玄,众妙之门”,进户首入眼帘的就是与白色墙面相呼应的水墨画,有种杨万里“泉眼无声惜细流,树阴照水爱晴柔”的意境,木质几柜上摆放花瓶,插上莲蓬枝,集静谧与清雅为一体,宛如一首凝练的诗歌,处处流露出意洁高雅、无花自芳的气息。

▲客厅-方桌圆椅,代表着东方人为人处世方圆有度,同时原木家具给人更多的是温暖与舒适的生活感,即使选用了深咖色,不仅没有厚重感,反而能带来一种沉稳、安静的氛围。

▲餐厅

▲主人房

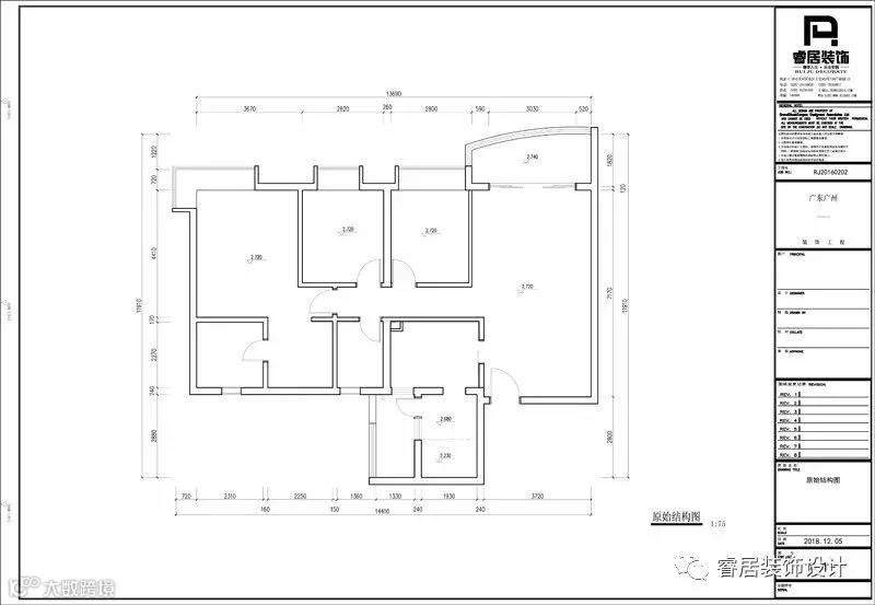
▲原始结构图

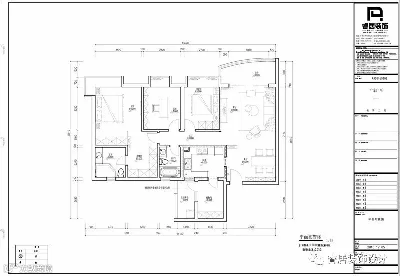
▲平面布置方案

关于一个项目,
很多时候可能业主也不清楚自己想要什么,
而作为相对而言的设计师,
仅仅也只是一个懂得多一点专业技能,
更加不可以按照自己的喜好和习惯去为业主设计。
这样,我们设计师在操作项目的时候更加多的会“聆听”
一个空间需要什么,缺少什么,
把空间需要的东西融合起来,仅此而已。
您刚好需要,我们睿居装饰刚好专业!
睿居装饰
● 最 前 沿 的 设 计 资 讯 ●

长按指纹识别二维码,一分钟发现最设计
Long fingerprint identification qr code, one minute found the most designed
公司地址:广州市天河区珠江新城临江大道T26产业园C13
Company address: C13, T26 industrial park, linjiang avenue, zhujiang new town, tianhe district, guangzhou
咨询热线:020-38559870 020-38559817
网址:www.gzruiju.com
睿居装饰,以口碑铸品牌,品质决定价值。
Ruiju decoration, brand cast by word of mouth, quality decides value.

