
每一件中式家具就像一首经典老歌,在每一个流动的音符中都蕴涵着深深的韵味,只有细细品味,才能感受其独特的魅力。具有中国传统文化色彩的高品味雅居,室内的每一件物品背后都仿佛蕴藏着中式文化的安静与朴素,并体现着时空雕刻的痕迹。完美的品质感形成对居住者人性化关怀,让居家生活充满感动。

▲客厅餐厅连通形成开阔的空间。除去繁杂的喧闹,回归于恬静与纯粹。营造出浓浓的温馨氛围。
▲客厅空间纯净简洁没有过多的装饰。圆凳的造型突显中国传统手工艺的精湛技艺,内敛而不张扬,散发着从容淡雅的生活气息。

▲过道体现出东方文化底蕴,古色古香的韵味。

▲主人房用红木色的家居却呈现出古典的韵味,床头悬挂的装饰品避免背景墙的单调,美化了室内环境。

▲父母房装修设计注重舒适度。

▲男孩房

▲女孩房

▲卫生间

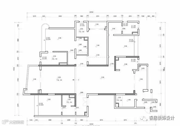
▲原始尺寸图

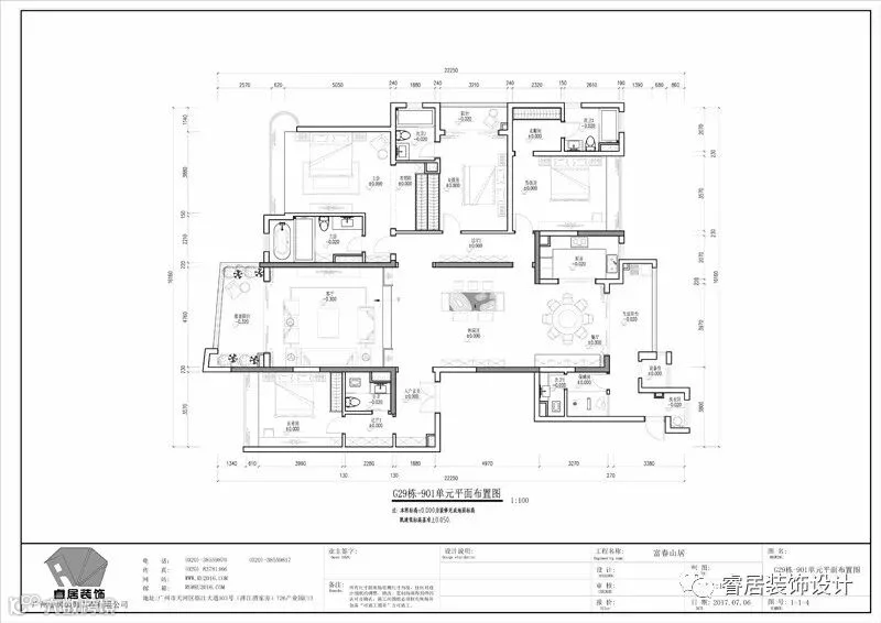
▲平面布置方案
本案总设计师:肖映兆

*个人简介
2005年进入室内设计装饰行业,对高档豪宅、别墅有独特的见解,同样也是广州睿居装饰的创始人。
*设计理念
好的设计,需要足够的阅历与实践。
*擅长风格
欧式,现代简约,新中式,新古典等等
*主要荣誉
2012获得土巴兔网站优秀作品奖
2013作品上了雅居生活杂志5月刊
2017年获得红棉奖“2017年度室内设计奖”暨最美雅奢空间设计奖
*成功案例
珠江新城珠光御景
龙光香悦山别墅
嘉裕.君玥公馆
雅居乐.富春山居
汇景新城
侨建御溪谷
保利.东江首府
马来西亚酒店

关于一个项目,
很多时候可能业主也不清楚自己想要什么,
而作为相对而言的设计师,
仅仅也只是一个懂得多一点专业技能,
更加不可以按照自己的喜好和习惯去为业主设计。
这样,我们设计师在操作项目的时候更加多的会“聆听”
一个空间需要什么,缺少什么,
把空间需要的东西融合起来,仅此而已。
您刚好需要,我们睿居装饰刚好专业!
睿居装饰
● 最 前 沿 的 设 计 资 讯 ●

长按指纹识别二维码,一分钟发现最设计
公司地址:广州市天河区珠江新城临江大道T26产业园C13
咨询热线:020-38559870 020-38559817
网址:www.gzruiju.com
睿居装饰,以口碑铸品牌,品质决定价值。

