
现代奢华装点室内空间的高科技材料和元素却能够在其中完全体现本身的品质和质感,在设计上,经典与现代的元素被完美地结合起来,能够用理性而睿智的态度演绎居住者讲究高品质且简单舒适的生活态度,家居空间更具表演性 。现代低奢风格是一种时尚与实用并重的新风尚。
案例信息
项目地址:雅居乐剑桥郡
建筑面积:303㎡
装修风格:现代低奢
设计说明:本案位于广州番禺南村镇兴南大道,整体的设计风格定义为现代低奢。低调奢华是一种生活态度,一种高品质的生活方式,一种优质生活的表达、格调与品位的象征,同时也是一种风格的追求。本案在设计中注重硬装修手法的简洁,但也并不像现代简约那样随意。在低调奢华的空间里,看似简洁朴素的外表之下却可以折射出一种隐藏着的贵族气质,给人一种大气,富有内涵的高贵品质。
“
案例赏析
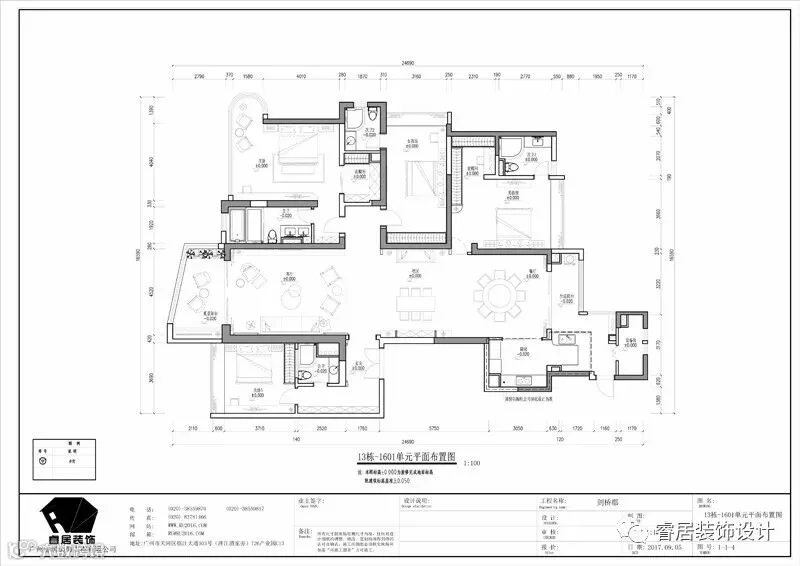
▲原始户型图

▲平面布局图

▲客厅

▲餐厅

▲主人房

▲男孩房

▲女孩房
设计回归生活,追求朴质而富有艺术格调的现代风格,以低奢的设计表达生活的本质与唯美,融合时尚、艺术、设计于一体,呈现出与众不同的设计气质。我们的设计打造你的家,适合你自己的家。

关于一个项目,
很多时候可能业主也不清楚自己想要什么,
而作为相对而言的设计师,
仅仅也只是一个懂得多一点专业技能,
更加不可以按照自己的喜好和习惯去为业主设计。
这样,我们设计师在操作项目的时候更加多的会“聆听”
一个空间需要什么,缺少什么,
把空间需要的东西融合起来,仅此而已。
您刚好需要,我们睿居装饰刚好专业!
睿居装饰
● 最 前 沿 的 设 计 资 讯 ●

长按指纹识别二维码,一分钟发现最设计
公司地址:广州市天河区珠江新城临江大道T26产业园C13
咨询热线:020-38559870 020-38559817
网址:www.gzruiju.com
睿居装饰,以口碑铸品牌,品质决定价值。

