
本案以新现代主义的审美视角,以理性的思考方式回归住宅的本质。在强调秩序与功能的同时,将空间具化为实用与美学交织相融的生命体,赋予空间轻奢、雅致而舒适的生活氛围,打造一个都市中有品质的安居之所。

▲玄关:以其本真生活状态作为思考,在纷繁的“风格”中,保持冷静和理性,直观地洞见到美与奢适的统一性,实现超逾日常且有质地的生活空间。

▲客厅:“增一分则太长,减一分则太短;着粉则太白,施朱则太赤。”如若借此形容表意本案——那即是一切都归于恰到好处的有感而发。

▲模具房

▲主卧:体现精致、自然、从容的生活方式,提取自然及生活中的美学元素,构筑出艺术氤氲的舒适空间。

▲次卧一
▲次卧二

▲阳台

▲主卫

▲鸟瞰图

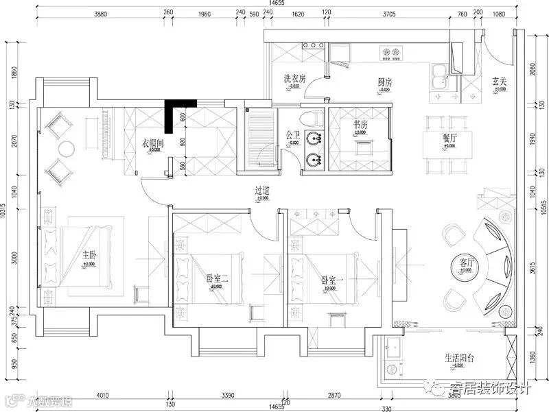
▲原始平面图

▲平面布置方案
项目设计师:肖映兆
*个人简介
2005年进入室内设计装饰行业,对高档豪宅、别墅有独特的见解,同样也是广州睿居装饰的创始人。
*设计理念
好的设计,需要足够的阅历与实践。
*擅长风格
欧式,现代简约,新中式,新古典等等
*主要荣誉
2012获得土巴兔网站优秀作品奖
2013作品上了雅居生活杂志5月刊
2017年获得红棉奖“2017年度室内设计奖”暨最美雅奢空间设计奖
*成功案例
珠江新城珠光御景
龙光香悦山别墅
嘉裕.君玥公馆
雅居乐.富春山居
汇景新城
侨建御溪谷
保利.东江首府
马来西亚酒店


【睿居装饰】
● 最 前 沿 的 设 计 资 讯 ●
长按指纹识别二维码,一分钟发现最设计

公司地址:广州市天河区珠江新城临江大道T26产业园C13
Company address: C13, T26 industrial park, linjiang avenue, zhujiang new town, tianhe district, guangzhou
咨询热线:020-38559870 020-38559817
网址:www.gzruiju.com
睿居装饰,以口碑铸品牌,品质决定价值。
Ruiju decoration, brand cast by word of mouth, quality decides value.

