
项目名称:黄埔-萝岗·中海原山别墅
项目面积:约为500平方
装修预算:约为60万
设计风格:欧式风格
本案为欧式风格设计,将浪漫优雅的欧式和古典的法式精美的结合在一起。业主是位追求完美的人,喜欢欧式的罗马柱和石材,所以设计师根据业主的想法也在一些细节方面做了精致的处理。
项目总设计师:肖映兆
*个人简介
2005年进入室内设计装饰行业,对高档豪宅、别墅有独特的见解,同样也是广州睿居装饰的创始人。
*设计理念
好的设计,需要足够的阅历与实践。
*擅长风格
欧式,现代简约,新中式,新古典等等
*主要荣誉
2012获得土巴兔网站优秀作品奖
2013作品上了雅居生活杂志5月刊
2017年获得红棉奖“2017年度室内设计奖”暨最美雅奢空间设计奖
*成功案例
珠江新城珠光御景
龙光香悦山别墅
嘉裕.君玥公馆
雅居乐.富春山居
汇景新城
侨建御溪谷
保利.东江首府
马来西亚酒店

一步入客厅,客厅明亮,宽敞,建筑元素具有很强的感染力,配以柔和的黄色调,绝对高端大气,优雅得体。而欧式新古典家具,更是兼具了欧洲皇家的奢华与典雅,艺术感十足,充分展现了业主的文化品位,是奢华与艺术的完美结合。



▲客餐厅
玉石墙面搭配矮柜和精美装饰物,具有层次感,带来欣赏性极强的视觉效果,并具有一种欧式的典雅与尊贵感。










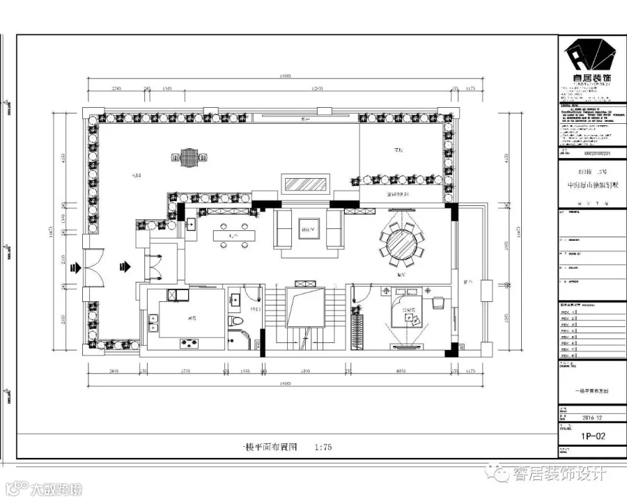
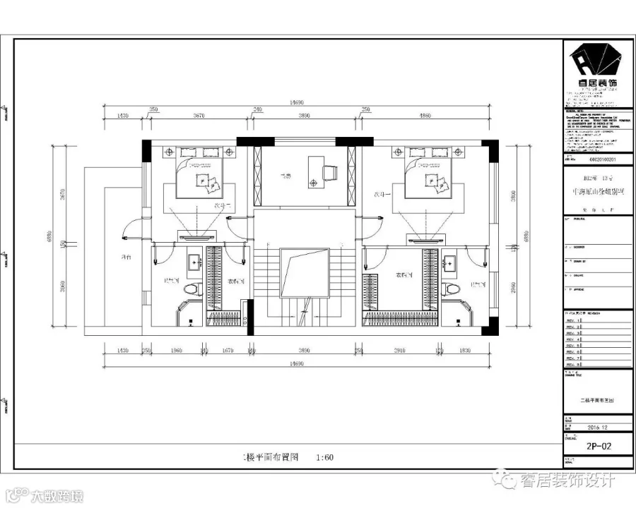
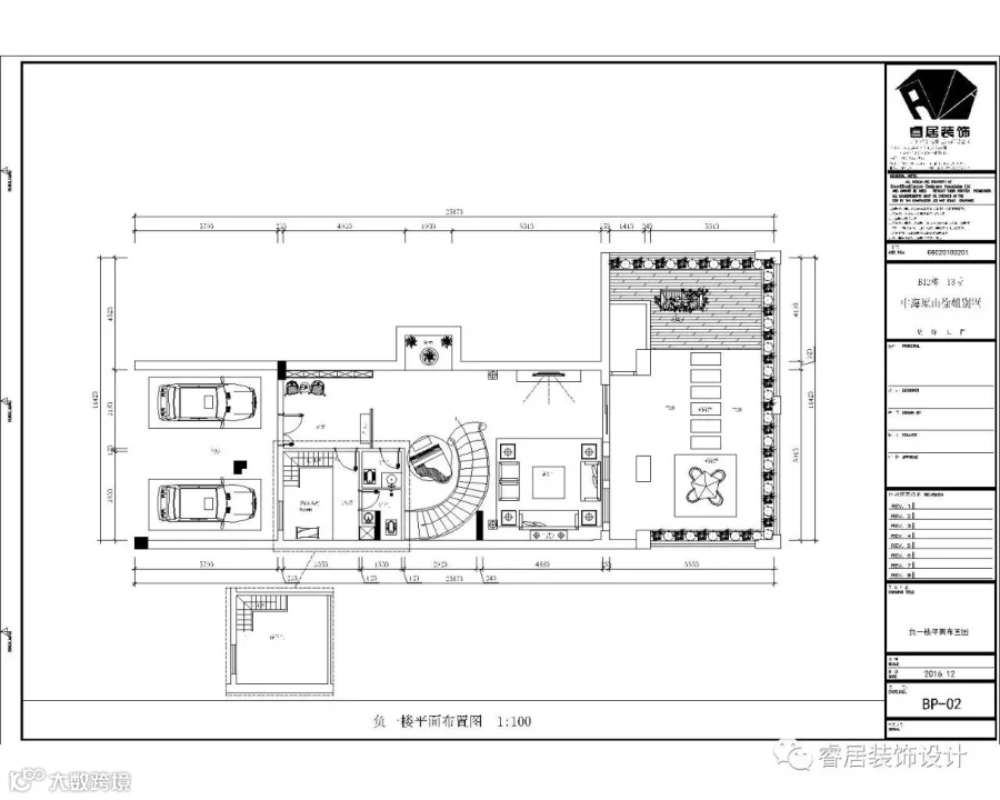
▼ 设计平面布置方案




关于一个项目,
很多时候可能业主也不清楚自己想要什么,
而作为相对而言的设计师,
仅仅也只是一个懂得多一点专业技能,
更加不可以按照自己的喜好和习惯去为业主设计。
这样,我们设计师在操作项目的时候更加多的会“聆听”
一个空间需要什么,缺少什么,
把空间需要的东西融合起来,仅此而已。
您刚好需要,我们睿居装饰刚好专业!
睿居装饰
● 最 前 沿 的 设 计 资 讯 ●

长按指纹识别二维码,一分钟发现最设计
公司地址:广州市天河区珠江新城临江大道T26产业园C13
咨询热线:020-38559870 020-38559817
网址:www.gzruiju.com
睿居装饰,以口碑铸品牌,品质决定价值。


