
项目地址:中海誉城别墅
项目面积:400平方
装修预算:40万
设计风格:现代简约风格
本案例为现代简约设计风格,家是心灵的港湾,随着人们在旅游中感受到简约的魅力,“简约但并不简单的装饰风格”。

▲负一层客厅

▲一层餐厅

▲一层客厅
当疲惫的身心对家的依恋越发强烈,人们想要的是轻松、自由的环境,“现代简约风格”自然就成为家居设计的一种风尚。

▲主人房

▲老人房

▲小孩房
现代人面临着城市的喧嚣和污染,激烈的竞争压力,还有忙碌的工作和紧张的生活。因而,更加向往清新自然、随意的居室环境。
【平面设计方案】

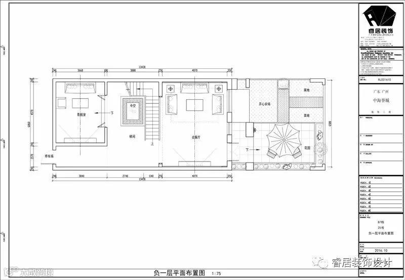
▲负一层平面设计方案

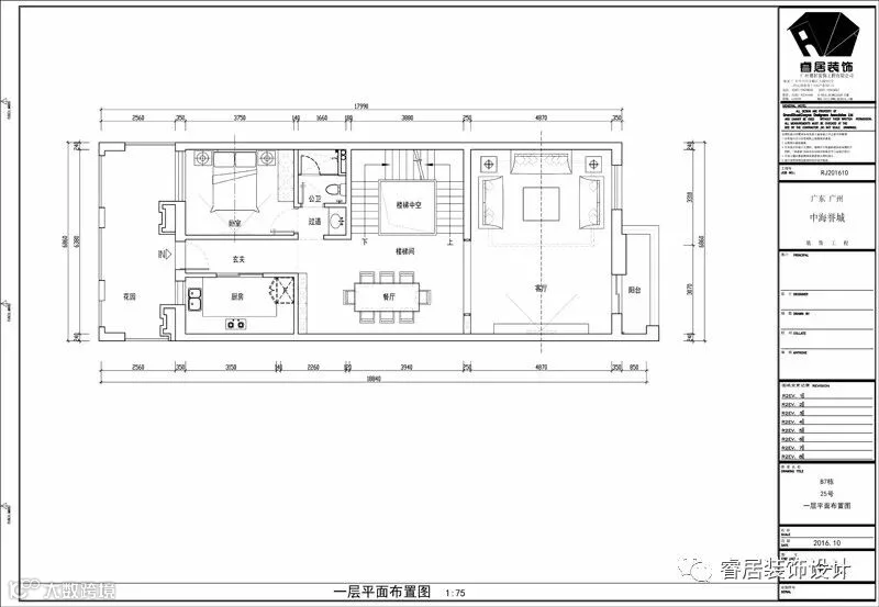
▲一层平面设计方案

▲二层平面设计方案

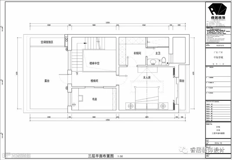
▲三层平面设计方案
项目总设计师:陈汉州
*个人简介
2001年毕业于广美
从业至今独立完成过国内外多项公装家装项目,以独特的设计手法为无数业主朋友完成各类项目,以认真及专业的知识赢得了业主朋友的认可及好评。
*设计理念
设计不流于形式,只为了更好的服务生活。
*成功案例
家装代表:唐宁公馆 、锦绣山庄、 御湖名邸、林语山庄、珠江公园御景、颐和高尔夫、方圆月岛、珊瑚天峰、万科花城、凯旋新世界、华南碧桂园、恒大御景半岛、保利香雪山、富春山居、
公装:加纳综合体规划
财富广场人力资源中心
东风路中国电网监控中心
广晟大厦化妆品公司
广晟大厦策划公司
番禺科技城办公室
珠江新城某私房菜
黄沙红酒专卖店


关于一个项目,
很多时候可能业主也不清楚自己想要什么,
而作为相对而言的设计师,
仅仅也只是一个懂得多一点专业技能,
更加不可以按照自己的喜好和习惯去为业主设计。
这样,我们设计师在操作项目的时候更加多的会“聆听”
一个空间需要什么,缺少什么,
把空间需要的东西融合起来,仅此而已。
您刚好需要,我们睿居装饰刚好专业!
睿居装饰
● 最 前 沿 的 设 计 资 讯 ●

长按指纹识别二维码,一分钟发现最设计
公司地址:广州市天河区珠江新城临江大道T26产业园C13
咨询热线:020-38559870 020-38559817
网址:www.gzruiju.com
睿居装饰,以口碑铸品牌,品质决定价值。

