
设计 / 品质 / 生活
Temperature of Love

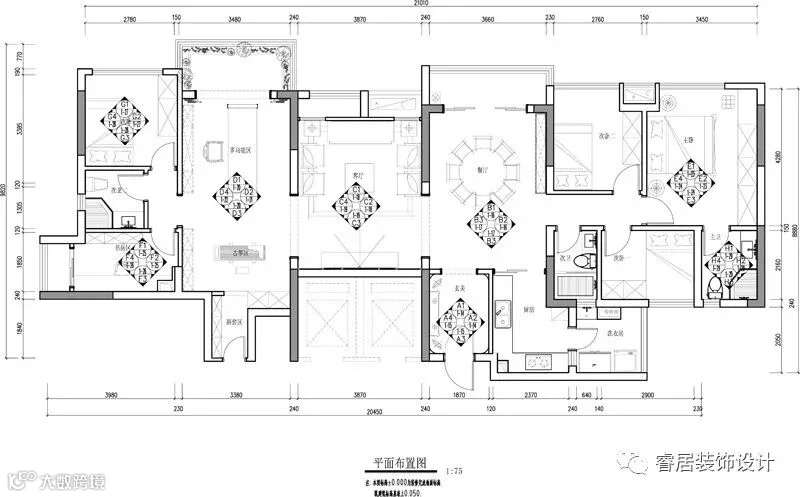
客 厅
以衣着比喻,如果说中国古典装修风格是华丽富贵的清廷宫装,那么新中式装修就是民国时代改良后的简约旗袍,繁复不再,典雅不改,保留古典韵味,融入新时代的舒适简洁。

玄 关
玄关,进出的必经之所。简约的摆件、护墙板将中国文化讲究意不直叙,情不表露的“含蓄”精神在一些细部上体现出来。而这,也正是想要呈现的——内敛大气。

餐 厅
一捧枫叶,是餐厅最浓烈的色彩,跳脱却不突兀,民以食为天,激发生命的律动。

多功能房及古筝区
一组古色古香的茶几与古筝隔出一方空间。每有故友旧人,或家人小憩,一览风景,或听一曲古筝,人生岂不快哉!

主 卧
主卧淡雅棉麻田园风。完全私属空间,彰显自由肆意的本心。枝头鸟、海中浪、瓶中花,自然情趣悄然流露,人与自然和谐共生。
断,
钟鼎世家的华丽空洞;
留下山水田园的自然洒脱;
舍,
封建枷锁的庄严沉闷;
改为舒适温馨的人文关怀;
离,
空间复杂层次感;
替以通透简约的实用性。

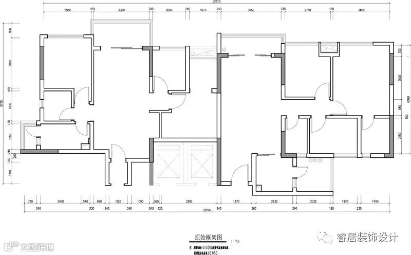
原始结构图

平面布置图
项 目 名 称 : 天河·时尚名苑
项 目 面 积 : 185平米
设 计 师 : 肖映兆、陈汉州
设 计 风 格:新中式
实 施 单 位: 广州睿居装饰工程有限公司

【睿居装饰】
● 最 前 沿 的 设 计 资 讯 ●
长按指纹识别二维码,一分钟发现最设计

公司地址:广州市天河区珠江新城临江大道T26产业园C13
Company address: C13, T26 industrial park, linjiang avenue, zhujiang new town, tianhe district, guangzhou
咨询热线:020-38559870 020-38559817
网址:www.gzruiju.com
睿居装饰,以口碑铸品牌,品质决定价值。
Ruiju decoration, brand cast by word of mouth, quality decides value.

