
项目地址 / project address: 雅居乐·富春山居
项目面积/ project area: 330㎡
装修预算 /Decorate a budget: 29.7万
设计风格 /Design style: 欧式风格
设计师 / designer: 陈汉州
本案为欧式设计风格,功能分区明确,公共区域精致典雅,休息区域清新舒适,营造明朗大气、优雅迷人的品质之家。
“设计的主要目的是功能,其次才是美观。在这两个前提之下做出来的设计,才能称之为好的作品。”

▲客厅/ sitting room
客厅的优雅来自于它精美饰品赋予的自信与细腻别致。

▲过道/ corridor

▲餐厅/ restaurant
餐厅整体显示了典雅明亮的欧式范儿,浅黄色、白色与银色相结合,和谐地搭配出优雅的气质,整个餐厅都有种非凡的格调。

▲书房/Study room
透露浓浓的生活气息,让人在轻松自如的气氛中更投入的工作,更自由的休息。

▲主人房/Master room
心再累,推开卧室房门的瞬间,都能拥抱那份专属的温馨。以浅蓝色碎花墙纸、窗帘、地毯为点缀,能与设计中的暖色调调和,让人更容易找到安全感和归属感。

▲男孩房/ boy room

▲女孩房/Girls room

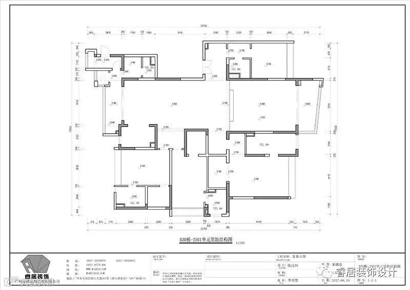
▲原始尺寸图/Original size drawing

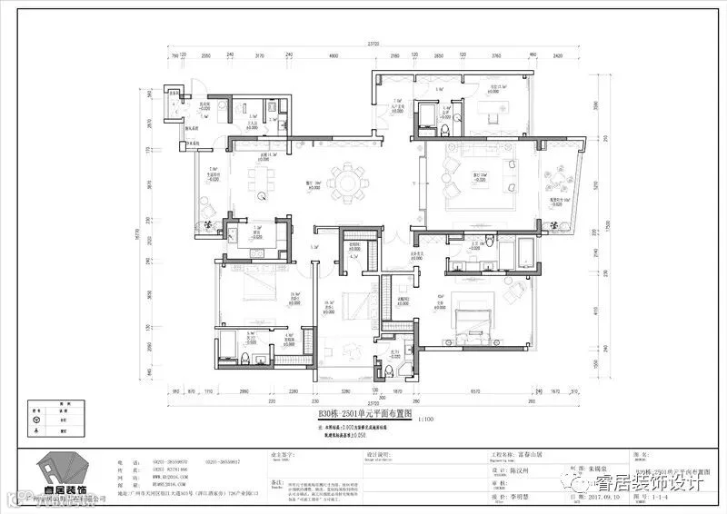
▲平面布置图/Floor plan
陈汉州:睿居设计总监
*个人简介
2001年毕业于广美
从业至今独立完成过国内外多项公装家装项目,以独特的设计手法为无数业主朋友完成各类项目,以认真及专业的知识赢得了业主朋友的认可及好评。
*设计理念
设计不流于形式,只为了更好的服务生活。
*成功案例
家装代表:唐宁公馆 、锦绣山庄、 御湖名邸、林语山庄、珠江公园御景、颐和高尔夫、方圆月岛、珊瑚天峰、万科花城、凯旋新世界、华南碧桂园、恒大御景半岛、保利香雪山、富春山居、
公装:加纳综合体规划
财富广场人力资源中心
东风路中国电网监控中心
广晟大厦化妆品公司
广晟大厦策划公司
番禺科技城办公室
珠江新城某私房菜
黄沙红酒专卖店


关于一个项目,
很多时候可能业主也不清楚自己想要什么,
而作为相对而言的设计师,
仅仅也只是一个懂得多一点专业技能,
更加不可以按照自己的喜好和习惯去为业主设计。
这样,我们设计师在操作项目的时候更加多的会“聆听”
一个空间需要什么,缺少什么,
把空间需要的东西融合起来,仅此而已。
您刚好需要,我们睿居装饰刚好专业!
睿居装饰
● 最 前 沿 的 设 计 资 讯 ●

长按指纹识别二维码,一分钟发现最设计
Long fingerprint identification qr code, one minute found the most designed
公司地址:广州市天河区珠江新城临江大道T26产业园C13
Company address: C13, T26 industrial park, linjiang avenue, zhujiang new town, tianhe district, guangzhou
咨询热线:020-38559870 020-38559817
网址:www.gzruiju.com
睿居装饰,以口碑铸品牌,品质决定价值。
Ruiju decoration, brand cast by word of mouth, quality decides value.

