
项目地址:御景壹号公馆
项目面积:70㎡
风格定位:北欧风格
设计师:朱锡泉
今天的是一套面积为70平米的现代北欧风格,业主是一对年轻的新婚夫妇,喜欢原木的自然和北欧的清新,崇尚简约明快,设计师根据业主的审美及需求,为他们打造了一个清新雅致的家居空间。
| 客厅 |
客厅的色彩搭配以浅灰原木为主色调,以木色或粉色点缀空间,而挂画则让整个空间焕然一新,充满了活力和生命力。
| 餐厅 |

餐厅金色的吊灯在空间中起到画龙点睛的作用,亮眼又别致,简洁的同时又稍带一些尚感,餐厅的布置非常简洁,但却格外的清新文艺。
| 厨房 |

| 楼梯间 |

| 主卧 |

主卧采用低饱和度灰白色,营造温柔静谧的氛围,搭配白色悬空床头柜,实用简洁又大气。
| 多功能室 |

榻榻米客房,收纳功能强大。靠墙的书桌+书架,中间留出了足够活动的空间。
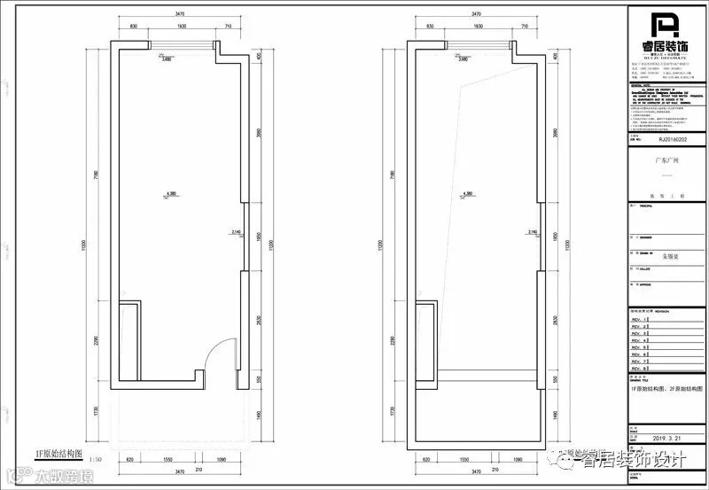
| 原始结构图 |

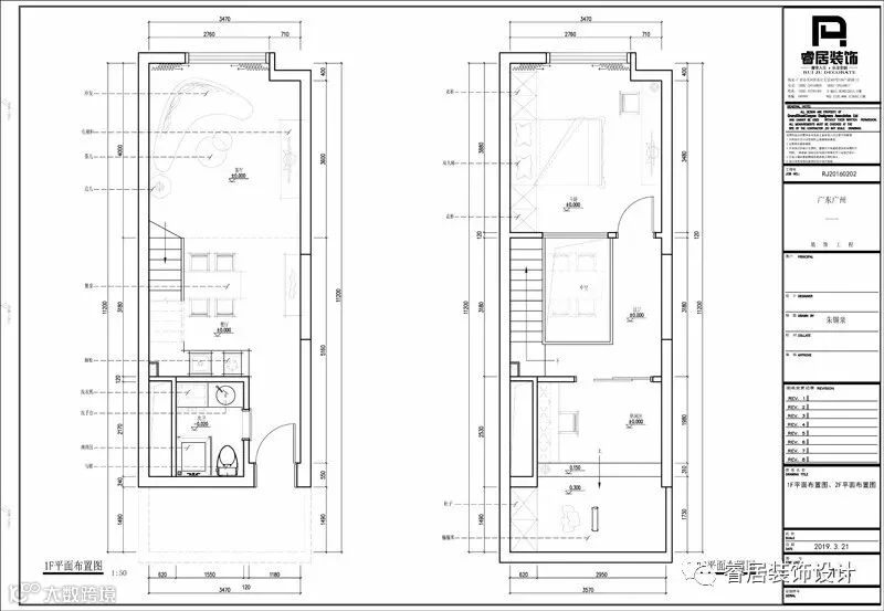
| 平面布置图 |


关于一个项目,
很多时候可能业主也不清楚自己想要什么,
而作为相对而言的设计师,
仅仅也只是一个懂得多一点专业技能,
更加不可以按照自己的喜好和习惯去为业主设计。
这样,我们设计师在操作项目的时候更加多的会“聆听”
一个空间需要什么,缺少什么,
把空间需要的东西融合起来,仅此而已。
您刚好需要,我们睿居装饰刚好专业!
睿居装饰
● 最 前 沿 的 设 计 资 讯 ●

长按指纹识别二维码,一分钟发现最设计
Long fingerprint identification qr code, one minute found the most designed
公司地址:广州市天河区珠江新城临江大道T26产业园C13
Company address: C13, T26 industrial park, linjiang avenue, zhujiang new town, tianhe district, guangzhou
咨询热线:020-38559870 020-38559817
网址:www.gzruiju.com
睿居装饰,以口碑铸品牌,品质决定价值。
Ruiju decoration, brand cast by word of mouth, quality decides value.

