
现代简约风格是以简约为主,在设计上强调功能、结构和形式的完整,追求材料、技术、空间的表现深度的装修风格。删繁就简,去伪存真,以色彩的高度凝练和造型的简洁,在满足功能需要的前提下,将空间、人及物进行合理精致的组合。
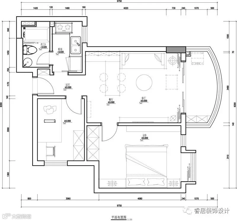
风格定位:北欧风格
设 计 师:朱锡泉
施工单位:广州睿居装饰工程有限公司
【黄村案例】




【华标案例】







【睿居装饰】
● 最 前 沿 的 设 计 资 讯 ●
长按指纹识别二维码,一分钟发现最设计

公司地址:广州市天河区珠江新城临江大道T26产业园C13
Company address: C13, T26 industrial park, linjiang avenue, zhujiang new town, tianhe district, guangzhou
咨询热线:020-38559870 020-38559817
网址:www.gzruiju.com
睿居装饰,以口碑铸品牌,品质决定价值。
Ruiju decoration, brand cast by word of mouth, quality decides value.

