
NEW CASE
项目小区 | 天河隽园
项目面积 | 142㎡
项目户型 | 四房二厅
项目风格 | 混搭
主创设计 | 肖映兆
主创团队 | 睿居装饰
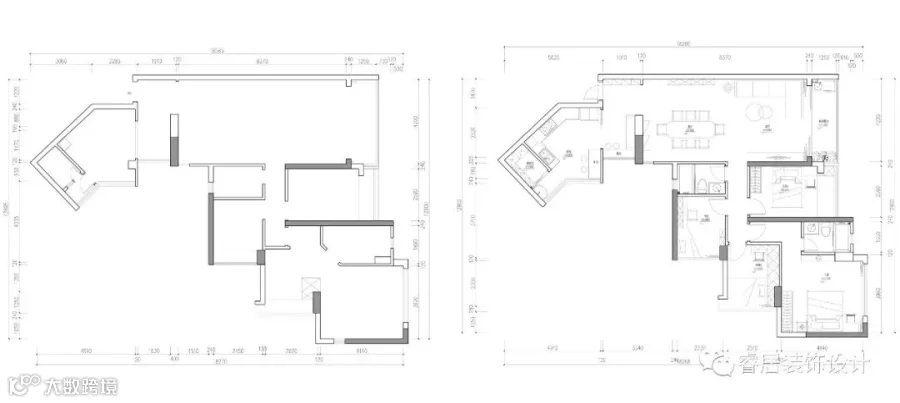
户型设计
-Apartment layout design-
原始户型图|平面布置图

01
吧台
Bar


02
客餐厅
Living Room




03
厨房
Kitchen

04
卧室
Bedroom





公司地址:广州市海珠区新港东路2519号工美港国际数字创新中心22栋103
Company address: 103, building 22, gongmei Hong Kong international digital
innovation center, 2519 xingang east road, haizhu district, guangzhou.
咨询热线:020-38559870 020-38559817
网址:www.gzruiju.com
睿居装饰,以口碑铸品牌,品质决定价值。
Ruiju decoration, brand cast by word of mouth, quality decides value.

