
项目名称:黄埔-萝岗·中海原山别墅
项目面积:约为500平方
装修预算:约为60万
设计风格:欧式风格
本案为欧式风格设计,尊贵奢华,在大气中沉淀细节,在细致中品味人生,彰显户主非凡品味和艺术气息。
▼ 负一楼客厅

▼ 餐厅

▼ 门厅

▼ 小孩房

▼ 客房

▼ 影音室

▼ 一楼餐厅1

▼ 一楼餐厅2

▼ 一楼书房

▼ 一楼外观花园

▼ 茶室

▼ 2楼起居室

▼ 2楼主人房

▼ 3楼阳光房

▼ 3楼小孩房

▼ 3楼卫生间

▼ 外观花园

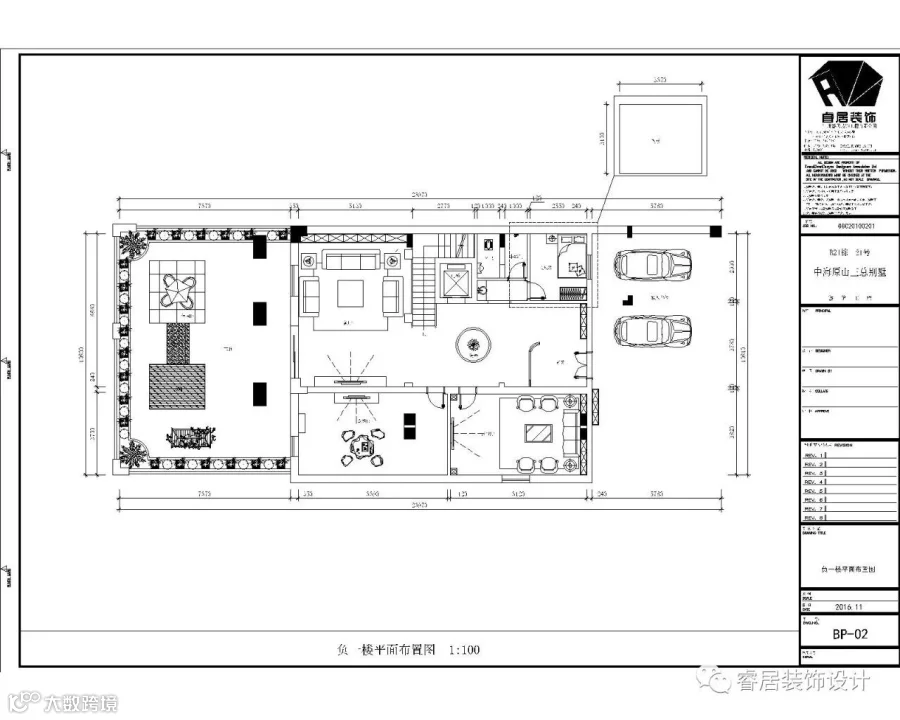
▼ 负一楼平面设计方案
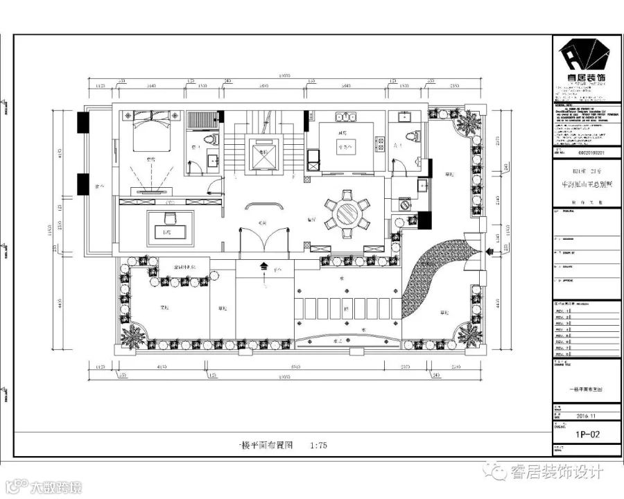
▼ 一楼平面设计方案

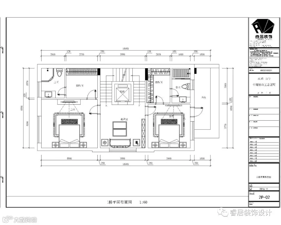
▼ 二楼平面设计方案

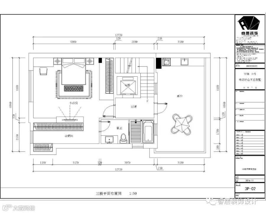
▼ 三楼平面设计方案

本案的色调以暖色为主,暖色的石材搭配描金的护墙板与柜门,加上吊顶与之相互辉映,使得空间的协调性得到最大的发挥。
【设计师简介】

本案总设计师:肖映兆
*个人简介
2005年进入室内设计装饰行业,对高档豪宅、别墅有独特的见解,同样也是广州睿居装饰的创始人。
*设计理念
好的设计,需要足够的阅历与实践。
*擅长风格
欧式,现代简约,新中式,新古典等等
*主要荣誉
2012获得土巴兔网站优秀作品奖
2013作品上了雅居生活杂志5月刊
2017年获得红棉奖“2017年度室内设计奖”暨最美雅奢空间设计奖
*成功案例
珠江新城珠光御景
龙光香悦山别墅
嘉裕.君玥公馆
雅居乐.富春山居
汇景新城
侨建御溪谷
保利.东江首府
马来西亚酒店

关于一个项目,
很多时候可能业主也不清楚自己想要什么,
而作为相对而言的设计师,
仅仅也只是一个懂得多一点专业技能,
更加不可以按照自己的喜好和习惯去为业主设计。
这样,我们设计师在操作项目的时候更加多的会“聆听”
一个空间需要什么,缺少什么,
把空间需要的东西融合起来,仅此而已。
您刚好需要,我们睿居装饰刚好专业!
睿居装饰
● 最 前 沿 的 设 计 资 讯 ●

长按指纹识别二维码,一分钟发现最设计
公司地址:广州市天河区珠江新城临江大道T26产业园C13
咨询热线:020-38559870 020-38559817
网址:www.gzruiju.com
睿居装饰,以口碑铸品牌,品质决定价值。


