
每个作品呈现在大家眼前,其实都只是很表象的东西,深究其中才发现,每一个房子一个家,主人的品味、习性和对家的特殊感情都各不相同。
将设计的元素、色彩、照明、原材料简化,同时对色彩、材料的质感要求却更为严格,是现代简约的精髓所在~
【项目地址】:荔景花苑小复式
【项目面积】:177㎡
【装修风格】:现代风格
【设计师】:陈汉州
睿居设计总监:陈汉州
*个人简介
2001年毕业于广美
从业至今独立完成过国内外多项公装家装项目,以独特的设计手法为无数业主朋友完成各类项目,以认真及专业的知识赢得了业主朋友的认可及好评。
*设计理念
设计不流于形式,只为了更好的服务生活。
*成功案例
家装代表:唐宁公馆 、锦绣山庄、 御湖名邸、林语山庄、珠江公园御景、颐和高尔夫、方圆月岛、珊瑚天峰、万科花城、凯旋新世界、华南碧桂园、恒大御景半岛、保利香雪山、富春山居、
公装:加纳综合体规划
财富广场人力资源中心
东风路中国电网监控中心
广晟大厦化妆品公司
广晟大厦策划公司
番禺科技城办公室
珠江新城某私房菜
黄沙红酒专卖店


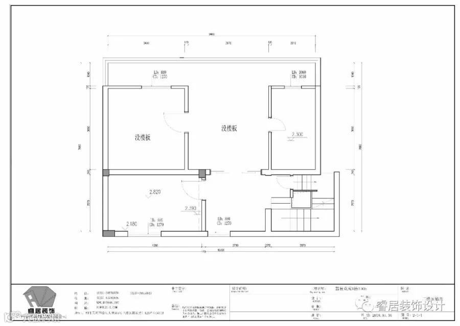
▲一层原始结构图

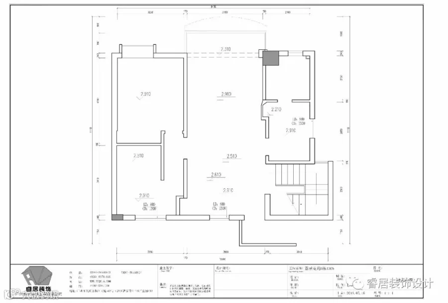
▲二层原始结构图
平面布置图

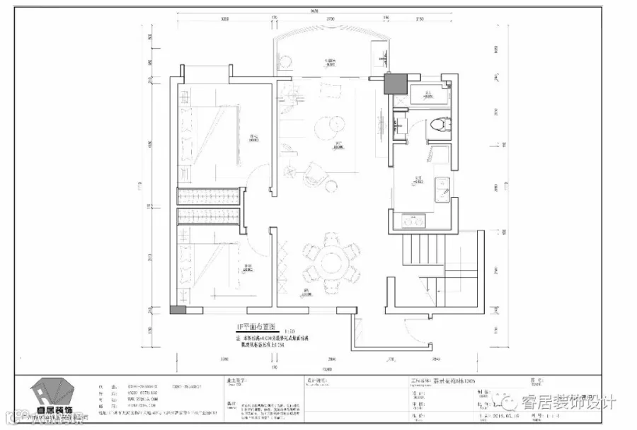
▲一层平面布置方案

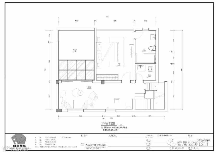
▲二层平面布置方案

▲一层客厅:木质茶几用在现代风格中,也有一种自然的感觉。

▲二层客厅:简单的运用蓝色系中的几个色调,打造沁人心脾的居住空间,使人情不自禁拍案叫绝。

▲主人房

▲小孩房

关于一个项目,
很多时候可能业主也不清楚自己想要什么,
而作为相对而言的设计师,
仅仅也只是一个懂得多一点专业技能,
更加不可以按照自己的喜好和习惯去为业主设计。
这样,我们设计师在操作项目的时候更加多的会“聆听”
一个空间需要什么,缺少什么,
把空间需要的东西融合起来,仅此而已。
您刚好需要,我们睿居装饰刚好专业!
睿居装饰
● 最 前 沿 的 设 计 资 讯 ●

长按指纹识别二维码,一分钟发现最设计
公司地址:广州市天河区珠江新城临江大道T26产业园C13
咨询热线:020-38559870 020-38559817
网址:www.gzruiju.com
睿居装饰,以口碑铸品牌,品质决定价值。

