
所有的最好的都是为了留给家人,选择一个装修公司,不仅有喜好的考量,环保的顾虑,设计师功底的考验。每一重的细心考量,都是为了呈现一个完美的家装效果。
地址:雅居乐·剑桥郡
风格:混搭风格
设计师:肖映兆
面积:283㎡
本案例的装修风格属于混搭风格,混搭的装饰风格是一种特异的表现形式,它可以摆脱沉闷突出重点,符合了当今人们追求个性、随意的生活态度。但是混搭不是百搭,不是一味的将各种风格都融合进装修中,风格设计时能处理好两个以上不同风格作品在同一个空间里的搭配与协调,这样才能达到混搭的目的。

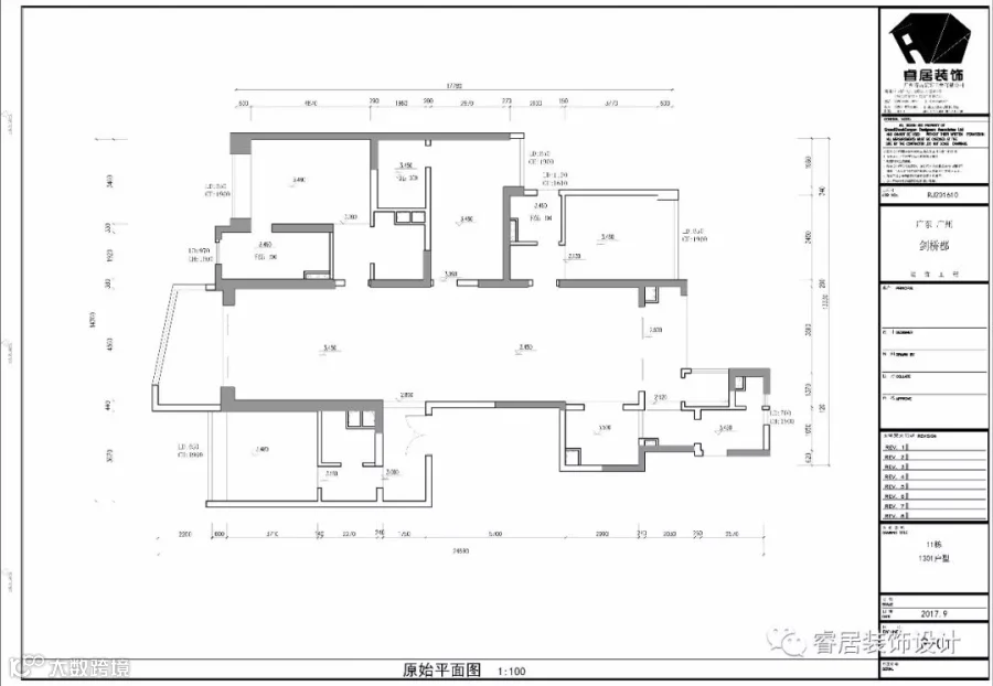
▲原始尺寸图

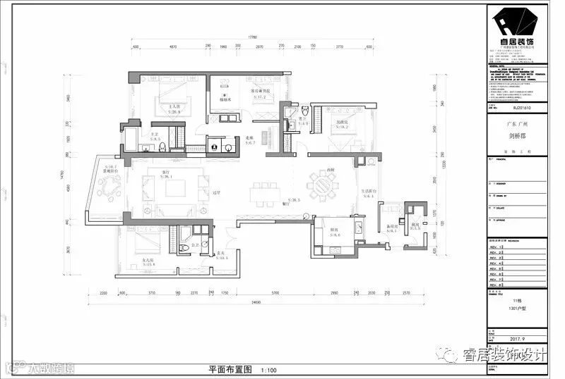
▲平面方案布置图

▲客厅

▲餐厅

▲玄关

▲客房兼书房
通过设计改变生活,
从而换一种生活方式,
让自己变得也简单起来,
这就是现代人对于生活的追求。

▲主人房

▲男孩房

▲女孩房

▲卫生间
项目总设计师:肖映兆
*个人简介
2005年进入室内设计装饰行业,对高档豪宅、别墅有独特的见解,同样也是广州睿居装饰的创始人。
*设计理念
好的设计,需要足够的阅历与实践。
*擅长风格
欧式,现代简约,新中式,新古典等等
*主要荣誉
2012获得土巴兔网站优秀作品奖
2013作品上了雅居生活杂志5月刊
2017年获得红棉奖“2017年度室内设计奖”暨最美雅奢空间设计奖
*成功案例
珠江新城珠光御景
龙光香悦山别墅
嘉裕.君玥公馆
雅居乐.富春山居
汇景新城
侨建御溪谷
保利.东江首府
马来西亚酒店


关于一个项目,
很多时候可能业主也不清楚自己想要什么,
而作为相对而言的设计师,
仅仅也只是一个懂得多一点专业技能,
更加不可以按照自己的喜好和习惯去为业主设计。
这样,我们设计师在操作项目的时候更加多的会“聆听”
一个空间需要什么,缺少什么,
把空间需要的东西融合起来,仅此而已。
您刚好需要,我们睿居装饰刚好专业!
睿居装饰
● 最 前 沿 的 设 计 资 讯 ●

长按指纹识别二维码,一分钟发现最设计
公司地址:广州市天河区珠江新城临江大道T26产业园C13
咨询热线:020-38559870 020-38559817
网址:www.gzruiju.com
睿居装饰,以口碑铸品牌,品质决定价值。

