
繁华的城市,拥挤的街道,
当回到自己的家,望向窗台,
一个满意的装修,就能带给你无限的归属感。
它们从不言语,却能带给你最安心的陪伴。
【项目地址】:雅居乐剑桥郡
【项目面积】:约247㎡
【装修预算】:约25万
【设计风格】:后现代风格
【项目设计师】:陈汉州
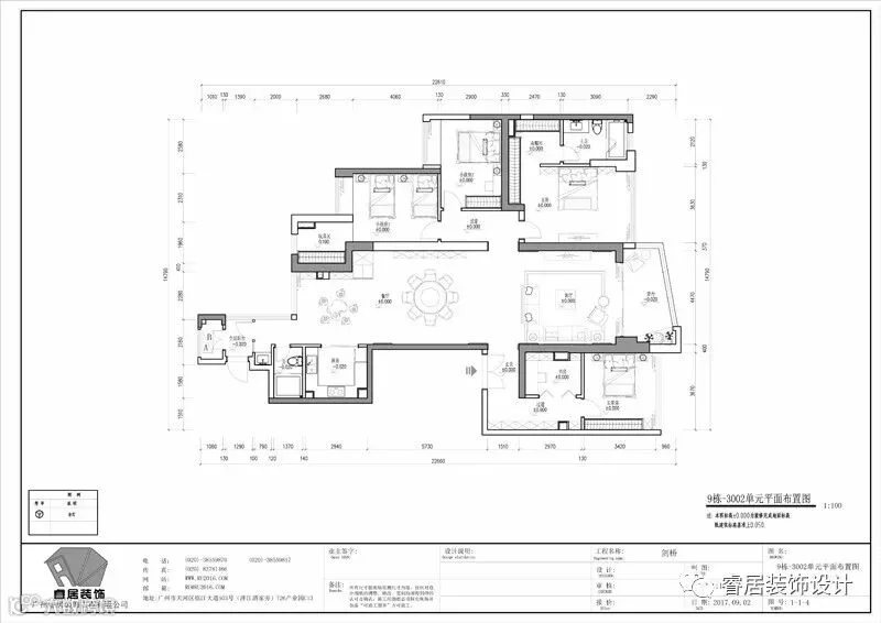
客厅

餐厅

主人房

父母房

男孩房

女孩房

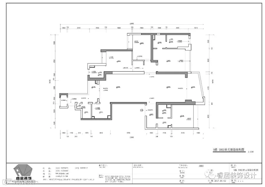
▼ 原始结构图

▼ 一楼平面设计方案

项目总设计师:陈汉州
*个人简介
2001年毕业于广美
从业至今独立完成过国内外多项公装家装项目,以独特的设计手法为无数业主朋友完成各类项目,以认真及专业的知识赢得了业主朋友的认可及好评。
*设计理念
设计不流于形式,只为了更好的服务生活。
*成功案例
家装代表:唐宁公馆 、锦绣山庄、 御湖名邸、林语山庄、珠江公园御景、颐和高尔夫、方圆月岛、珊瑚天峰、万科花城、凯旋新世界、华南碧桂园、恒大御景半岛、保利香雪山、富春山居、
公装:加纳综合体规划
财富广场人力资源中心
东风路中国电网监控中心
广晟大厦化妆品公司
广晟大厦策划公司
番禺科技城办公室
珠江新城某私房菜
黄沙红酒专卖店

现代风格是比较流行的一种风格,
主要追求时尚与潮流,
而后现代风格是一种在形式上,
对现代风格进行修正的设计思潮与理念,
如果你也是一个不拘泥于形式的人儿,
那么不妨考虑一下后现代风格哦~~~

关于一个项目,
很多时候可能业主也不清楚自己想要什么,
而作为相对而言的设计师,
仅仅也只是一个懂得多一点专业技能,
更加不可以按照自己的喜好和习惯去为业主设计。
这样,我们设计师在操作项目的时候更加多的会“聆听”
一个空间需要什么,缺少什么,
把空间需要的东西融合起来,仅此而已。
您刚好需要,我们睿居装饰刚好专业!
睿居装饰
● 最 前 沿 的 设 计 资 讯 ●

长按指纹识别二维码,一分钟发现最设计
公司地址:广州市天河区珠江新城临江大道T26产业园C13
咨询热线:020-38559870 020-38559817
网址:www.gzruiju.com
睿居装饰,以口碑铸品牌,品质决定价值。

