
如果要问生活的本质是什么,我会告诉你是回归平淡。即使年少再精彩纷呈,多年以后,我们依旧会回到平凡的生活之中,不如一路留有初心,保持本真。
【项目地址】:雅居乐富春山居
【项目面积】:297㎡
【装修风格】:现代简约
【设计师】:陈汉州
睿居设计总监:陈汉州
*个人简介
2001年毕业于广美
从业至今独立完成过国内外多项公装家装项目,以独特的设计手法为无数业主朋友完成各类项目,以认真及专业的知识赢得了业主朋友的认可及好评。
*设计理念
设计不流于形式,只为了更好的服务生活。
*成功案例
家装代表:唐宁公馆 、锦绣山庄、 御湖名邸、林语山庄、珠江公园御景、颐和高尔夫、方圆月岛、珊瑚天峰、万科花城、凯旋新世界、华南碧桂园、恒大御景半岛、保利香雪山、富春山居、
公装:加纳综合体规划
财富广场人力资源中心
东风路中国电网监控中心
广晟大厦化妆品公司
广晟大厦策划公司
番禺科技城办公室
珠江新城某私房菜
黄沙红酒专卖店

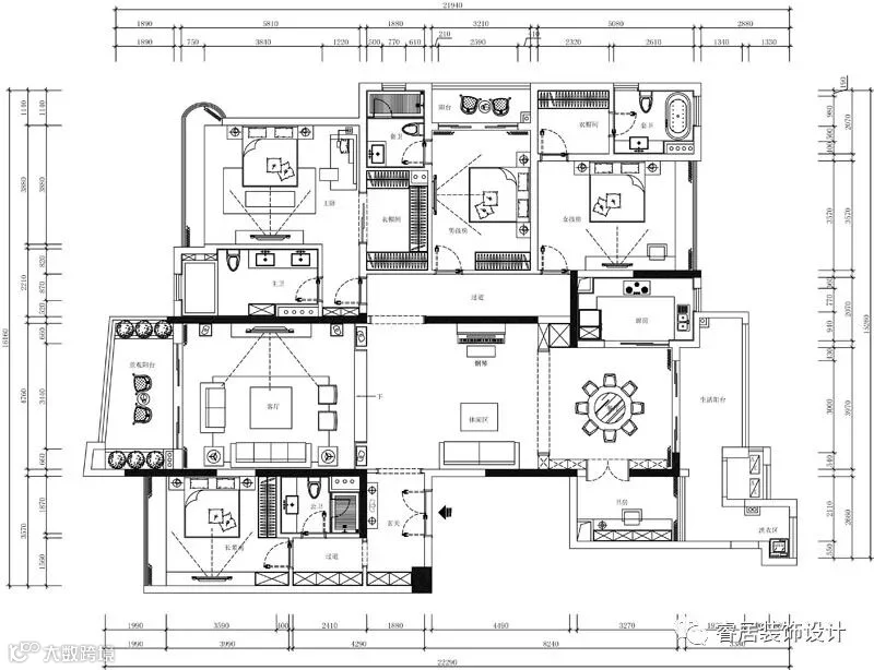
平面设计方案


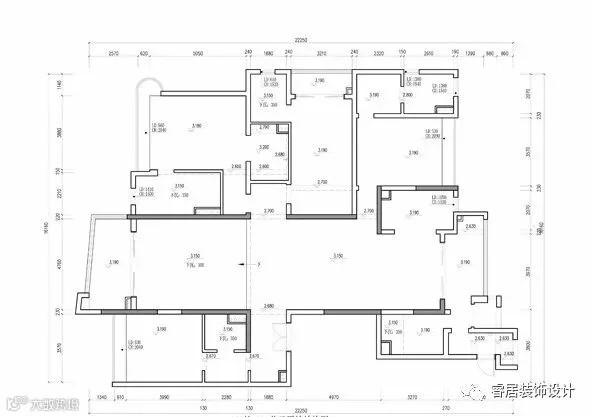
原始结构图


客厅:审美情趣完美的结合在一起,即时尚简约又不失浪漫的意境。

餐厅:精致的摆件体现了艺术与生活息息相关,更加强调材质的温润与优美的结合,自然流露华贵的气质和底蕴。

主人房:业主所需要的氛围完美融合,现代的居家温馨时尚浮然而生。

父母房

男孩房


女孩房


艺术源于生活,而生活是艺术的来源,在生活中追求艺术之美的存在。它是原创性的,自我的,独一无二的,能在设计细节上不断的发现惊喜,让人心生暖意。

关于一个项目,
很多时候可能业主也不清楚自己想要什么,
而作为相对而言的设计师,
仅仅也只是一个懂得多一点专业技能,
更加不可以按照自己的喜好和习惯去为业主设计。
这样,我们设计师在操作项目的时候更加多的会“聆听”
一个空间需要什么,缺少什么,
把空间需要的东西融合起来,仅此而已。
您刚好需要,我们睿居装饰刚好专业!
睿居装饰
● 最 前 沿 的 设 计 资 讯 ●

长按指纹识别二维码,一分钟发现最设计
公司地址:广州市天河区珠江新城临江大道T26产业园C13
咨询热线:020-38559870 020-38559817
网址:www.gzruiju.com
睿居装饰,以口碑铸品牌,品质决定价值。

