
混搭是一种聪明的装修风格,取长补短,竭尽所能以取悦自己。这套住宅的设计,无论在整体布局还是材料运用,都根据客户时尚、追求高品质的特点,巧妙地将中式元素以现代的形式表现出来。既满足了对于中式风格的追求,又满足现代人的生活节奏。

玄关--两边的装饰画给人一种引人入胜的感觉。玄关这么精彩更期待其他房间的特别之处了。加上灯光的巧妙照射,整个空间都美妙了不少。

中式家具搭配的客厅,加上背景墙和装饰画的点缀。整个空间给人舒适、高雅、大气的感觉。

餐厅--混搭的风格汲取多元的文化,更加的简洁大方。

书房--以白色经典点色为主,整体清爽干净,让人处在这一个坏境中能去放松,静下心来。

主人房:粗犷沉稳的家具造型,强调厚重与实用性,彰显细节的迷人与精彩,软包与窗幔的搭配,让空间更加的柔和温馨。

父母房

客房

主卫

公卫
简单却不单调
大方却不缺少细节
个性化的色彩
精致的造型
让空间变的与众不同
彰显着独有的魅力

原始结构图

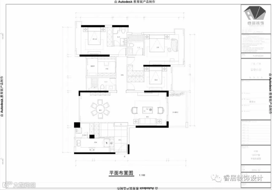
平面布置方案
本案总设计师:肖映兆

*个人简介
2005年进入室内设计装饰行业,对高档豪宅、别墅有独特的见解,同样也是广州睿居装饰的创始人。
*设计理念
好的设计,需要足够的阅历与实践。
*擅长风格
欧式,现代简约,新中式,新古典等等
*主要荣誉
2012获得土巴兔网站优秀作品奖
2013作品上了雅居生活杂志5月刊
2017年获得红棉奖“2017年度室内设计奖”暨最美雅奢空间设计奖
*成功案例
珠江新城珠光御景
龙光香悦山别墅
嘉裕.君玥公馆
雅居乐.富春山居
汇景新城
侨建御溪谷
保利.东江首府
马来西亚酒店

关于一个项目,
很多时候可能业主也不清楚自己想要什么,
而作为相对而言的设计师,
仅仅也只是一个懂得多一点专业技能,
更加不可以按照自己的喜好和习惯去为业主设计。
这样,我们设计师在操作项目的时候更加多的会“聆听”
一个空间需要什么,缺少什么,
把空间需要的东西融合起来,仅此而已。
您刚好需要,我们睿居装饰刚好专业!
睿居装饰
● 最 前 沿 的 设 计 资 讯 ●

长按指纹识别二维码,一分钟发现最设计
公司地址:广州市天河区珠江新城临江大道T26产业园C13
咨询热线:020-38559870 020-38559817
网址:www.gzruiju.com
睿居装饰,以口碑铸品牌,品质决定价值。

