

【过道】
▲混搭并不是把各种风格的元素简单的累积在一个空间,而是经过精心的设计,将风格协调的装修元素进行相互搭配,以此凸显空间与装饰的层次感。

【客厅】
▲纯净的白色奠定了空间的高雅基调。家具雕刻精致,浪漫的曲线,弥漫着品味与潮流的气息。设计师以其细腻的心思在柔和的灯光倾注下,让你在惊艳中沉醉。

【客厅过道】
▲玄关处采用异形设计,搭配丰富的石膏板吊顶处理,过道玄关具有层次感,带来欣赏性极强的视觉效果,并具有一种欧式的典雅与尊贵感。

【餐厅】
▲高雅的格调,华贵而又饱含质朴的意蕴,圆形餐桌,精巧的摆盘,柔美别致的花艺,看起来典雅大方,使得整个空间给人以开放、宽容的非凡气度。
【卧室】
▲卧室床头背景墙采用区域分离设计,纯色配色很是清新。透露出一种绅士风度。低调奢华有内涵。

【女孩房】

【男孩房】

【卫生间】

【原始结构图】

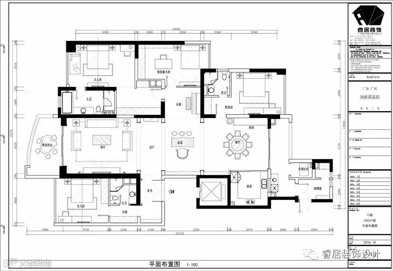
【平面布置方案】
项目设计师:肖映兆
*个人简介
2005年进入室内设计装饰行业,对高档豪宅、别墅有独特的见解,同样也是广州睿居装饰的创始人之一。
*设计理念
好的设计,需要足够的阅历与实践。
*擅长风格
欧式,现代简约,新中式,新古典等等
*主要荣誉
2012获得土巴兔网站优秀作品奖
2013作品上了雅居生活杂志5月刊
2017年获得红棉奖“2017年度室内设计奖”暨最美雅奢空间设计奖
*成功案例
珠江新城珠光御景
龙光香悦山别墅
嘉裕.君玥公馆
雅居乐.富春山居
汇景新城
侨建御溪谷
保利.东江首府
马来西亚酒店


关于一个项目,
很多时候可能业主也不清楚自己想要什么,
而作为相对而言的设计师,
仅仅也只是一个懂得多一点专业技能,
更加不可以按照自己的喜好和习惯去为业主设计。
这样,我们设计师在操作项目的时候更加多的会“聆听”
一个空间需要什么,缺少什么,
把空间需要的东西融合起来,仅此而已。
您刚好需要,我们睿居装饰刚好专业!
睿居装饰
● 最 前 沿 的 设 计 资 讯 ●

长按指纹识别二维码,一分钟发现最设计
Long fingerprint identification qr code, one minute found the most designed
公司地址:广州市天河区珠江新城临江大道T26产业园C13
Company address: C13, T26 industrial park, linjiang avenue, zhujiang new town, tianhe district, guangzhou
咨询热线:020-38559870 020-38559817
网址:www.gzruiju.com
睿居装饰,以口碑铸品牌,品质决定价值。
Ruiju decoration, brand cast by word of mouth, quality decides value.

