
简约风格装修追求的是空间的灵活性及其实用性,在设计上要根据空间之间相互的功能关系而相互渗透,让空间的利用率达到最高。划分空间的唯一途径不一定局限于硬质墙体,可以通过家具、陈列品、吊顶、地面材料甚至可以根据灯光的变换来进行划分,具有很好的兼容性、流动性及灵活性。

客厅软糯的布艺沙发+线条简洁的茶几打造出非常经典的布局,背景墙则是选用皮革硬包+墙砖金属边框,非常有质感的设计。

设计注重柔软舒适和现代感。设计线条简约,风格低调含蓄,能满足客户的需求,具有很强的灵活度和可塑性。

整体颜色过渡协调,风格统一,质感也延续的非常巧妙。


灯光效果有机的结合起来,陈列品突出个性和美感。
项目地址:雅居乐·富春山居
项目面积:133㎡
风格定位:现代简约风格
设计师:朱锡泉

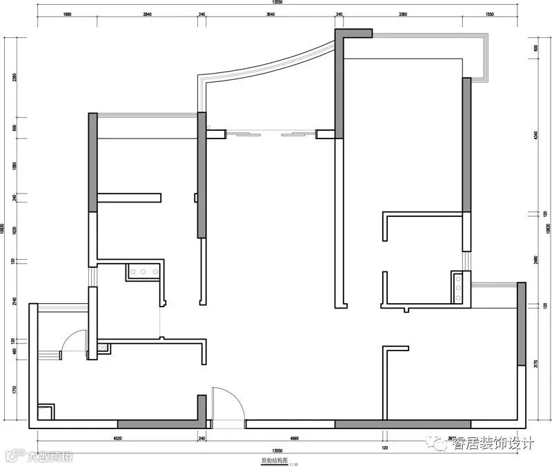
▲原始平面图

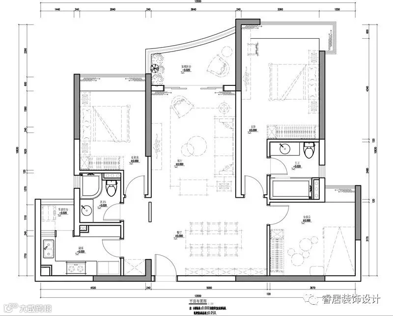
▲平面布置方案

【睿居装饰】
● 最 前 沿 的 设 计 资 讯 ●
长按指纹识别二维码,一分钟发现最设计

公司地址:广州市天河区珠江新城临江大道T26产业园C13
Company address: C13, T26 industrial park, linjiang avenue, zhujiang new town, tianhe district, guangzhou
咨询热线:020-38559870 020-38559817
网址:www.gzruiju.com
睿居装饰,以口碑铸品牌,品质决定价值。
Ruiju decoration, brand cast by word of mouth, quality decides value.

