
【项目名称】:黄埔-萝岗·中海誉城别墅
【项目面积】:约400㎡
【装修预算】:约为48万
【设计风格】:现代简约
通过色彩造型光线的创新,以及家具软饰的配合,来营造一种温馨和谐的生活空间,在功能、美学、个性中寻到最佳的契合点,把生活真实与艺术融汇在一起。



住宅内饰大胆选用黑白色调
所有这些设计都有一个非常不同的“基因构成”
体现当代、质朴、华丽的超现代化的未来派







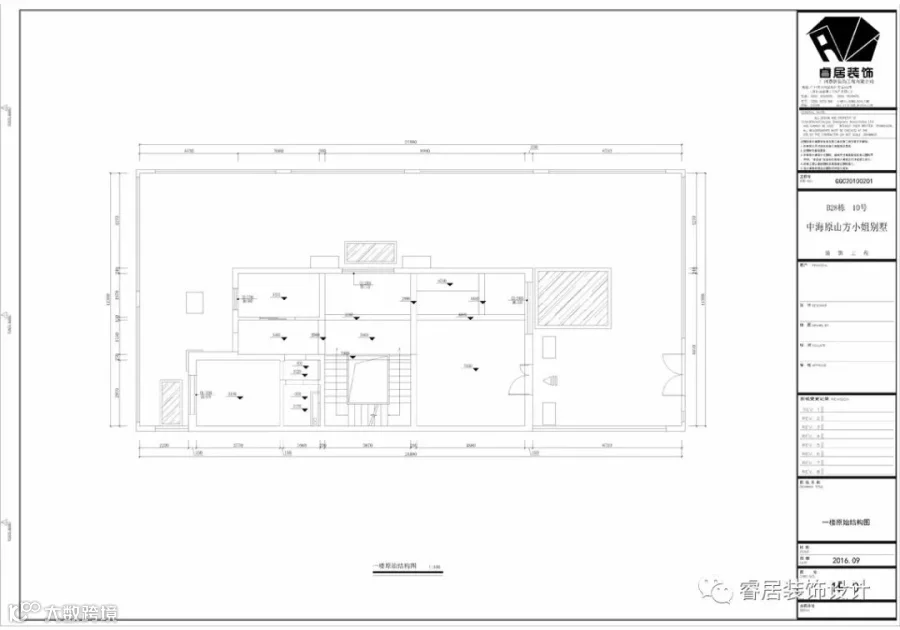
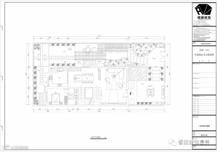
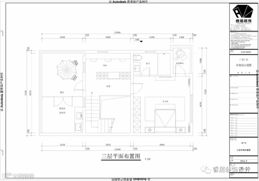
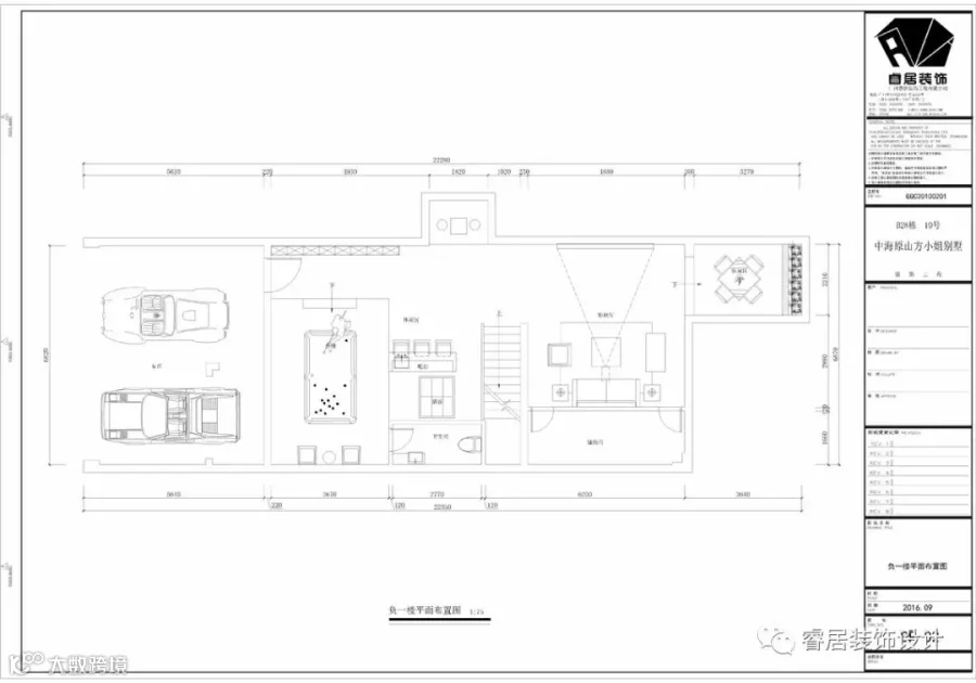
原始结构图&平面布置图








关于一个项目,
很多时候可能业主也不清楚自己想要什么,
而作为相对而言的设计师,
仅仅也只是一个懂得多一点专业技能,
更加不可以按照自己的喜好和习惯去为业主设计。
这样,我们设计师在操作项目的时候更加多的会“聆听”
一个空间需要什么,缺少什么,
把空间需要的东西融合起来,仅此而已。
您刚好需要,我们睿居装饰刚好专业!
睿居装饰
● 最 前 沿 的 设 计 资 讯 ●

长按指纹识别二维码,一分钟发现最设计
公司地址:广州市天河区珠江新城临江大道T26产业园C13
咨询热线:020-38559870 020-38559817
网址:www.gzruiju.com
睿居装饰,以口碑铸品牌,品质决定价值。

