
介绍
LH9H防火门监控器是根据中国国家标准 GB 29364-2012 《防火门监控器》,研究开发的专门用于防火门实时的监控,通过防火门监控模块、防火门门磁开关、防火门电动闭门器对防火门进行实时检测、控制。当火灾发生时能快速在监控器进行防火门的控制进行防火门的关闭实现防火分区的隔离,并发出声光报警信号,从而有效保障了没有发生火灾的区域保护。触摸 EMWIN 操作系统平台,安全可靠,全中文触摸式人机交互界面,易于操控。通过高效的CAN与 消防二总线 现场总线,基于安全可靠地工业标准协议与LH9M监控模块连接、消防二总线与一体式电动闭门器、一体式门磁开关连接,组成防火门监控系统。
特点
▶ 采用壁挂式安装,具有自检、复位、消音、故障报警、报警记录及查询等功能
▶ 实时数据采集每个终端的所有数据状态
▶友好的人机交互界面7寸彩色屏幕,触摸屏幕输入分辨率(800 * 480)
▶ 采用集中供电方式,给现场传感器提供DC24V安全电压供电,有效的保证系统的稳定性、安全性
▶ 实时检测所有被监控的防火门。
▶ 多个用户管理,可设置最高管理权限和操作员权限
▶ 4路CAN通信回路,4路二总线通讯
▶ 数据存储和查询功能,对报警和事件信息进行时间戳存储,海量存储快速查询
故障报警
▶监控器与LH9P、LH9M连线短路、短路。
▶电动闭门器、释放器、门磁开关的供电电源故障。
▶故障报警响应时间: ≤ 20s
▶故障报警声信号:能手动消除,当再次有报警信号输入时,能再次启动
▶故障报警光信号:黄色LED指示灯
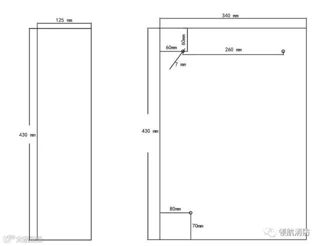
尺寸
▶外观尺寸:340mm x 430 mm x125mm
▶安装方式:壁挂安装
报警记录
▶能记录10000条相关故障报警信息
▶报警类型:故障事件类型、发生事件、位置及描述
▶报警事件查询
▶报警记录打印
操作分级
▶日常值班级:可进入软件界面查看实时监测情况,消除报警声音
和查询报警记录
▶监控操作级:可操作针对系统本身的信息维护外的其他操作
▶ 系统管理级:可操作系统的任何一个功能模块

技术规格
▶执行标准:GB 29364 - 2012
▶主电输入范围:187~280V AC 50Hz
▶备电电源:主电欠压或者停电时启动,正常工作>8h
▶整机功耗:监控状态小于10W,报警状态小于30W
▶通信端口:4路CAN通信,通信速率20bps(4路二总线)
▶工作环境:-10℃~70℃,5~95%无凝露
▶存储环境:-40℃~85℃,5~95%无凝露
选型型号参数说明
型号 |
参数说明 |
LH9H-800 |
可以连接800个防火门模块(LH9M)或者 800个二总线终端设备 |
LH9H-1600 |
可以连接1600个防火门模块(LH9M)或者 1600 个二总线终端设备 |
LH9H-3200 |
可以连接660个防火门模块(LH9M)或者 3200 个二总线终端设备 |
应用
▶ 通讯连接线缆为ZR_RVSP 2*1.5mm,电源线缆为 ZR_BV 2 * 2.5mm。
▶ 通信线缆可采用屏蔽型规格,输入、通信和电源线缆应分开布线,使用环境应注意是否存在腐蚀性气体,如有应在订货时进行说明;
▶产品安装,拆装和配线作业以及维护检查时务必断开电源连接线,注意触电和损害设备。

