
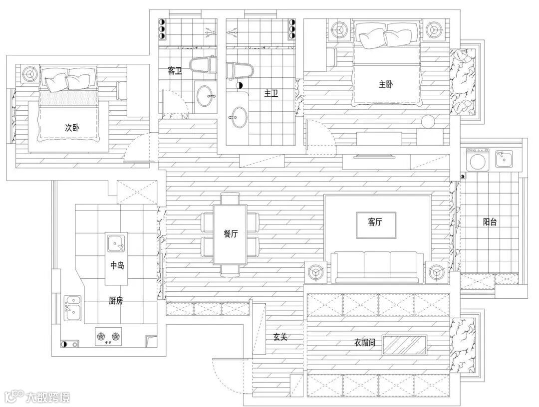
办本案是一个建筑面积128㎡三居户型,常住人口2人,各功能区分布明显,各个空间的面积都非常的宽敞,北欧风格打造舒适、轻松的家居氛围。
房屋信息
户型:三居室
面积:128㎡(建筑面积)
风格:北欧




入户玄关走廊处摆放了自带收纳的换鞋凳,深色地毯布置落尘区,把屋外的灰尘、杂物不带入屋里。


浅灰色地板与墙面呼应,公共空间更宽亮了;原木色家具一点点为屋里注入温馨感。

灰色布艺沙发造型质朴文艺,搭配玩偶抱枕和装饰画,呈现有趣的空间感。


餐厅布置在屋子中央,4周留出足够的活动空间;一边是以玻璃橱柜收纳男主人的各种手办,另一边是餐桌椅同款边柜。


厨房是开放式的岛台造型,与其他空间有了更多联系,原木橱柜+米色墙砖,明亮又温馨。


原木家具+复古床头画与客厅呼应,床尾长斗柜和梳妆台,补充卧室收纳和梳妆功能。

常住2人,屋主将一间卧室更改为独立衣帽间,左右两侧都是开放式的衣架,加上布帘之遮挡灰尘,分类收纳整齐;简单格局也方便房间日后的再次规划。
ps:多水潮湿的地区不要挑战衣帽间不装柜门哦!屋主是北方家庭来的

阳台的一侧摆放了休闲桌椅,墙面挂一些零碎小物,非常有格调。

另一侧是常规的洗衣台,百叶帘防晒,也让阳光变得更加柔和舒适。
——END——


