“小桥流水桃源家,粉墙黛瓦马头墙”,作为传统的建筑流派,徽派风格建筑一直保持着其融古雅、简洁、富丽于一体的独特艺术风格,优雅地贯穿百年,具有独一无二的气息。今天跟大家分享一款2000平方米装配式建筑风格研学基地设计案例。
基本信息
占地:47米×50.4米
建筑层数:二层
建筑面积:2000平方米
主体结构:装配式钢结构
设计效果图

马头翘角,墙面和马头高低进退错落有致,青山﹑绿水白墙﹑黛瓦富于美感的外观整体性,在质朴中透着清秀。

依山傍水,环境优美,布局合理,交通顺畅,建筑融汇于山水之间。
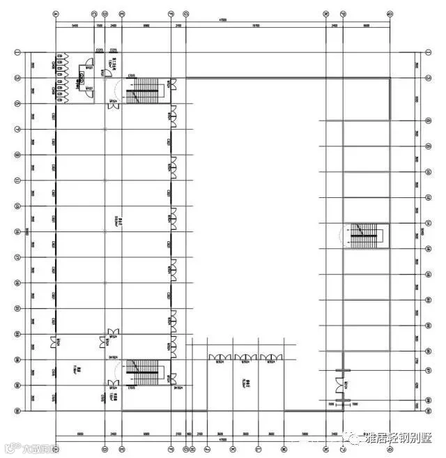
平面图

多方位视角图




较灵活的多进院落式布局。建筑平面布局的单元按功能﹑规模﹑地形灵活布置富有韵律感。

装修参考图



目前,大多仿古建筑依然是以木质材料、钢筋混凝土为主体结构的古建筑形式,不能完全实现由工厂生产构件现场安装的现代方式建造。近年来,广州雅居致力于开发装配式建筑系列产品,形成了标准化设计、工厂化生产、装配化施工、一体化装修、信息化管理新型钢结构装配式仿古建筑技术体系,装配式仿古建筑在保留传承古建筑风貌的同时,也能较好的发挥装配式建筑本身抗震、节能、建造速度快等诸多优势。


