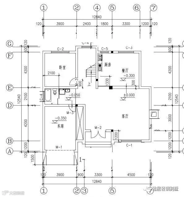
01
02
03
04
05
06
以上六款户型都有不同的造型,都是非常漂亮,绝对让你的家成为家乡一道靓丽的风景线。

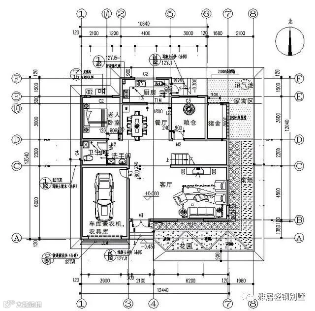
雅居轻钢别墅
01
02
03
04
05
06
以上六款户型都有不同的造型,都是非常漂亮,绝对让你的家成为家乡一道靓丽的风景线。
