外观效果图
这栋轻钢别墅的外观为中式风格,主体色调为白色,灰色的沥青瓦更衬托出了浓浓的中国风,外墙采用白色和灰色两种装饰板,透露出一种严肃庄重的气息。窗户采用的都是断桥铝窗户,与别墅的整体色彩搭配自然,相得益彰。整体建筑风格也符合我国传统,对称又统一。

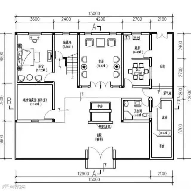
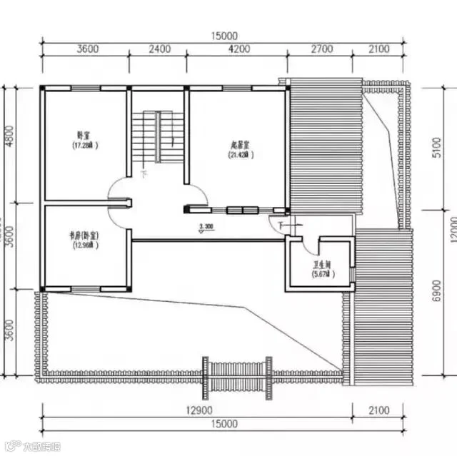
平面图
①一层平面图:一层分有前院、中庭、储藏室、卧室、卫生间、堂屋、厨房、饭厅、后院、禽舍和畜舍。与普通用户建房用途不太一样,似乎一层更多的用来待客和开会,前院、中庭和堂屋的设置,凸显了中国风。卫生间与禽舍和畜舍相连,可以进行废物利用,形成一个循环系统。既环保又充分利用了空间。储藏间提供了杂物堆放的空间。

②二层平面图:二层设有卫生间、书房、卧室、起居室。卧室与书房相连,很好的考虑到了人的作息生活习惯。楼梯的设置将二层房间有序分隔,起居室远离卧室,又与卫生间相近,完全不会影响到卧室中休息的人。

项目情况
占地:开间15米,进深12米
总建筑面积:375.46平米
建筑结构:轻钢龙骨
建筑层数:2层
施工过程
先根据设计师要求打好地基,地基建造完成并保养好后再搭建轻钢龙骨主体骨架,轻钢龙骨内部填充玻璃纤维棉,并且两侧封装OSB板起到很好的蒙皮效应。建筑构架搭好后,内墙安装石膏板,用户根据自身需要进行贴壁纸或刮白,外墙安装金属雕花板进行装饰,屋面安装沥青瓦防止雨水的渗漏。
人一生至少为自己拼命一次,为自己活一次,房屋作为陪伴自己最久的物件,值得为之一拼!


