房屋使用面积为111㎡,既是住宅又是工作室,所以设计了两个客厅,其中一个作为会客室;房屋整体打通处理,全部用玻璃做隔断 。设计师刻意地选择了可以给空间注入新生命的色调,这是一个大胆的尝试,但这个家却一点儿也不俗气,连家具都异常地精致。
面积:111㎡
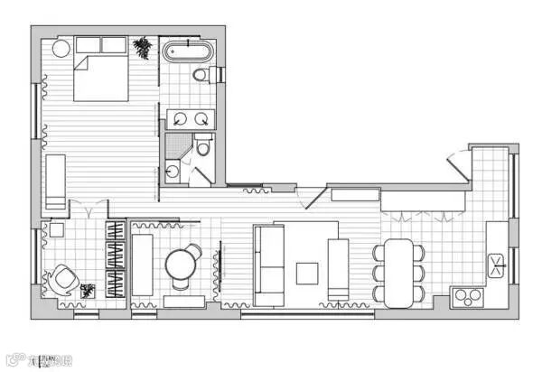
户型:三室两厅
风格:混搭风格

▲客厅颜色选用了清新淡雅的冰淇淋色,粉色与蓝色撞色的沙发,体现出了女主人的柔美。

▲仅仅通过移除和重建空间中的墙体,便使得该室内空间在视觉上更加开阔。除了会客区,家里的其他房间的隔断全都用黑色的金属玻璃门。

▲毛绒绒的地毯看着就很舒服,闲时一本杂志,一杯茶,舒适的阅读区就出现了。

▲通过用玻璃和钢铁推拉门,替换划分公寓空间的墙壁,使得自然光可以在房间之间游走。

▲原木地板铺设的走廊,与纯白的窗帘,相互映衬着彼此。

▲会客厅四周涂满粉色,地面铺上极其鲜艳的花砖大理石与金属黄铜拼接的桌面十分耀眼夺目。整体玻璃设计周围安置了落地式的窗帘,合上就会成为一个封闭式的空间。

▲草绿色的沙发,黄铜的精致底座,打开就是可以睡觉的双人床。

▲厨房设计了开放式的,色彩相对低调地多,纯白的漆面搭配黑白花砖。

▲用白色大理石地砖进行了区域的划分。

▲卧室区域很简单,一张双人床,一盏工业艺术立灯,一大盆的绿色植物。

▲整个卧室被划分成为一个独立整体的空间,在这里包含了衣帽间与洗漱室。这些区域的隔断也都选用了整面的玻璃隔断,门与墙融合为一体。

▲任何时候都是一个点睛之笔,特别定制的小茶几,原本是略显粗糙的金属质地,但在加上一些色彩,效果就完全不同了。

▲衣帽间的门选用了合页门,以深蓝色为主色调,用青花瓷砖铺设。

▲金属质感的简易衣架,搭配肉粉色的MUJI风沙发,青瓷花纹的地砖,超现代感的放射型吊灯,混搭却不混乱。

▲卫生间的墙面被涂满草绿色的漆面,圆形的镜面与两侧的吊灯结合地十分有趣。

▲而镜面不仅仅用作装饰之用,翻开镜面的背面,还是一个多层的储物盒。

▲卫生间的门选用拉门解决了床与门间距进的问题。圆形的化妆镜融合了金属边框的冷硬感觉。
平面图:



