
▲ 进门边上做了一个小鞋柜,路过一个干区之后先来到餐厅

▲ 进门后的视角可以看到餐厅客厅为主的公共区域,通铺地砖

▲ 以简约风为主,搭配各种不同元素,没怎么注意风格统一问题

▲ 餐厅基本以黑白两色为主

▲ 黑白色的埃姆斯椅,餐边柜白色门板搭配黑色台面,格子架也是黑白色

▲ 厨房用深灰色的墙地砖和白色的模压橱柜搭配

▲ 干湿分离提升了使用效率

▲ 露台铺了木纹砖,整成了菜园,比花园实惠~

▲ 简单实用的卧室

▲ 楼梯也是黑白配,楼梯下的空间可以放下双开门冰箱

▲ 楼上是阁楼空间

▲ 楼上的卧室风格有点跑偏,女主看中了欧式的家具

▲ 于是就彻底混搭到底了

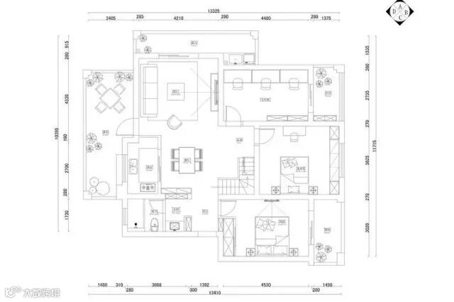
▲ 一楼平面布置图

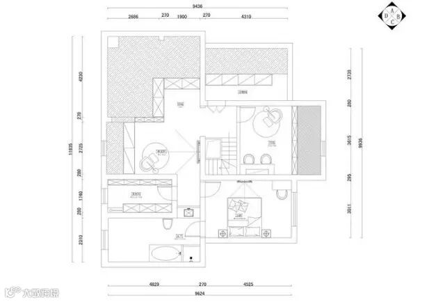
▲ 二楼平面布置图


