本次全屋设计项目是张家港的三口之家,男主人黄先生是银行经理,女主人陈女士是咖啡店主,两人都喜爱收藏古玩、养生和红酒,而女儿静静13岁,喜爱芭蕾和古琴。
项目地址:
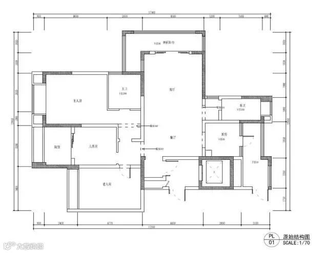
张家港世茂美晨一号
户型面积:
四室两厅142㎡
设计风格:
新中式风格
地理位置:
交通方便,周边配套有学校、大型超市
户型特点:
采光:客厅、卧室采光充足
动线:空间与空间动线相对合理
通风:户型整体通风良好
功能性:门厅空间小,休息区、生活区分布合理。
与黄先生一家沟通后,我们的设计师决定,空间色调以大地色、绿色为基调,蓝色为辅色调,黄色及蓝色的点缀让空间显得生动活泼,而咖啡色的家具让整个空间更显时尚,通过颜色的层次感,凸显空间的活跃!
客餐厅

客餐厅空间装饰多采用简洁硬朗的直线条。直线装饰在空间中的使用,不仅反映出现代人追求简单生活的居住要求,更迎合了中式家具追求内敛、质朴的设计风格,使“新中式”更加实用、更富现代感。
主卧

主卧室在色彩上秉承了传统古典中式风格的典雅和华贵,但与之不同的是加入了很多现代元素,呈现着时尚贵气的特征。
主卧室U型衣帽间主要功能是收纳衣物,首先整个衣柜实现功能分区,长短分区、男女分区、挂放折叠分区等。衣柜抽屉设计是必不可少,袜子、内衣、内裤等小东西分类放入,整洁方便。
女儿房

女儿房风格清新通透,在硬包与实木线条的结合少了许多奢华的装饰,更加流畅地表达出传统文化中的精髓。另外在软装上增加花艺元素和缤纷的色彩元素,让整个空间文静素雅之余不失少女的朝气活泼。
衣柜实现长短分区、常用和不常用分区、挂放折叠分区等。衣衣柜抽屉的设计袜子、内衣、内裤等小东西分类放入,整洁方便。整个衣柜没设计裤架,抽屉内折叠放置裤子,解决了没有裤架挂放裤子的问题。衣柜中集成装饰格,可放书籍和装饰品,让柜子不过于单一。
玄关
由于户型限制,玄关柜只能满足常用的基本功能需求。玄关设置抽屉放置钥匙、卡片、鞋油、鞋套等,并进行分类放置。玄关柜将鞋分类整理,井然有序。而操作台的设计,方便家人进门后放包和其他手提的物品。
餐厨区
餐边柜设计利用酒杯挂条收纳红酒杯,不仅美观,而且不积灰保持清洁,而红酒杯挂条下剩余空间做酒架收纳红酒。酒架条里高外低,红酒瓶倾斜放置,使软木塞就会保持湿润,保证红酒质量不发生变化。
西厨橱柜设计根据主人的爱好,在右侧靠窗处设计了一个整体高柜,下方嵌入消毒柜、微波炉和烤箱。
冰箱高柜是把冰箱做了一个嵌入式设计,合理利用空间,此高柜在橱柜对面,着重收纳,侧边柜,可收纳一些瓶子和装饰物品。
过道区
过道备用鞋柜主要考虑到入户门厅处空间较少,玄关柜只能放置常用鞋,过道鞋柜主要用来收纳换季鞋,柜子以隔板的形式,同时可作为杂物柜使用。
空间的合理利用,不浪费每一份空间,我们利用过道做一个杂物柜,因为主卧室有独立的衣帽间设计,所以该柜子上没有做过多的功能型设计,只是简单几个隔板,用来收纳不常用的东西。
阳台
阳台柜是将拖把、洗拖把桶、擦桌子的毛巾等放进柜内收纳,使整个空间干净整洁。阳台柜预留空间给客户放置后期添置的杂物。


