业主家的这套房是上海典型的老公房,75㎡的两室两厅构造在老公房里也不算太小,但是要想让它换新颜就得把原来的老装修全部拆除,为它注入新鲜血液,相隔热采光等通通要重新开始考虑。婚期已定,装修也就迫在眉睫了,经过改造后使原本毫无特点的房屋让人眼前一亮。

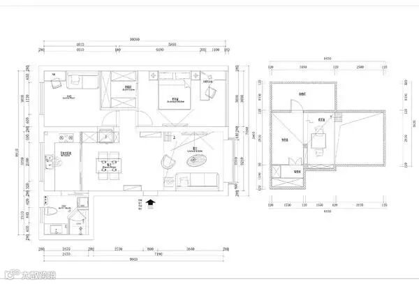
原始房型图

他们的房子有着所有老公房的通病,室内破旧,带点霉味,客餐厅的通道太多,影响整体性。房间南北不通。由于是阁楼,后期平改坡,所以房顶上有自带阁楼。(室内缺少防水层和隔热层)

平面设计图
业主最大的需求就是能够充分利用阁楼的空间,希望楼上可以有一个休闲区兼客房以及能够有足够多的储物空间。楼下保证两房两厅,南北通透,而且女业主想要有衣帽间。
对于目前的两口之家而言,原户型的两房两厅已经足够使用,只要解决南北通透问题就可以。但考虑之后家庭成员的增加,储物空间是必不可少的,储物空间利用阁楼是必须的,但是通阁楼的楼梯位置将会占用较大的原有面积。设计师整改阁楼要面临的问题:
1.楼梯位的思考
2.阁楼空间的利用率
3.休闲区及储物空间的布置
4.阁楼的防水隔热处理

▲房屋改动最大,也是设计师和业主最满意的地方就是将原有客厅顶部的预制空心楼板拆除,保证楼上有一处休闲区及足够的储物空间,将原有阁楼比较低的空间利用为客厅挑高,增加原本2米6的客厅的高度到最高处5米,一进门的视觉感完全超乎想象。

▲由于阁楼不常用,所以使用小而时尚的爬梯,解决了占位太大的通病。利用阁楼的其他空间分别做出了两个大的储物间,注重生活质量的业主柜子的材质是生态板,利用制作隔热层的间隙,设计客厅简约却有视觉感的延伸吊顶,将整一个平层空间连接成一个完整的复式感loft空间。

▲进门在客厅和餐厅连接处,从客厅看过去,视觉效果很不错。优雅的黄色沙发,纯色的靠枕,还有红色的懒人椅,是不是眼前一亮,家里的地板都选择的是实木复合地板,实木复合地板的表面涂漆处理的很好,耐磨性好,且不用花太多精力保养。

▲沙发后面的绿叶是设计师在看到业主选的黄色沙发后亲手为业主家画的,简直不能太搭了。


▲阁楼主要是业主休闲娱乐的空间,边上有收纳开放的储物间以及嵌入式的衣帽间,在适当的空间内为业主实现了她梦寐以求的衣帽间,经过改造后宽敞的二楼有足够大的空间供业主玩乐,挑高的阁楼房顶连人站起来都不会觉得压抑,想怎么躺就怎么躺,想待多久就待多久。

▲平常的时间业主和老公两个不大常去阁楼,但是有朋友造访的话基本都是在阁楼上玩,她家的阁楼就是她们家中的网红区域,人见人爱。

▲将原有层也就是现在一层的房门改成南北对门,解决南北空气的流通问题,将原来封闭的厨房改成木质玻璃移门的形式,既能增加通风和采光,同时也能不阻隔视线,在视觉上保持空间的整体性,厨房的橱柜选择的是得奇思的橱柜,不仅储物能力强大而且跟整体感觉都很搭。

▲原本想要开放式厨房的女业主在设计师的建议下选择了推拉门的半开放式,这种做法以免油烟往客厅和阁楼上走,全开放式的厨房在这样不算很大的空间里时间久了会让家里家具都有一种油腻感。

▲主卧跟儿童房就在相互的对面,两边房间的采光都挺好,主卧的空间相当于次卧的两倍,再加上木质的床和白色嵌入式的边柜显得卧室很大很干净。

▲利用吊顶隔出了一个小小的休息区,也可以说是阳台区,一把黄色的木质椅子一本书就可以静静地度过一个下午。黄色点缀在家里的各个区域,从客厅的沙发椅子到主次卧的窗帘都带着活泼的味道,白纱是方便阳光倾洒进来,黄色的窗帘却是很挡光。

▲为未来孩子预留的另一间房,卧室一整片蓝色的墙,为了孩子的安全选择了多乐士的儿童漆,在像蓝天的墙上放了一个宜家的云朵灯,斑马的四件套,桌上的小摆件让整个空间充满童趣。



