“思悦设计微刊”,专注「家居、时尚、艺术、创意」设计分享
项目名称|侨建御溪谷E型样板间
----- 现代轻奢风格
设计灵感
电影《这个杀手不太冷》
本案设计风格是现代轻奢风格:
是一种极致的简约风格,
它摒弃了传统意义上的奢华,
简化装饰,返璞归真,
同时又给人时尚前卫、
气质优雅且不失温馨舒适的感觉。
我们赋予每一个走线不同的主题,来延展这个空间的作用,引领、提升客户的生活品质。

地下室平面
软装搭配
越尊贵的居所,越需要多元的休闲区来满足社交需求,公共活动区被打造得温馨舒适而惬意;在这里,可招朋待客,欢乐派对,营造出轻松畅谈的氛围。

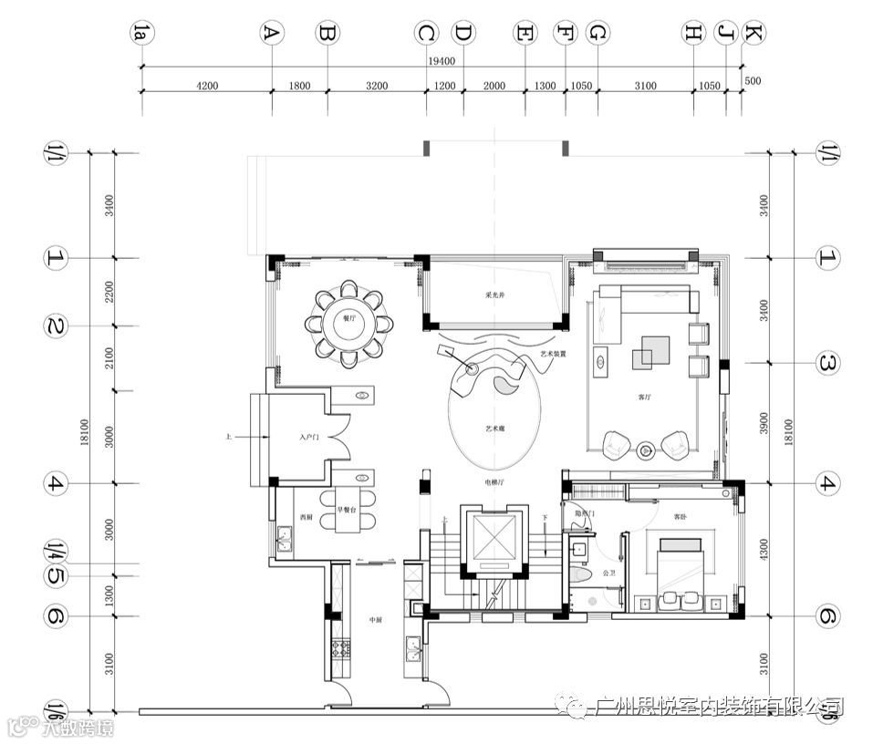
一层平面
软装搭配
硬装修手法的简洁,但也并不像一般的简约风格那样随意。看似简洁朴素的外表之下却常常折射出一种隐藏的贵族气质,这种气质大多数通过一些精致软装元素来实现的。

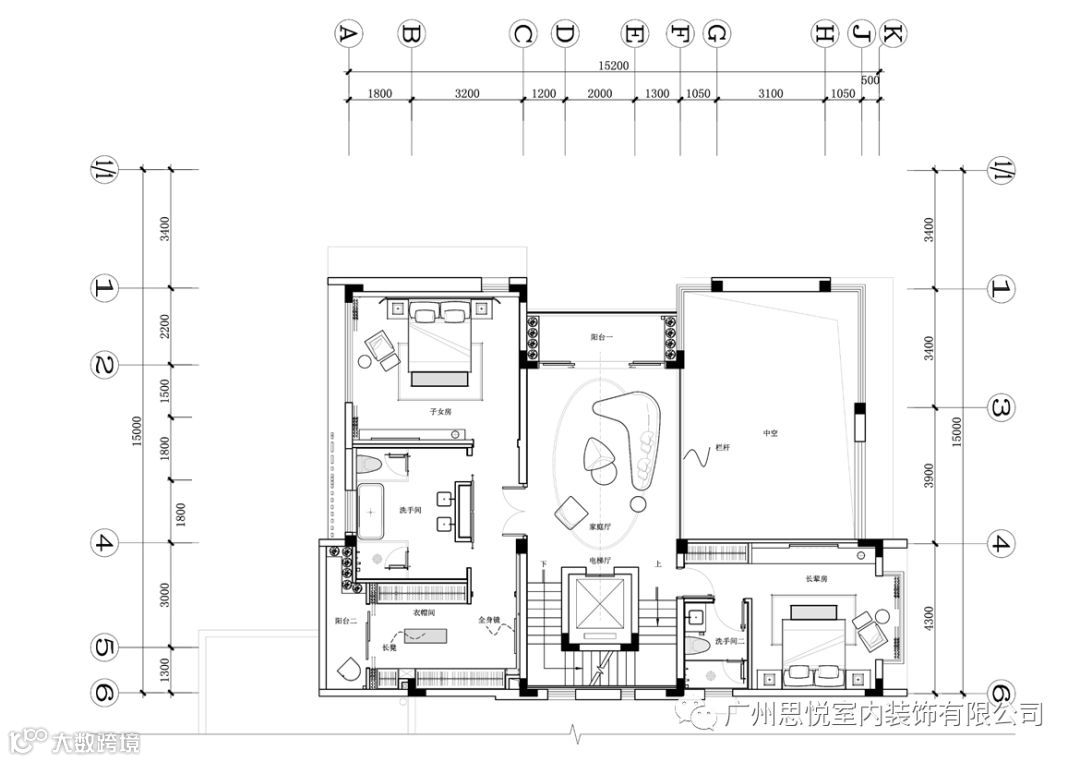
二层平面
软装搭配
长辈房
艺术像是游戏,每个人都是生活家。生活最好的模样:一席花,一米阳光,满心闲适。

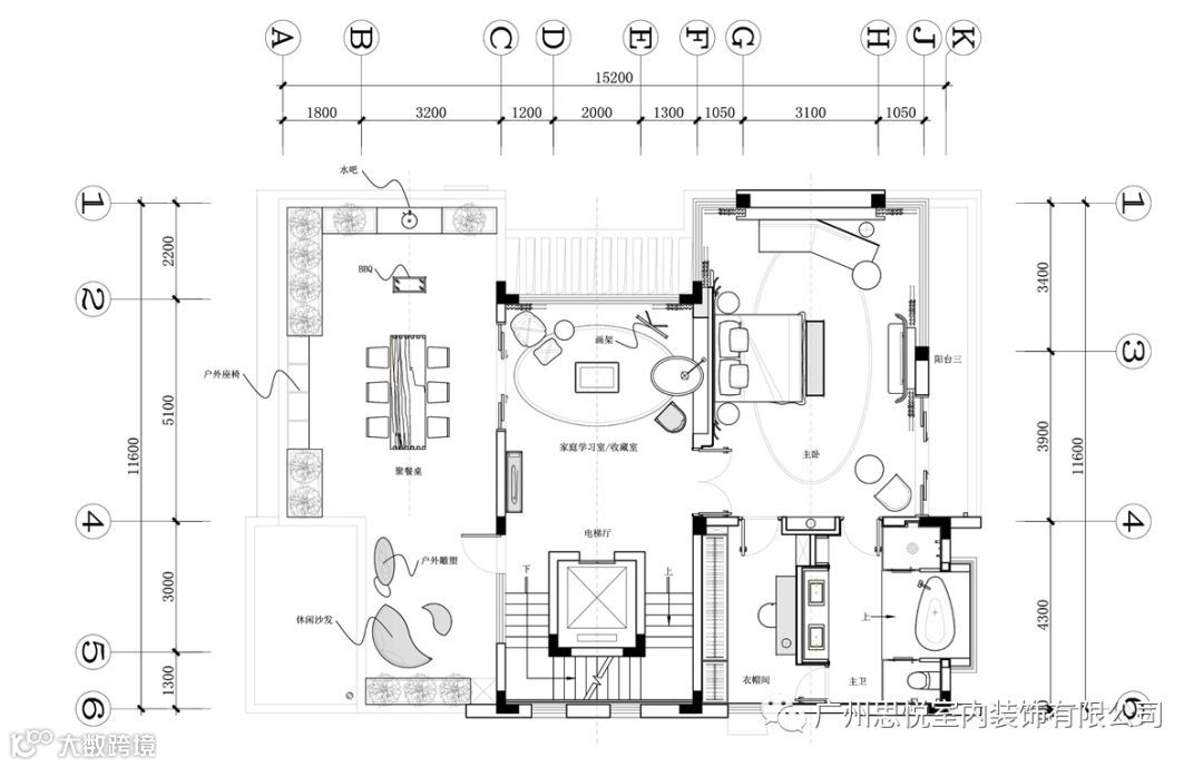
三层平面
软装搭配
生活无外乎分为自然美和艺术美两大类,自然是艺术的镜子,艺术也是自然的写照。
主卫
衣帽间
空间承载着生活,设计不仅与美有关,更多的是去关乎人性。重建人与物的美好关系,构建与心一致的生活状态,没有执拗的理念,不被思维所束缚,用轻松幽默的方式,讲述现代艺术的故事。

楼梯
END
还想看~
纯粹格调 营造无形之美的生活意境
广州思悦室内装饰有限公司
为您提供理想的整体家居装饰服务。
量身订制的软装设计,配合贴身的管家式服务,
我们用高端和个性化的设计,专业和透明化的施工,为客户提供理想的整体家居装饰服务。
电话:020-3482 4333
邮箱:theorydesign@126.com
番禺总公司地址:广州市番禺区南村剑桥郡国际文化中心二层243-244号(烽禾电影院旁)
增城分公司地址:广州市增城中新镇侨建御溪谷二期御宾街G2栋


