






















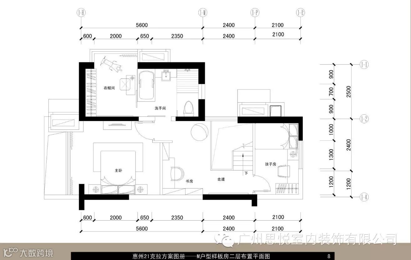
项目概况
项目地址:惠州淡水21克拉售楼部样板间
主材:木饰面、黑桃木、墙纸、大花白石、帕斯高灰石、瓷质面、拉丝、抛光
金属。
广州思悦室内装饰有限公司
为您提供理想的整体家居装饰服务。
量身订制的软装设计,配合贴身的管家式服务,

电话:020-3482 4333
邮箱:theorydesign@126.com
广州思悦室内装饰有限公司






















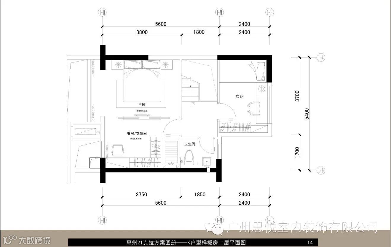
项目概况
项目地址:惠州淡水21克拉售楼部样板间
主材:木饰面、黑桃木、墙纸、大花白石、帕斯高灰石、瓷质面、拉丝、抛光
金属。
广州思悦室内装饰有限公司
为您提供理想的整体家居装饰服务。
量身订制的软装设计,配合贴身的管家式服务,

电话:020-3482 4333
邮箱:theorydesign@126.com