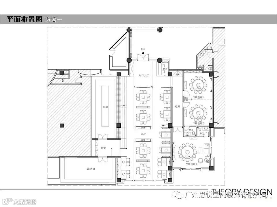
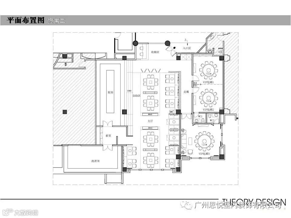
项目地址:广州市番禺区南村镇镇兴南398号广州雅居乐花园会所一层火锅店
“日暮汉宫吃毛肚
家家扶得醉人归”
中国人对火锅情有独钟
不拒荤腥、不兼寒素
用料不分南北、调料不拒东西
山珍海味、河鲜时菜、豆腐粉条来着不拒
荤素杂糅、五味俱全、主料配料、味相渗透的“中和”之美

今天看设计师如何玩转火锅店
带大家吃顿时尚艺术火锅
Let‘s go!




无障碍流线确保了上菜速度及安全
无论你是情侣约会、朋友聚餐还是家庭聚餐
都可以在这里得到舒适的身心体验





大胆采用几何元素对空间进行装饰
简单的几何线条拼接和色块的结合
给人带来强烈的视觉冲击
室内氛围显得异常精致,给人无限的遐想空间
夸张的装饰画,主题软装的绿色调
外加大量的绿植及艺术品
让整个空间生机勃勃
荡漾在现代空间里的正是童稚、喜悦和奔放







卫生间用大面积的重色块配以白色点缀
形成了经典的黑白配
地面的艺术花砖画龙点睛
整个空间充满艺术气息


吃完饭不妨抬头
欣赏下小艺术家们献给大家的礼物
“爸爸,我画的火锅里面有条鲨鱼,我画的是海鲜火锅!”
“这个小兔子是王俊凯哥哥,王俊凯哥哥在吃火锅”
(话说小编真是看不出这个小兔子是王俊凯呀)
..............
设计源于生活,又服务于生活
在快节奏的生活中
不妨放下手机,约上朋友带上家人
你会发现你最珍贵的东西莫过于正在陪你吃火锅的身边人



项目情况
项目地址:善馨德火锅店
设计单位:广州思悦室内装饰有限公司
面积:450平方米
主要石材:烧面麻石、木纹石
广州思悦室内装饰有限公司
为您提供理想的整体家居装饰服务。
量身订制的软装设计,配合贴身的管家式服务,

电话:020-3482 4333
邮箱:theorydesign@126.com

