选的户型怎样将直接影响后期居住舒适度,房子所在小区位置的好坏决定了房子的采光、通风、日照;房型上也要甄别,塔楼、板楼、蝶状户型设计都会有不同;大家都知道户型方正、南北通透的房子好,但在内部格局上,动线如何、动静和干湿是否分区等也都是关注的细节。


位置选择
①小区地理位置
家有老人:选低层,出行方便,停电不用爬楼梯。
三口之家:选中层,不高不低,视野开阔,不会压抑。
年轻人:随意,可根据自己喜好选择。
如果不谈入住人口,推荐楼层↓↓↓


-
优点是价格低,居室朝阳面多;面积偏小一点,适合刚需入住。 -
通风采光差,入户门正对电梯间,隐私性差。
-
优点是南北通透,采光通风俱佳。 -
缺点,西边户西晒严重,面积通常都很大,整体价格高。
选好了房屋的位置,咱们接着来看看户型。

整体方正
好房型的标准,第一条便是户型方正,什么叫户型方正呢,首先,你打眼一看,最起码不能有畸形空间。




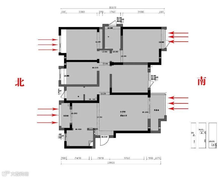
坐北朝南,也就是房屋的朝向问题,房屋坐北朝南,才能拥有好的采光。

南北通透
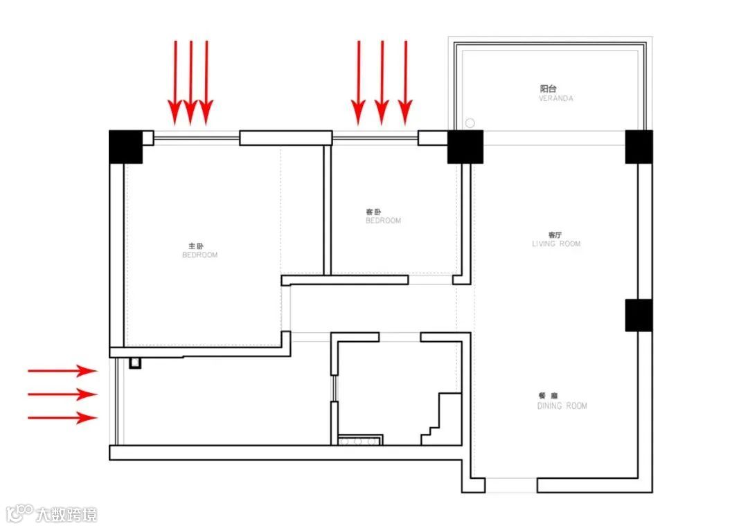
坐北朝南只是采光好,要南北通透,才能有好的通风条件;



即房屋只有一个方向有窗户,无法形成空气对流,是所有通风条件里,最差的一种户型,这种户型中间户偏多。
户型分区



图文素材整理来源于网络,如有侵权请联系删除


