▲ 点击上方蓝字,关注PKPM绿色建筑!
文章来源:搜建筑 微信号:sjz9999
第一章 概述:地下车库的定义和分类
1、地下车库的分类
本研究将地下车库分为以下几类,方便在以下的章节中分类讨论:
第Ⅰ类:名系、未来系、格林系公寓大地库为连通的大地库,停车数量在100辆以上,面积在3000平米以上的大中型地库。
第Ⅱ类:名系、未来系、格林系别墅地库
第Ⅲ类:国际系公寓大地库
第Ⅳ类:钻石系、白金系别墅地库
2、分类研究的侧重点和目标:

第二章 地下车库的平面布局
基于经济性原则的平面布局:
1. 地下车库的普通成本
人防车库的单方造价是约 3800~4000元/平方米;
非人防车库的单方造价是约 3200元/平方米;
而地面住宅的单方造价(毛坯)约为2300~2600元/平方米,地下造价约高出40% ~50%;
目前新建住宅项目的地库面积占到总建筑面积的10~30%;
2. 影响地库造价的因素

3. 配车比例:
a、规范指标:
1.国标要求
2.地方规范
3.土地出让合同中政府的要求
以杭州项目为例:
住宅配车数量与户型面积成正比,配自行车数量与户型面积成反比;
其它物业类型中配车比例从高到低依次为:
餐饮
商业
办公
旅馆

商业对于汽车和自行车的配车要求都较高。杭州24#地块由于有商业,采取的办法是尽量减小商业报建的面积,当商业面积由10000平米以上减到以下时,配车比例即降低一个档次;
餐饮比一般商业配车要求更高,如有餐饮也应按照一般商业报建;
办公比一般商业配车要求低,可以用一部分商业报办公的办法来消化商业比例;
住宅也分为几个档次,当面积与分档面积相差不多时,可以进行微调来实现配车比例的降档变化;

徐泾项目的配车比例是按照政府土地出让合同中的0.8辆/户来报建的;
但实际上考虑人们的需求和高端的定位,最终定为:
大宅(300平米) 2辆/户
中宅(180平米) 1.5辆/户
小宅(90平米) 1辆/户
b、建议和结论
1.所有类型的车库必须首先能够同时满足国家规范、地方规范及土地合同要求;
2.可以按照下表计算车位配比数量进行标准化:

3.对于格林系、未来系、名系公寓楼盘,不考虑人车立体分流的,可考虑10%的车位为地面停车;
4.对于国际系公寓楼盘,完全人车立体分流,可在地面上不留停车位。若有对外经营的地面商业,可适当考虑少量地面停车;
4. 单车位面积经济指标:
a、单车位面积
《汽车库建筑设计规范》中计算出的每车位面积,垂直后退停车所需的车道宽度最小,单车位面积最省(轻型车为33.9平米),为提高停车效率,原则上都应采用垂直后退停车。
根据以往项目经验,人防车库每车位面积控制在35平米,非人防控制在30平米是最经济的。可以作为操作项目时的判断依据。

一般私家轿车的尺寸如下表:

可见,宽度达到1800的多为高档车, 而高档车在总车辆中比例不是太大。中档车的宽度都在1700左右长度4500在以下。
《汽车库建筑设计规范》
明确小型车外廓尺寸为:4800(长)×1800(宽)
4.1.1公用汽车库中汽车设计车型的外廓尺寸可按表4.1.1的规定采用。
汽车设计车型外廓尺寸:

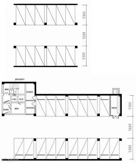
根据汽车库建筑设计规范所规定的车与车、墙、柱之间的净距(右图),计算出标准车位的设计尺寸应为5300(长)×2400(宽)。



计算出的2400×5300标准车位尺寸与规范的规定也是一致的(表)。
但不同地区要求可能不同。如杭州要求标准车位按照2500×5500进行设计。
b、单车位面积设计的结论:
1.对于不同类型地下车库的单车位尺寸可按照表2选取;
2.对于物业类型混搭的地下车库,可按照不同物业类型选取单车位尺寸;
3.可以按照如下指标控制地库的经济面积:
人防地库: 35平米每车位
非人防地库:30平米每车位

5. 行车道:
《汽车库建筑设计规范》表规定,垂直后退式停车双车道为5.5m宽,为提高停车效率,一般都采用双车道双面停车。一般行车道宽度做到5.5~6.0米。

建议Ⅰ类大地库行车道宽度定为5.7~5.8m,Ⅲ类大地库行车道宽度定为6.0~6.2m;
6. 经济柱网:

根据规范,停3辆车的柱间净宽应为7200,若采用600×600的柱子,停3辆车的柱网轴线间宽度至少为7800,若一边有墙则为8100。
同理,停两辆车的柱间净宽应为4800,若采用600×600截面的柱子,柱轴距为5400。
而杭州要求停3辆车的柱轴线尺寸不小于8400。
如下图,双排停车采用7800×8100的柱网是最经济的。常用尺寸还有8100×8100。考虑到适当放大行车道宽度更为舒适,建议标准模块的柱网尺寸按下表取值:


柱距每小100, 面积要差1.6平米, 以两个柱网放辆车来分析, 3辆车要半个柱网的面积因此每差100宽,对每辆车至少要差0.5平米的面积.因此尽量不要随意增加经济柱网的尺寸。

模块平面应用举例:位于两栋建筑之间的最经济(极限)布局
建议Ⅰ、Ⅲ类地下车库将车道尺寸放大至5.8~6.0m,且柱子的布置最好不要顶到车位尾端;
7. 坡道:
坡道长短同样影响车库面积和停车效率。《汽车库建筑设计规范》规定,直线坡道小型车坡道坡度为最大,为15 %,一般设计时有条件应尽量设计直线坡道。
若采用曲线坡道,应注意坡道的最大坡度为12%,最小转弯半径为6米。


建议坡道的坡度按照下表控制:


汽车库内当通车道纵向坡度大于10%时,坡道上、下端均应设缓坡。其直线缓坡段的水平长度不应小于3.6m,缓坡坡度应为坡道坡度的1/2。曲线缓坡段的水平长度不应小于2.4m,曲线的半径不应小于20m,缓坡段的中点为坡道原起点或止点。

8. 出入口:
大中型汽车库的库址,车辆出入口不应少于2个;
特大型汽车库的库址,车辆出入口不应少于3个,并应设置人流专用出入口。
各汽车出入口之间的净距应大于15m。
出入口的宽度,双向行驶时不应小于7m,单向行驶时不应小于5m。
1.0.4汽车库建筑规模宜按汽车类型和容量分为四类并应符合表1.0.4的规定。

浙江省《城市建筑工程停车场(库)设置规则和配建标准》:
机动车停车场(库)出入口的车道及数量,应符合如下规定:
停车数≤100辆时 应设不少于一个双车道或两个单车道的出入口;
停车数<25辆时 可以设一个双车道出入口,也可设一个单车道的出入口 ;
100 <停车数≤300辆时 应设不少于一个双车道和一个单车道的出入口;
300 <停车数≤500辆时 应设不少于两个双车道的出入口;
停车数>500辆时 应设不少于三个双车道的出入口;
上海市《建筑工程交通设计及停车库(场)设置标准》:
机动车停车库的出入口的车道及数量,应遵守下列规定:
停车数<100辆时 应设不少于一个双车道或两个单车道的出入口;
停车数<25辆时 宜设置双车道,也可设一个单车道的出入口 ;
100 ≤停车数≤200辆时 应设不少于两个单车道的出入口;
200 ≤停车数<700辆时 应设不少于两条车道进、两条车道出的出入口;
停车数≥700辆时 应设不少于三个双车道的出入口;
1.出入口的数量按规范设置即可;另外还要考虑使用的要求。平时刷卡过车约12s过一辆车,1小时最多可以过300辆车。如果1小时还没有从坡道出去,很难有耐心等候。若考虑高峰时段80%的车辆需要通过,那么每360辆车设一对出入坡道是可以忍耐的底线。
2.按照规范要求, 汽车库的汽车出入口宽度,单车行驶时不宜小于3.50m,双车行驶时不宜小于6.00m。 建议将单车出入口放宽至4.5米, 双车道放宽至7米。
9. 人防地库:
地下室人防范围内建安成本比地下室其他部位高,人防区域超出非人防区域 20 %左右,因此减少人防面积也是降低造价的一种手段。
按照各地方规范,要求新建十层以上或基础埋深达3米(含3米)以上的9层以下民用建筑,应建“满堂红”(即与地面建筑底层相等的面积)防空地下室;新建9层以下,基础埋深小于3米的民用建筑,按地面总建筑面积的2%修建防空地下室。
因此应尽量降低低多层建筑地下室的基础埋深,控制在3米以下,可以使需要修建的人防面积降到最低。
10. 经济性原则
1.依据地面建筑的布局进行设计,地库轮廓尽量规整,避免过多凹凸的形状增加地库外墙的长度;不好停车的边角余料空间可以用作设备用房;
2.在建筑规划的初期甚至就可以按照地下车库的模数来控制建筑间距;
3.双排停车比单排停车效率高,有条件的情况下尽量布置双排停车;

4.对于一些不够双排停车的空间,可酌情设计子母车位,每个字母车位可以算1.5个停车位;
5.一些不够垂直停车的部位可适当布置斜角停车和直线停车,只要保持距后墙0.5m, 车车间距0.6m, 出车的前面有5.5m, 都能放车;

6.遇到地形有斜向的时候, 往往结构布局先排列标准柱网, 最后遇到外圈墙, 这样外圈主车道就很别扭。如果用另一个办法设计柱网, 即使外墙内的最后一排柱子平行于外墙, 就可以提高行车效率,且保证外圈主路的通畅。

11. 舒适性原则
1.在标准柱网里, 车头车尾都超出柱子, 这样出车方便;
2.当车库使用时需要封侧面墙体,会由于原先车位和柱子间的尺寸不够而导致车门不能开.有封闭可能的车位要事先多留300宽度;
3.车行道设置要合理,避免出现S弯;

12. 品质感原则
1.停车入户要方便,采用就近停车原则;
徐泾项目的规划布局是错位式,所有大宅都是北面入户,为达到停车入户方便的目的,地库的设计导向由经济性转向品质感,采用了凹凸非常多的形状;

2.停车入户的高差要尽量化解;
由于地库层高较高,且要保证1.5米的覆土,往往和住宅地下室地坪有一定高差。徐泾项目采用了将大堂部分降到和地库同样标高,用电梯提升,非一层户业主感受不到地库和住宅之间的高差;

第三章 地下车库的竖向设计和通风采光
层高和覆土:
1. 地下车库的层高
1.由于地下车库造价高、建设周期长,作为金地的项目,原则上在有条件的情况下都只做地下一层车库。
2.层高的降低可以减少基础埋深,缩短入口坡道,减少内外墙体高度、外墙防水面积、土方及护坡费用,从而降低整体造价。
3.《汽车库建筑设计规范》规定,小型车停车净高最小为2.2米。有防烟要求时,顶板板底防烟垂壁不小于0.5米高,理论上车库层高做到2.2+1.0(梁高)+0.2(顶板厚)=3.4米就能满足规范要求。如果考虑实际的各种地库管线高度,当采用梁板结构时,层高达到3.6米以上才能保证2.2米的净高。采用无梁楼盖体系可以使这个高度降低300mm.
2. 地下车库的覆土厚度
1.由于杭州上海的政府部门纷纷出台政策认定覆土厚度达到1.5米才能计算绿化率, 并且1.5的厚度一般能够满足室外管线的埋设深度, 因此建议地库覆土厚度统一做到1.5米;
2.目前许多项目的变电站都设置在地下, 而变电站的净高要求在4.2米以上, 顶部凸出地库顶板, 导致变电站顶的覆土厚度在0.6~1.0米, 对上部的景观种植有影响, 建议设计院在变电站上部考虑1.0米以上的覆土荷载, 使得景观可以做一些堆坡;
3.抬高整个场地的高度可以减少地库的挖深, 从而大大降低造价, 并且可以利用抬高的部分, 在沿河一带做出半地下车库进行通风采光;
2、地下车库与场地的关系:
1. 按照地下车库与地面的关系,可以分为全埋式和半埋式两种,巧妙的剖面设计可以使地下车库获得自然采光与通风, 节能的同时创造了舒适的地下行车环境。



3、地下车库与建筑的关系:
1.地下车库与住宅地下室由于覆土的原因,一般都有2米左右的高差;对于三类大地库和四类别墅地库, 为了实现品质感的追求,可以降低地下室地平与地库地平同标高, 以实现平进平出,代价是需要增加人防面积和土方挖深. 代表作品是绿城御园。
2.对于三类大地库, 即使不能做到和住宅地下室平进平出, 至少应保证地下大堂能够平进平出。
3.地下车库可以与地下大堂共用采光井进行采光。


4、地下车库竖向设计案例:
案例1 嘉兴康桥花园
地库上方开采光洞,做采光井


案例2 浦东星河湾
地库结合下沉景观进行设计



案例3 绿城舟山桂花城
地库结合下沉景观进行设计
人行出入口也进行景观化处理


案例4 绿城蓝庭地下车库
有两处利用侧面下沉庭院进行采光;

案例5 格林世界地下车库
同时利用下沉景观庭院和侧面进行采光;



案例6 绿城北京御园
地下车库与住宅地下室平进平出;


第四章、地下车库的装修
1、装修标准和设计风格:
1.金地项目的地下车库一般都采用简装, 随着豪宅产品的不断出现, 对地下车库的装修标准也在不断提高.
2.地下车库的装修标准建议分为以下几个档次.


2、地下车库装修:
1. 地库顶面处理
对于Ⅲ、Ⅳ类地下车库,可以考虑做地库吊顶,遮蔽管线。
吊顶建议采用铝合金格栅形式,内嵌灯具。

2. 地库墙面处理
1.除与地下大堂相邻的墙面,其余大面墙体建议做粉刷;
2.与地下大堂相邻的墙面,由室内设计公司进行设计,石材或墙砖;


杭州绿城新绿园-地库和大堂连接部位

华润上海滩花园地下车库

浦东星河湾地下车库


浦东星河湾地下车库--入口部位的柱子和喷泉
3. 地库柱面处理
1.柱子底部做10cm踢脚;
2.柱子蹄脚上部1.0米彩色涂料粉刷,色彩按照分区选择;
3.柱子1.1米以上做白色涂料粉刷;
4.柱子四个脚在彩色涂料范围内安装防撞标识。
补充柱子大样图:

华润上海滩花园

绿城新绿园

滨江金色海岸
4. 地库地坪处理
1.全部采用环氧地坪漆处理;
2.行车通道和停车位地面采用不同颜色漆面;
建议色彩组合:
①行车道采用灰色地坪漆,停车位用暗红色;
②行车道采用灰色地坪漆,停车位用深绿色;
3.车位和道路划线采用白色。
补充环氧地坪节点图:


恒隆广场地下车库
4.车位地面处理:
① 车位靠近车道一侧地面喷涂编号、车牌号;
② 已出售车位、已出租车位和未出租车位进行区分;
③ 车位远离车道一侧设置横向停车挡、靠近车道一侧设置三角停车挡;
补充大样图:



华润上海滩花园地下车库
5. 防火门选型和设备用房
针对Ⅲ,Ⅳ类地库装修标准可以提高:
1. 防火门和设备用房门选型要提高档次,注意美观:
2. 设备用房装修也要提高档次,部分墙面用墙砖,地面铺地砖.
3、地下车库出入口设计:
车行出入口设计:
1. 减震坡道做法;
2. 坡道侧面墙壁装修;
3. 闸机位置设置;
4. 标识牌、摄像头、指示灯设置;
5. 出入口顶棚设计;


华润上海滩花园

绿城翡翠城地下车库出入口
一周好文,精彩看点
《流浪地球》里的地下城,其实已经建了不少了

PKPM绿色建筑
|构筑未来 力创卓越|
关注我们▼

长按二维码

