▲ 点击上方蓝字,关注PKPM绿色建筑!
文章来源:搜建筑 微信号:sjz9999
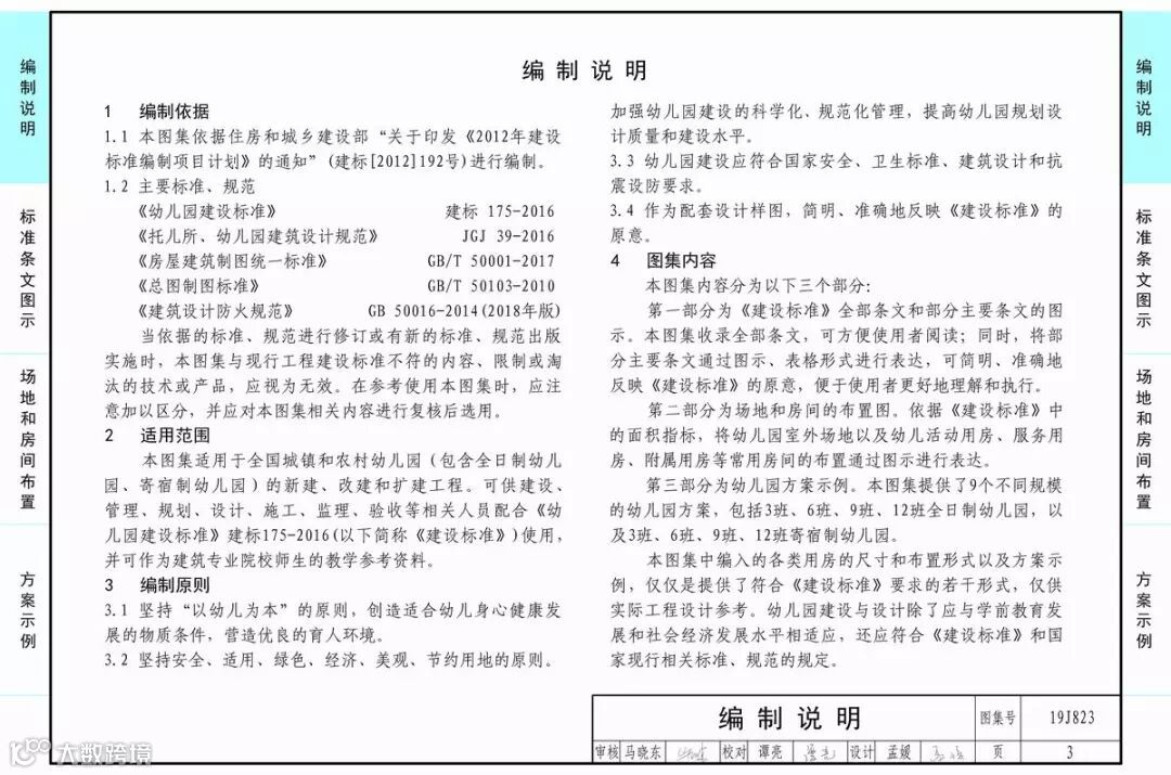
住建部、教育部印发 《幼儿园标准设计样图》
国务院办公厅印发了《关于开展城镇小区配套幼儿园治理工作的通知》,部署在全国开展城镇小区配套幼儿园摸底排查和清理整治工作。
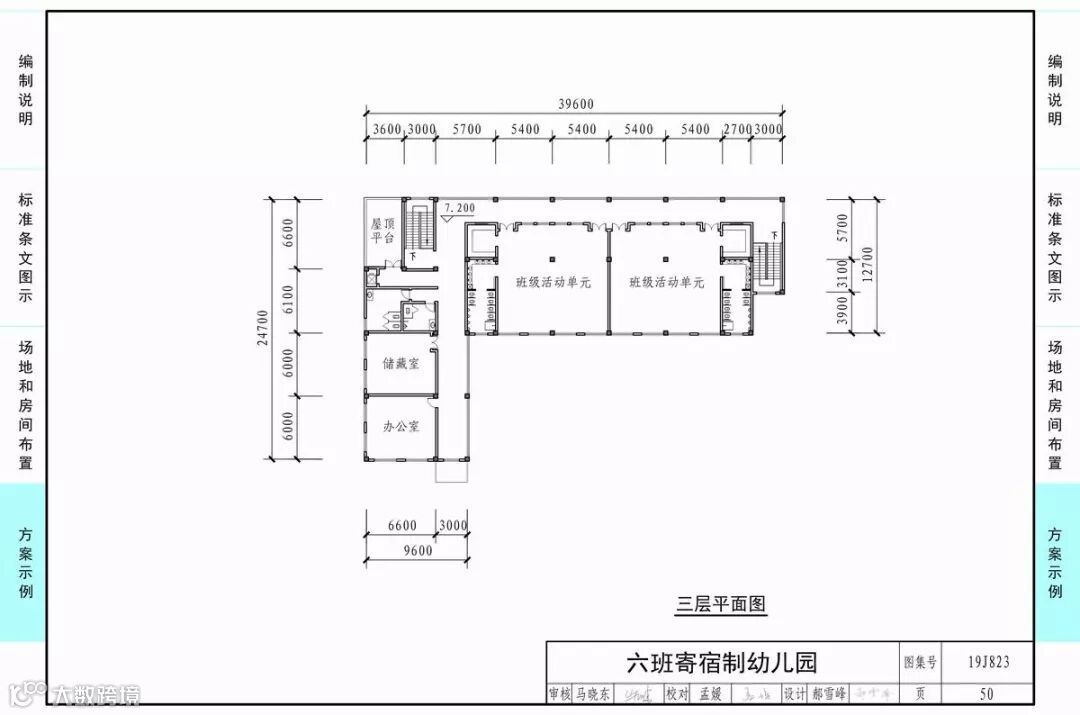
住建部、教育部联合印发《幼儿园标准设计样图》本图集提供了9个规模不同的幼儿园方案,包括3班、6班、9班、12班全日制幼儿园,以及3班、6班、9班、12班寄宿制幼儿园。
以后再也不用为幼儿园设计发愁了……
不过幼儿园的创意还能玩吗?

教育部、住房和城乡建设部关于印发
《幼儿园标准设计样图》的通知
教发函〔2019〕1号
各省、自治区、直辖市教育厅(教委)、住房城乡建设厅(委、局),新疆生产建设兵团教育局、建设局:
根据《住房和城乡建设部关于下达2012年建设标准编制项目计划的通知》(建标〔2012〕192号)的要求,教育部、住房城乡建设部组织东南大学建筑设计研究院有限公司编制了《幼儿园标准设计样图》,并已经有关部门会审通过,现印发给你们,请参照执行。
《幼儿园标准设计样图》的管理由教育部负责,具体解释工作由东南大学建筑设计研究院有限公司负责。
教育部 住房和城乡建设部
2019年1月17日
附件:幼儿园标准设计样图































































这份样图,从总体到细部,从场地到房间布置,方方面面,把《幼儿园建设标准》的主要条文通过图示、表格进行表达,并提供了不同规模的全日制、寄宿制幼儿园方案供参考。
PDF大尺寸样图下载地址:https://pan.baidu.com/s/1racaDmFDftCC8aBBtnNhHA
看点:
1.新《绿色建筑评价标准》GB/T5038-2019,报审稿要点解析
2.重磅!新《建筑法》《消防法》4月23日起施行,附新修订全文!!
3.新品发布 | 绿色建筑计算工具箱PKPM-GBtools
4.建筑师的儿子会打洞

PKPM绿色建筑
♥♥扫码关注♥♥
▼ 点击,直接下载




