▲ 点击上方蓝字,关注PKPM绿色建筑!

南通三建在超低能耗绿色建筑建造方面,通过多年的实践与探索,已走向技术研发 →业务培训→项目设计 →产品制造 →建筑承包 →运营维护管理等全产业链服务商的领域。模块化集成建筑也在研究与探索。
而南通三建超低能耗绿色建筑产业园项目是南通三建与德国能源署进行技术合作并投资建设的江苏省首例采用德国被动房标准设计、施工的大型综合体建筑项目。
该项目主营绿色节能低碳建筑设计和运营服务管理、新型建筑材料研发和生产,是南通三建科技创新的前沿阵地。
那么,小编将从设计要求、部品生产、关键技术应用三个部分向大家介绍。
▌装配式被动房设计指标
被动式房屋是目前世界上最先进的节能建筑,作为一种低能耗和极高舒适度的节能建筑,已经在世界各地尤其是德国得到了迅速推广和广泛应用。
而南通三建超低能耗绿色建筑产业园项目就是采用德国被动房标准设计、施工的大型综合体建筑项目。
它的建设目标是:
建成三星级绿色建筑;
形成相应的技术体系;
夏热冬冷地区装配式与被动式超低能耗技术集成应用示范项目;
可复制、可推广,应用至高层住宅建筑;
住宅适老性示范项目。
为了实现以上目标,南通三建提出了“被动式超低能耗建筑技术指标”和“装配式建筑技术指标”并将目前已掌握的被动式超低能耗技术、装配式技术、三星级绿色技术、智慧家居技术、适老性技术、信息化技术六大核心技术综合集成深度融合。


▌建筑外围护结构无冷热桥构造设计要求
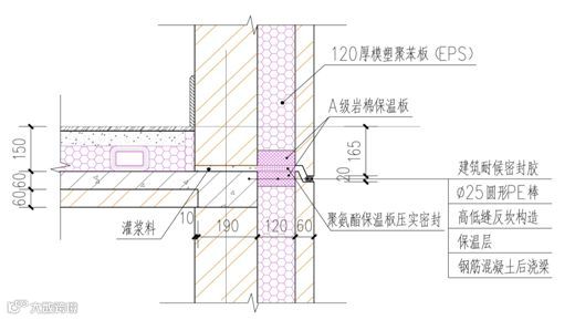
1、外墙设计
1) 预制构件水平缝外口采用圆形PE棒上下挤压确保气密性良好,其外侧使用建筑耐候密封胶确保防水性良好;
外墙水平缝节点

2)竖向缝塞A级岩棉保温板进行封堵确保保温性良好,外侧做法同上;
外墙竖向缝节点

3)外墙结构保温一体板中间连接采用无冷热桥连接件连接,确保内外无冷热桥。
外墙保温做法节点

2、外窗设计
外窗采用聚酯合金窗(三玻两腔),传热系数为1.0w/m2.k,外门窗气密性等级不低于8级、水密性不低于6级、抗风压性能不低于9级。
建筑东、南、西向都采用可调节的活动外遮阳。

在构造上,确保气密性是关键。
3、阳台、设备平台设计
凸出建筑主体的阳台和设备平台是被动房明显的热桥薄弱环节,本方案采用保温连接件将挑板与主体进行连接,有效阻断阳台、设备平台等地方的热桥。传统的做法是将挑板四面包起来。

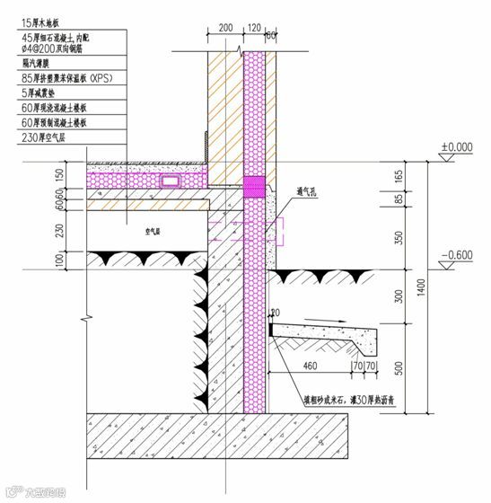
4、底层架空层设计
本方案采用架空地面,架空层内回填土比室外地坪高100㎜,能有效解决室内地坪积水问题,架空层外墙开设通气孔,保证空气层内自然通风,并且在保温层上面覆盖一层隔汽薄膜作为水蒸气的阻隔层。
地面做法节点

5、屋面设计
屋顶采用平屋顶+钢结构坡屋顶的方式,形成保温通风的空气间层;钢结构金属瓦屋面对平屋顶上面的保温层进行保护,提高了系统的耐候性。

▌EPS保温模块生产线及产品
2015年9月9日,首批10条EPS保温模块生产线正式投产,年生产能力达250万平方米墙面面积,可供长江三角洲被动式建筑保温材料使用。产品成功入选住建部《被动式低能耗建筑产品选用目录(2016)》。

产业园新增加一套EPS保温板材生产设备系统,可日产EPS保温板材近400m³,用于装配式被动房结构保温一体外墙板制作,进一步降低被动式建筑建造成本,提高经济效益。

▌节能门窗生产线及产品
超低能耗建筑节能门窗厂主要生产被动式建筑专用节能门窗,年产量达 5 万平方米,其技术先进性达到国内领先水平。

▌节能门窗产品——被动式建筑专用节能门窗
目前自主研发的节能门窗产品有二种:按窗框材质分有塑钢门窗和铝合金门窗。
其内填充保温材料的导热系数为0.032w/m.k,使整门窗k值为0.76,其技术国内领先。

▌PC构件生产线及产品
PC工厂主要生产被动式建筑预制混凝土构件。

预制砼构件生产工厂一角
夹芯保温外墙板、内墙板、楼层叠合板、楼梯板、阳台板及梁、柱等预制混凝土构件。是被动式超低能耗建筑建造不可缺少的预制构件工厂。

预制混凝土构件
▌PC构件复合保温墙板生产线及产品
预制砼 复合保温外墙板在室内制作 、养护,待混凝土达到一定强度后移往室外竖向堆放,起模移动采用专用吊具设备。

▌预制混凝土复合保温外墙板制作技术
1.外页板钢筋绑扎

2.预埋连件浇筑砼

3.铺设保温材料

4.内页板钢筋绑扎

5.混凝土浇筑

▌预制砼复合保温墙板内外页板连接技术

▌被动式建筑节能门窗安装技术(外固式)

▌被动式节能门窗安装技术(内嵌式)

▌被动式建筑外墙保温复合墙板施工技术

▌模块式建筑——样板房
近年来,南通三建开始了模块化智能建筑的研究,并进行了实践。

模块化智能建筑样板房
本模块化智能建筑样板房坐落于三建产业园内,二层,共7个模块组成一栋建筑,室内配置了成套智能系统,使用方便,贴近现代生活方式。

具有施工速度快(12天完成)、工业化程度高(模块在工厂内制作完成)、运输方便(集装箱平板车)、可拆装性强(拆装容易、损失少、周转使用)等优点。
▌模块式建筑——制作安装方法
模块化建筑在工厂里完成单体模块制作,包括模块内外装修,运往现场拼装,质量可靠,装拆方便。

适用于临时性建筑及永久性建筑。
▌模块式建筑——制作安装方法
建筑智能智慧是时代的进步,是生活质量提高使用的要求,我们目前只是做了一些偿试,还在探索之中,相信随着时间的推移,此项技术会不断提高,并广泛得到应用。

文章来源网络,版权归原作者所有,仅用于学习交流,如有侵权请联系小编删除.
往期精彩回顾
1.重磅!正式稿《绿色建筑评价标准》GB/T50378-2019公开啦,火速下载!!!
2.重磅!新《建筑法》《消防法》4月23日起施行,附新修订全文!!
3.国家建筑标准设计《建筑设计防火规范》18J811-1更正说明
4.建筑师夏天穿什么?


