▲ 点击上方蓝字,关注PKPM绿色建筑!
文章作者:顾乐明 | 文章来源:iStructure
城市因工业化而崛起,随着时代的发展,如今很多城市进入了后工业化时代。城市中有不少建筑,它们建成时承载着工业化时期特定的生产任务。在城市的发展进程中,它们的生产属性逐渐褪去,留下空空的建构物如废墟般存在。

▲上海当代博物馆(原南市发电厂)
对于这些工业遗产,当然可以拆除重建,为现代生活腾出空间。但它们作为不会再出现的建筑空间类型而具有历史遗产的保护价值。按照艺术史学家阿罗伊斯·李格尔(Alois Riegl)的分类法,它们属于“非有意创造的纪念物(Ungewollte Denkmal)”。

▲上海当代博物馆内景
《巴拉宪章》提出的“适应性再利用”(AdaptiveReuse)越来越为大家所认可。“适应性再利用”关键在于为某一建筑遗产找到恰当的用途,这些用途使该场所的重要性得以最大限度地保存和再现,对重要结构的改变降低到最低限度并且使这种改变可以得到复原”。这样的改造方式,最大限度地保留了原有建筑的文化性,并使城市的发展脉络得到了延续。所以,适应性改造的关键是找到合适的功能。

▲上海民生码头八万吨筒仓
筒仓作为大宗商品粮食或物料的储存地点,体量巨大,工业特征强烈。很多城市都将城市最大的筒仓保留了下来。同时,筒仓平面为圆形阵列,高度很大,以承受水平推力为主,结构上不太适合加层。如何改造筒仓,建筑师还在探索中,绝大多数结构工程师也不知道该如何配合。本文介绍几个筒仓的改造案例,探讨工业建筑改造的思路。

非洲当代艺术博物馆 Zeitz MOCAA
开普敦滨水地区位置醒目地坐落着一栋历史悠久的筒仓建筑,该筒仓建筑群建于1927年,自建成以来,一直用于收集、运输、存储、出口粮食。曾经是南非最高的建筑。2001年,筒仓正式停运。

关停后,其业主Victoria & Alfred WaterfrontHoldings Ltd(V&A)不断向设计事务所征询开发利用筒仓和附近基址的方案。与此同时,Zeitz基金会正在为他们收集的来自非洲各地的当代艺术品寻找一个新的永久居所。双方一拍即合,决定将谷仓变成了一个新的非洲当代艺术博物馆。

英国建筑设计事务所Heatherwick Stodio受邀进行了博物馆的设计。博物馆建筑面积9500m2,分布在筒仓内的九个楼层。除了博物馆的80个画廊外,Zeitz MOCAA还将设有屋顶雕塑花园,先进的储藏和保存设施,书店和用餐空间。

▲Zeitz MOCAA外景
筒仓实际上是由两栋完全分开的建筑物组成:西面一栋57m高的矩形建筑,和东面42个混凝土筒体组成。当筒仓运行时,火车进入西侧提升塔的下方,谷物提升到建筑物顶,在那里进行清洁和分类,随后被运输到其下部矩形的混凝土筒或西侧圆形的存储筒中。当港口有船到达时,打开存储筒下部的料斗,谷物落到地下室,通过传送到输送到停泊在港口的船只。

▲筒仓原功能示意图
项目最大的难点在于将这些紧密结合的混凝土筒体转变为适用于艺术展示的空间,同时保留建筑既有的工业痕迹。

▲Zeitz MOCAA功能示意
Heatherwick以天才般的想象力,在筒仓内雕刻一个中庭,创造出业主所描述的“大教堂般的中庭,充满了玻璃屋顶的光线”,博物馆的各个展厅、画廊以此为中心展开。

▲Zeitz MOCAA中庭内景
其实内部保留的筒仓只有中间约1/3范围,其余大部分筒体被拆除,为80个画廊提供约6000m2的展示空间。当然,周围的筒仓都被保留了半个。

▲Zeitz MOCAA二层平面
建筑师研究了中庭空间不同的几何形状,发现通过水平或垂直切割很平淡。当尝试用一定弧度切割整个空间时,他们创造出更具戏剧性的细长椭圆。

▲改造概念
为了与谷仓的历史呼应,建筑师扫描了一粒玉米并将其放大成27m高的“超级玉米粒”。测绘工程师定义了成千上万个坐标,精确定位每一个节点,确保玉米粒被准确地放大了。小i觉得玉米粒应该是上辈子拯救了宇宙。

42个筒体均为33m高,直径5.5m,相切排列。混凝土壁厚只有170mm,而且原来的筒体以承受水平推力为主。中庭将四个筒体下部完全切除、多个筒体中间一大部分被削去。如何保证保留筒体的传力体系?

▲不同区域结构改造情况
由上图可见,加固的结构体系比较复杂。非筒体保留部分的混凝土基本上拆除,新建混凝土结构。钢结构基本保留,在东侧屋顶增加了一个两层的钢框架。
对于筒体保留部分,工程师的解决方案是以原有混凝土筒壁为模板,在内侧浇筑250mm厚的钢筋混凝土衬筒。新加衬筒比原混凝土筒升得,并在顶部用混凝土板连成整体。

▲衬筒与原有混凝土筒的关系
而新浇混凝土与原混凝土通过抗剪钢筋连接,原来的筒体相当于被挂在了衬筒外侧。竖向和水平力的传递均可以通过新浇筑的混凝土衬筒来完成。

▲衬筒与原有筒体的关系
衬筒同时还是切割原有筒体的模板。钢筋混凝土衬筒浇筑完成后,才开展原有筒体的精细切割工作,最后这部分切割工作是由人来完成的。切割面进行了抛光处理,与其他混凝土表面形成鲜明对比。

▲筒体切割示意图
中庭每一个筒的顶部均按装了直径为6米的玻璃,从而为中庭带来自然光照。

▲中庭仰视
MOCAA的玻璃窗很有特色。灵感来自佛罗伦萨的玻璃吹制工,建筑师设想窗户玻璃是被吹制出来的形态。玻璃板向外枕,就好像从建筑物内部轻轻地膨胀,并“穿过”立面的现有网格。晚上,这些窗户会像灯笼一样轻轻地发光,吸引人们前往博物馆和海滨。

2017年9月22日,博物馆正式对外开放。是Archdaily2018年度网选最佳改造项目的第一名。


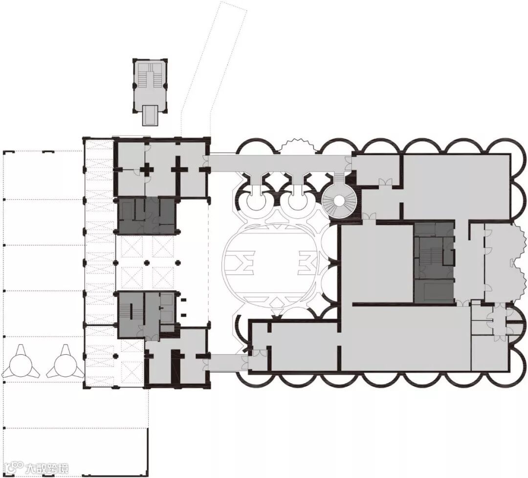
民生码头八万吨筒仓改造一期
八万吨筒仓是民生码头的散粮筒仓。始建于1991年,1995年建成并投入使用。之后由于储粮方式的革命性改变,筒仓仅仅在10年后的2005年便停止生产,完成了它们作为仓储建筑的历史使命。
2017年一期改造完成后,作为上海城市空间艺术季临时主场馆。展览结束后封闭进行二期改造。

▲一期改造示意图

▲二期改造示意图
一期改造主要使用筒仓建筑的底层和顶层,由于筒仓建筑高达48米,要将底层和最顶层的空间整合为同时使用的展览空间,必须组织好顺畅的展览流线,同时也要处理好必要的消防疏散等设施。

本次展览流线组织的最重要的一个改造动作是通过外挂一组自动扶梯,将三层的人流直接引至顶层展厅。这样人们在参展的同时也能欣赏到北侧黄浦江以及整个民生码头的壮丽景观,除了悬浮在筒仓外的外挂扶梯,筒仓本身几乎不做任何改动,极大地保留了筒仓的原本风貌,同时我们又能看到重新利用所注入的新能量。


首钢西十筒仓改造
首都钢铁厂西十筒仓区域承载着整个首钢的历史起源,首钢前身为始建于1919 年的龙烟铁矿股份公司石景山炼铁厂,最早将该区域选为矿石料场,作为从龙关和烟筒山运输铁矿石的卸料场,当时龙烟公司运输系统的火车编组为西十线,后称西十料场、西十筒仓。

▲首钢原厂房
20 世纪90 年代随着钢铁产业的蓬勃发展,筒仓区作为主要为炼铁高炉提供原料储存、运输的仓储区进行了大规模的改扩建工程,形成目前尺度巨大、规模完整的大型炼铁原料仓储区域。

▲首钢西十筒仓效果图
2016年,北京市政府确定2022年冬奥会办公园区选址落户首钢西十筒仓区域。

▲首钢西十筒仓实景照片
效果图中,筒体开的是圆形窗,实际开的是方形窗。实际施工中,的确是方形的比圆形要便于施工很多。但小i个人觉得还是圆形的比较好看。而且筒仓外面的涂装也没有效果图中的金属锈蚀的感觉。
因为改造的目标是办公,所以,筒仓就需要进行加层。由于原有的筒仓实际上是一堵环形的从上到下逐渐加厚的钢筋混凝土剪力墙,筒壁的厚度随着筒内原料应力的增大从400mm 增加至600mm。

▲筒仓加层示意
新植入的结构体系是否应该与原结构产生联系并共同作用一直是工程师讨论的问题。最终选择了将新建的钢结构框架体系与原有的筒壁合理有效地连接成一个整体共同作用,成为一种新的钢框架- 钢筋混凝土筒体剪力墙结构。

▲保留料斗区域
在连接处的原筒壁内侧加设250 ×400 钢筋混凝土壁柱,壁柱与原筒壁植筋拉结,壁柱上预留埋件与钢梁铰接,各壁柱间沿筒壁内侧设钢筋混凝土环梁(250 ×600),楼板沿筒壁内侧周圈通过钢筋混凝土环梁与筒壁植筋连接,从而保证了新旧结构的连接。

比利时 Kanaal 工业筒仓改造

这个项目将旧麦芽厂筒仓改造成了公寓。共有八个筒仓,其中六个筒仓被保存下来,通过开小窗洞采光,另外两个是新建结构。
住宅单元的一部分是三个圆平面的围合空间(现存的筒仓建筑),另一部分是方平面的开放空间(新建的筒仓建筑)。

方空间的开放性——这里是起居室——弥补了混凝土筒仓实体的封闭性。这种增强现存筒仓建筑开放性的手法,既成为贯穿建筑结构的设计逻辑,也为公寓的独特远景提供视野平台。

芬兰仓筒公寓
这个项目其实只将筒仓保留了一下部分,作为公寓的阳台。



小结
随着城市的发展,大拆大建的时代正离我们远去,城市更新的时代正向我们走来。希望以后能够做一些有意思的,工业遗迹的适应性改造。
END

PKPM绿色建筑
|构筑未来 力创卓越|
关注我们▼

长按二维码

