▲ 点击上方蓝字,关注PKPM构力科技

项目地址:北京市延庆区
项目类型:住宅建筑
项目背景:根据2017年3月颁布的【2017】8号《关于加快发展本市装配式建筑的实施意见》及《北京市发展装配式建筑2018-2019年工作要点》(京装配联办发〔2019〕1号)中的相关规定设计建设
项目介绍:本项目包括39栋单体实施装配式建造的总面积为180918.87平方米,单体建筑最高10层,共计1820户
结构体系:装配整体式剪力墙结构
设计目标:预制率大于40%且装配率大于50%,高品质装配化建造
预制构件:预制外墙板、预制内墙板、预制叠合板、预制空调板、预制楼梯
作者简介
李晓琳、姜佳恒、李艳涛、郭璨、贾慧婕(天津天友)
项目应用
01 建筑设计
1.1 平面标准化
本项目平面设计采用左右对称的一梯两户,南北向主要为卧室、起居室、餐厅开间执行1M,楼梯执行模数协调原则,楼梯间梯段采用预制构件。平面布局如下图1。
图1 项目平面布局
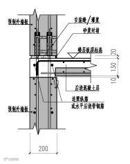
1.2 立面标准化
外墙采用预制混凝土外墙板与现浇相结合的体系,局部填充部分采用200厚B05级蒸压加气混凝土条板墙。
图2 围护体系节点示意
02 结构及构件设计
2.1 结构概况
在正常使用条件下,本项目建筑结构设计使用年限为50年;
①基本风压值为0.45kN/m2 ,地面粗糙度B类,风荷载体型系数、风压高度变化系数及高度Z处的风振系数均按《建筑结构荷载规范》GB50009—2012选用。
②基本雪压为0.40KN/m2。
③地震作用
根据《抗规》附录A,拟建工程的所在地抗震设防烈度为8度,设计基本地震加速度值为0.20g,设计地震分组为第二组, 设计特征周期为0.40s;建筑结构阻尼比为0.05,多遇地震水平地震影响系数为0.16。
本工程住宅结构形式为抗震墙结构,房屋高度≤24米的住宅抗震等级为三级,房屋高度>24米的住宅抗震等级为二级。
2.2 装配式技术方案:
(1)装配式剪力墙技术方案
本工程外墙板采用不带外叶的墙板型式。内外墙板水平板缝采用套筒连接——预制墙板顶部受力钢筋外露,墙底预留套筒,墙板安装完毕后灌注高强无收缩灌浆料填实,将预制墙板竖向预留钢筋与预埋套筒和结构缝隙连接成一个整体,设计中对剪力墙水平接缝进行受剪承载力验算。屋顶层预制剪力墙顶部设置封闭混凝土后浇圈梁,增强结构整体性。墙体水平后浇带及模型深化节点如下图3、图4所示。剪力墙体竖向接缝参照图集构造,如下图5-7。
图3 墙体水平后浇带
图4 现浇暗柱钢筋节点
图5
翼墙处竖向接缝构造
图6
预制墙间竖向接缝构造
图7
转角墙处竖向接缝构造
(2)预制叠合板技术方案
本项目除前室等公共区域以及户内不适合预制的部分,其它部分均采用预制混凝土叠合楼板。叠合楼板由下部预制混凝土底板和上部叠合层组成,预制板厚度最薄为60mm,现浇层厚度最小为70mm;预制板表面做成凹凸差不小于4mm的粗糙面、内设置桁架钢筋,以增加预制板的整体刚度和水平界面抗剪性能。叠合板主要连接节点如下图8所示。
图8 叠合板端支座及拼缝连接节点
(3)预制楼梯及空调板技术方案
本项目中水平构件除叠合板外,楼梯与空调板也采用预制,楼梯采用一端固定一端滑动,均采用构造做法,连接节点如下图9-10所示。空调板采用全预制式,锚固端伸入支座,并满足锚固要求。
图9 双跑楼梯固定端连接
图10 双跑楼梯滑动端连接
03 机电装修一体化
3.1 机电一体化设计
在本项目设计过程中,机电设备相关管线做到精装修深度,预制构件在工厂生产时可提供预留预埋的精度,以保证管线预埋的合理性和准确性。在工厂中,预制混凝土外墙板准确预埋电气专业线管、线盒,预制叠合楼板中准确预埋灯具线盒及开关预留孔洞,公共区域管线和传统现浇方式一致。给排水专业在各层楼板上均已预留孔洞,避免了后期对预制楼板的剔凿。各专业预埋如下图11所示。
图11 各专业预埋现场施工
3.2装修设计
整个项目采用多项装配式装修技术,包括集成吊顶系统、干式工法地面等,同时选择市场上优秀的部品部件,提高了施工质量和住宅品质。通过合理统筹空间布局、功能和设备安装,在后面的施工过程中,实现对楼栋的结构施工、设备设施安装调试和装饰装修三个环节的一体化把控。
04 BIM设计技术应用
本项目采用PKPM-PC进行构件深化设计,从前期设计到后期深化,均依托于BIM平台,实现高效的信息查看及综合管理,对产业化的项目产生深远的影响,可以有效的提高产业化项目的经济性及准确性。建筑单体通过采用BIM模型进行深化,可配合解决装配式构件的碰撞问题,并提高了数据统筹工作的效率,极大的简化了设计工作,促进了构件的标准化设计。本项目BIM模型如下图12,构件拆分情况如下图13。
图12 BIM深化模型
图13 构件拆分方案
05 装配式方案指标分析
该项目单体预制率计算汇总表如下表1,单体预制率达42.39%,满足北京市【2017】8号《关于加快发展本市装配式建筑的实施意见》文件的规定。
表1 单体预制率汇总表
本项目外墙非承重部分选用B05级蒸压加气混凝土条板及砌块(局部)。内隔墙部分,核心筒内楼电梯围合墙体、内嵌设备处墙体以及部分不适合采用条板墙施工的位置,选用砌筑墙体;其余部分均采用B05级蒸压加气轻质混凝土条板墙。依据《北京市发展装配式建筑2018-2019年工作要点》(京装配联办发〔2019〕1号)中装配式建筑装配率评分表进行判定,装配率54%满足相应要求。
表2 单体装配率率汇总表
装配式施工方案
本工程为群体工程,楼栋多,大约每两栋楼要配置一台塔吊,场地狭小,群塔的施工管理难度大。
项目内多层单体水平构件从首层顶板开始预制,应用叠合板、预制空调板和预制楼梯,竖向构件从首层开始预制,采用装配整体式剪力墙结构,应用有预制外墙板、预制内墙板。高层单体水平构件同样从首层顶板开始预制,竖向构件从加强区以上开始预制。
场内运输道路计划设置大于4米宽,运输车辆单向行驶出入,根据塔吊分组情况设置各自的构件堆放区,尽量避开地库范围,充分利用推线外的区域设置施工加工场地及构件堆放场地。
本工程PC构件预计最大单件重量约5.33t。项目考虑选取的最大的塔吊型号为TC6024,后期根据具体施工分期及实际状况,对塔吊选型可做调整。
项目总结
项目采用叠合板、预制楼梯、预制空调板等水平构件与剪力墙相结合的方法,满足北京市独特的装配率与预制率共同约束的算法,积极响应了国家大力推进装配式建筑的号召,项目所采用的各类做法手段较为成熟,具有一定的可参考价值。
项目信息
设计单位:天友建筑设计股份有限公司

