转载来源:能源世界
版权归原作者所有,如有侵权请联系后台
北方大数据交易中心坐落于中新天津生态城,总建筑面积29200平方米,建筑主体为地上八层、地下二层,集智慧城市运营中心、大数据交易平台及数字研究基地等功能于一体。本项目是第二阶段信息产业布局的核心环节。本案围绕北方大数据交易展开相关办公、展示、企业孵化等功能,即将成为片区产业升级的新引擎。
该项目是中国北方首座单体面积超2万平方米的超低能耗建筑。项目充分利用区域地热资源,依托地源热泵系统实现冬季供暖与夏季制冷,相比传统空调节能30%以上;屋面铺设的350块光伏组件,年发电量可达40万千瓦时,持续为建筑供应清洁电力;幕墙的角度设计在优化室内视野的同时,进一步增强了建筑蓄热性能,有效降低运行能耗。
项目沿街透视
方案以退台形式回应城市景观资源
主入口灰空间及前厅
项目鸟瞰
生态城信息产业园在设立之初就以“科技、生态”为规划与设计的核心理念:北数在新时代提出了更高的目标,即“北方2万平米级超低能耗建筑”;其与一期工程信息大厦并肩而立,南北均为大型城市公园,东侧临海,生态环境与景观资源极为优渥。
为此,设计团队提出了“都市之芯”的设计概念,希望在建筑中延续科技基因,将建筑与环境有机结合,打造信息产业园智能核心。
01 规划理念:城市中的“芯”
北数用地位于信息产业园的南侧展示面,是呈现给城市主要交通来向的第一面。设计团队用一颗“芯片”式的回字形体量呈现中正大气的城市界面。对于南北两侧的城市公园则利用近人尺度的观景平台链接景观资源。对于东侧形体,“芯片”形体以Z字形切割,拉开,形成逐级平台,把人的视野拉高,观赏东南侧的海景。
形体生成
鸟瞰图
02 立面理念:科技感“芯”形象
作为信息产业的第二阶段项目,北数面临延续一期形象基因并构建新形象的任务。一期信息大厦的石材竖向肌理作为产业园的显著特征被新项目继承。除此以外,建筑表皮运用新材料,以金属板片秩序化立面肌理,配合灯光设计,使得建筑在夜幕中犹如精密仪器,成为发光的“芯片块”。
竖向肌理
竖向肌理透视效果图
03 生态理念:生态“芯”标准
作为北方首座单体面积超2万平方米的超低能耗建筑,设计需要在被动设计与主动设计中共同发力以达到目标。在本项目设计流程中,系统的提出了正向设计思维,在“体块比选”“空间植入”“性能提升”中使用量化工具,辅助设计做出更好的决策。
在北方,建筑的形体系数很大程度影响建筑的性能。形体系数越小,建筑物能耗越低,更有利于节能,然而形体系数更小的形体,通透性与采光性能越差。在设计初期罗列若干适应场地的形体,以形体系数与自然采光系数作为评价标准,综合评判下选取“回字形”作为基本形体。
多种体块对比形体系数与自然采光系数
空间植入
建筑首二层为大数据展示空间,为市民开放使用,因此将基座部分全部围合,形成3层通高的中庭空间。对于较深的内部中庭,与之相对的设计南侧入口竖向腔体,进而构成U型通风体系,改善内部空间舒适度。
两个中庭形成 通风连通器
南厅为主要出入口与中庭连接
性能提升
达到超低能耗建筑对外墙的传热系数有一定要求,传热系数越低,性能越好,材料价格也随之升高。最初形体以全玻璃表皮反算维护结构,外墙与玻璃窗的传热性能要求过高,远在造价限额之上。实体墙体增加可以有效的降低外墙材料传热系数,进一步压低材料成本,所以设计团队提出三角形幕墙单元的构想:以“实面-玻璃”相互交替的模式,增加实墙比例,随之降低外墙成本。
三角幕墙可以降低维护结构要求,降低材料成本
三角幕墙的分布
30度角幕墙让建筑在景观面呈现通透玻璃盒子的视觉效果
幕墙实面阴角处设置通风器
幕墙节点设计
主动式技术
除了被动式手法外,项目使用多种主动式措施,如新风回收通风系统,雨水收集,光伏板,空气源热泵与地源热泵系统。
主动式技术措施
04 空间理念:室内空间设计
大数据中心底层为向市民开放的展示活动功能。方案结合项目定位,设计了首二层联动的回字形动线。室内方案与建筑概念呼应,在竖向线条的基础上增加暖棕色石材、液态金属板以增加室内空间的亲切度。
室内游览动线
大数据交易中心
共享中庭
智慧城市指挥中心
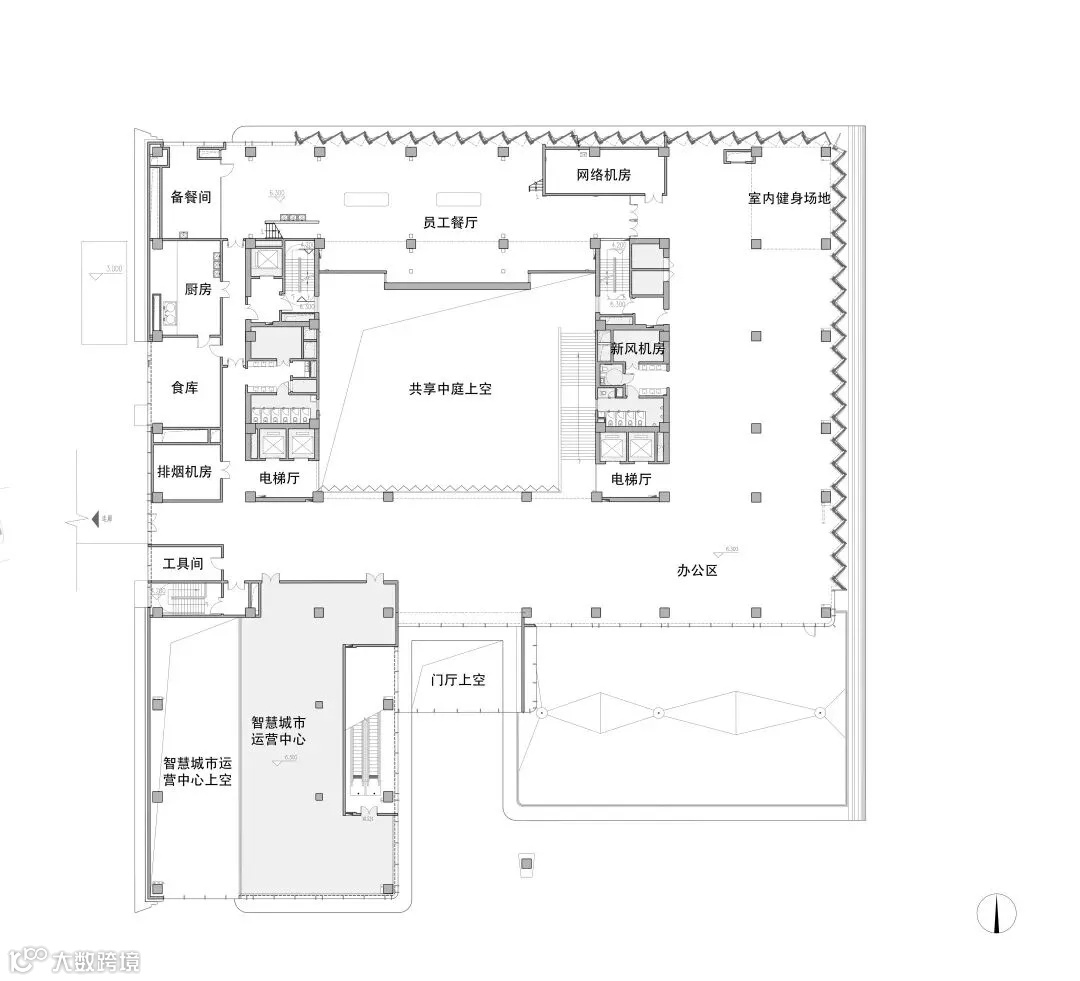
一层平面图
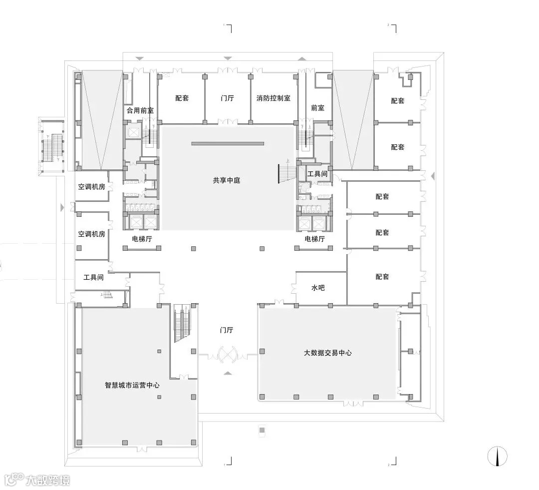
二层平面图
标准层平面图
往期推荐:
行业资讯|遂宁市住房和城乡建设局关于印发《遂宁市好房子设计导则(试行)》的通知

