▲ 点击上方蓝字,关注PKPM绿色建筑!
本文转自:一起设计 ID:together-design

波尔多住宅
Maison Bordeaux
杰出的建筑师一定懂得关心人类和城市的关系,雷姆·库哈斯就是这样一位建筑大师。

Rem Koolhaas
2000年普利兹克奖得主
他在2004年设计了CCTV央视大楼之后,才广为国人熟知。如今由他设计的建筑已遍布全球。

▲北京CCTV大楼
今天我要跟你说起的,是他设计的一座老房子。也是为数不多的几座私宅设计之一。
这栋造型非常前卫的房子建于1994年,它曾是雷姆·库哈斯早期最重要的现代建筑作品之一,凭此拿到了 1998 年 New York Times 的最佳住宅。

△波尔多住宅由 Rem Koolhaas 及其 OMA 团队于 1994 年设计,1998 年竣工
这座占地 500㎡ 的大宅1994年动工,整整花了4年才建好,房子有三层,盖在波尔多郊外的小山顶上,能够俯瞰整个波尔多市。

这座房子的主人,原本和妻子孩子一起住在波尔多市区的豪宅里。有一天,他们想在城外盖一所新房子,就买下了距离市区5公里外的这片土地。

刚开始计划建造这栋房子时,也曾想过要找筱原一男、伊东丰雄等建筑大师。
谁也没想到,这位屋主突然遭遇了一起严重车祸,虽然死里逃生,医生却告诉他:
你的余生都得在轮椅上渡过了。

两年后,他和妻子又把房子的事提上日程。整天坐着轮椅的他,如今在老宅里有诸多不便,就和这座古老的城市一样,只会令他感到喘不过气。
我想要一个复杂点的房子,就像我的人生,越复杂越好...
于是他找来库哈斯为房子做设计,只强调了这两点要求:
第一,我有很多很多书,在家里看书放书一定要方便;
第二,别让轮椅阻碍我的自由。
库哈斯没有刻意去关注轮椅的移动问题,最核心的设计概念以最自然的方式诞生了。

将地形条件和房主的生活习惯融入设计中,简单、直接,甚至连轮椅本身都是设计的一部分,是房主日常起居中充满活力的活动空间。

01.
设计概念
Concept
库哈斯提出了一种全新的房屋概念,或者说是三间叠在一起的房子,它在山坡顶上犹如一堆积木,显得分外醒目。

积木的每一层都是形状、大小不同的四方形「盒子」,最底层还有一块空地被围成了花园。
“建筑主体是一个悬空盒子,最上方装着卧室。下方是客厅,四边围着玻璃墙。”
02.
空间
Space
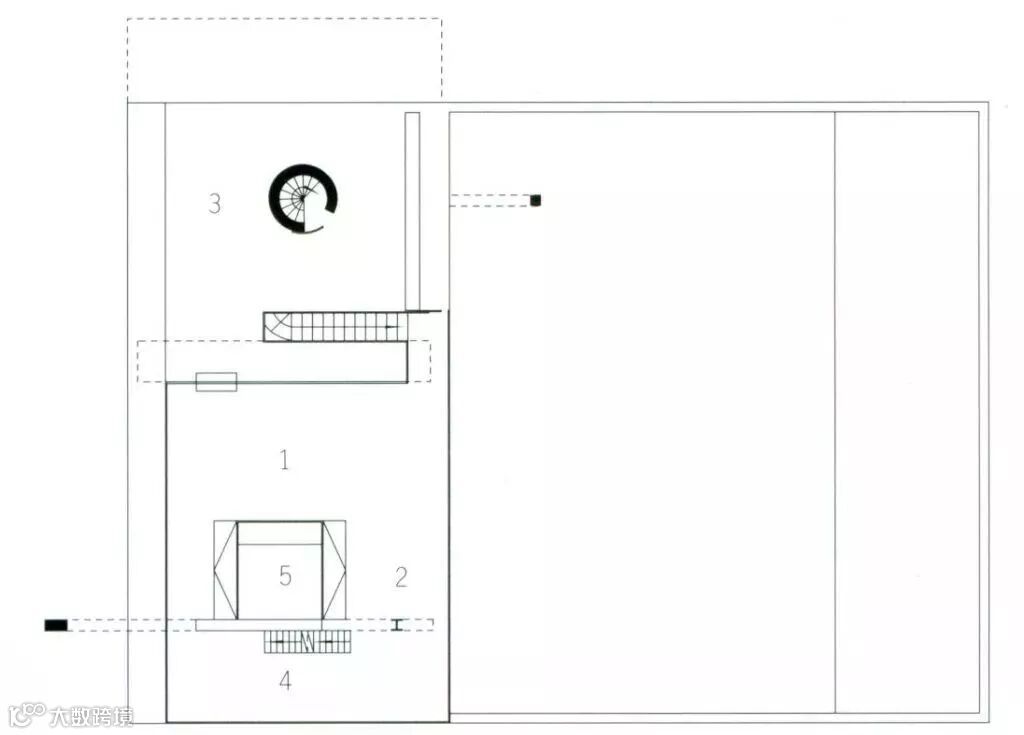
底层的空间设计非常有趣:利用山体坡度,像山洞一样,挖出了一个个房间,有洗衣房、酒窖、储藏室等。有的房间是曲面结构,并不全是矩形。

向外的一面玻璃墙自然采光,其他三面被厚厚的实体墙封闭,形成半开放的「地下室」。

▲一层平面

▲这条路车可以开进内院
中间这一层的结构最有特点:
和其他两层相比,中层更像个透明玻璃盒,它的面积只有底层的2/3,让混凝土结构的顶层像盒子一般悬浮在山顶,仅仅由4根钢柱和四面玻璃墙支撑,承重够吗?肯定不够,后面还会细说。
这一层除了客厅,还有餐厅,露台,书房和电动升降平台。


▲二层平面
前面有提到,房主很爱看书,他的藏书多到够开个小型图书馆,怎么才能让坐轮椅的人能轻松拿到书架上的书呢?
库哈斯会把「没有障碍」作为解决问题的关键点。

如果我们寻找不到出路,为什么我们还要有思想?
——陀思妥耶夫斯基
但库哈斯却将房主「坐轮椅」这一状态变成设计中最重要的启发点:在房屋中央做了一个3.5x3m的电动升降平台。

这部升降平台,能让房主安稳地坐在轮椅里,连同他的书桌一起,自由的在地窖、厨房和楼上的卧室之间穿梭。

虽然他的书真的多到摆满了三层楼高的书架,电梯也可以随意升降高度取书。

这不仅仅是一个升降台,还是房主的活动书房和工作间。是一间没有墙壁的房间。

▼这段视频能让你明白我在说什么:
▲视频拍摄于2008年,描述了女管家在房中的日常
第三层并没有严谨的划分房间,只是简单的用隔断墙和帘子分割成为主人房和儿童房,都带有单独的浴室,简单的设置了厨房和用餐区。

这一层外墙是混凝土结构,其中两侧开了不规则的圆形小窗洞,既保持了私密性,又能有充足采光。


▲三层平面

▲立面图
这些用作窗户的“圆洞”高低不一,设计的十分有趣:一种是人站立的高度,第二种是对应坐姿、轮椅的高度;第三种,则是躺在床上的高度。

▲三层圆洞的位置同时又能成为引导光源的动线,形成环绕屋子的动态全景视野

▲圆形的窗户由透明的玻璃盖子开合方式
室內陈设仍然是现代简洁风格。小而多的圆形窗洞、书架旁的超现实绘画和古朴的座椅等种种设计,都强化了房子的设计调性。


▲圆形的转动窗由手摇式的把手转动开启

卧室窗帘用遮光布来遮挡不规则的窗洞,好像一块块有趣的「补丁」。而从另一个角度看,窗帘又成了一面有设计感的床头背景墙。

天花板布满玻璃拉门的导轨,全屋窗帘使用新奇的材质,为整个空间提供出色的光影解决方案▼

这一层带有反光涂层的窗帘保温和隔热性也很棒。

整个房子有两部楼梯,孩子从独立的螺旋楼梯可从一楼到达顶楼儿童房,一二层之间也有楼梯连接,这样做是为了保证父母和子女之间的独立性(独立的成长空间很重要)。

▲垂直结构示意图

▲一二层之间的楼梯连接了客厅和储藏室
03.
结构
Structure
在经过反复的推敲、思考之后,房子的整体设计概念才浮出水面。
下图展示了房子的三块主要结构:红色部分为两个钢构,顶层的混凝土墙是悬空的。

中层并不是完全封闭的,侧面和山坡相连,向内凹进去一块形成露台。

一根很粗的金属立柱贯穿底层和顶层的楼板,支撑着房顶的横梁。

▲旋转楼梯就藏在这扇金属滑动门里
房子的门窗设计也是别具一格:只在底层「地下室」的入口装了金属滑动门。

还记得开头说过的承重问题么,中层除了玻璃之外没有实体墙,支撑不了上层混凝土「盒子」的巨大重量。
设计师另辟蹊径,在地底埋设配重,通过钢索牵拉楼顶的横梁,利用杠杆原理,支撑起 U 形混凝土墙体。

后现代的外表和简洁的室内陈设有着巨大的反差,没有墙壁的阻隔,室内灯光成了夜晚最独特的夜景。

04.
库哈斯的哲学
库哈斯不论面对怎样的项目类型,大到摩天大楼,小到私人住宅,都会提出一个突破性的构想,重新定义使用者和建筑间的「关系」。

在成为建筑师之前,库哈斯曾经是一名记者。忠实地记录证据、事实,探求建筑和人类之间的关系。

波尔多的这所老房子反应出超现实主义对库哈斯的影响。是库哈斯为坐在轮椅上的男主人设计的「理想屋」。

他让房主的轮椅成为设计的核心点,让结构服务于功能。让这座避世的房子陪伴着房主,静静在远处眺望着美丽的波尔多。
时间流逝 经典永恒
图片来源:oma官网
撰文:Lilith

PKPM绿色建筑
|构筑未来 力创卓越|
关注我们▼

长按二维码


