导读:纳尔逊机场航站楼是一个新的大跨度木结构建筑,俯瞰跑道,与塔斯曼湾和新西兰纳尔逊西部山脉令人惊叹的背景。由于现有的1975年的建筑已经不能满足建筑规范的要求,也不能有效地运作,因此对新航站楼的需求就产生了。



设计的目的是让机场高效运作,既作为一个交通枢纽,又作为一个安全可行的企业,同时也体现了纳尔逊的独特性,与建筑内景观的联系,以及对当地材料的广泛使用。
选择了两项主要战略来实现环境可持续设计的期望;自然通风和大量木结构的使用,加上弹性抗震结构解决方案。


这些举措的运用使纳尔逊机场脱颖而出,并为机场候机楼的可持续运营开创了先例。建筑采用简单而复杂的方法来实现主终端空间的自然通风。
建筑的平面、高度和屋顶形式的设计是为了最大化空气流动,并利用空气的浮力,当加热上升到高层开口时。低水平的窗户将空气引入建筑,精心铰接的屋顶从建筑中心裂开,创造了天窗,最大化日光,并允许热空气通过玻璃百叶窗释放。

沿着北立面,雪佛兰形的外部檐篷具有多重好处;它们充当大房间,排出从下面的太阳能烟囱吸入的暖空气,同时也为室内提供遮阳,减少北立面的玻璃范围。
与简单的平面和立面相比,屋顶高度复杂,视觉上引人注目;参考周围的山脉,以一种恒定的、有节奏的模式横跨建筑的长度。在内部,形成屋顶的木材结构以自然的温暖、纹理和尺度最为迷人,令人流连。


木材作为结构和形式的使用是设计目标不可分割的一部分——对简洁的真实和触觉的回应,这加强了材料及其与周围森林的联系和相关性,它的来源。
重复的建筑模块实现了一个大的开放空间,允许用最小的柱子进行灵活的内部规划,内部的“豆荚”漂浮在屋顶下,满足住宅的运营需求,零售和食品和饮料供应。

材料的调色板很简单,为了突出结构和为内部的混合空间创造一个平静的背景。作为进入纳尔逊地区的主要入口点之一,建筑以其形式和物质性表达了这个地方的本质。通过这种方式,航站楼建筑是独特的,并通过它的地域性区别于世界上同类机场。

区位图

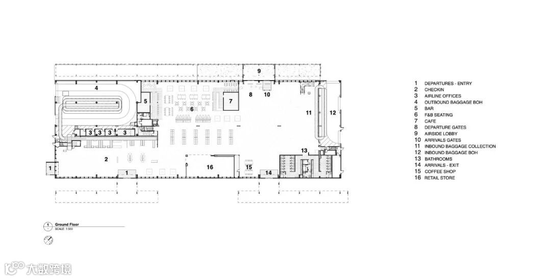
地面平面图

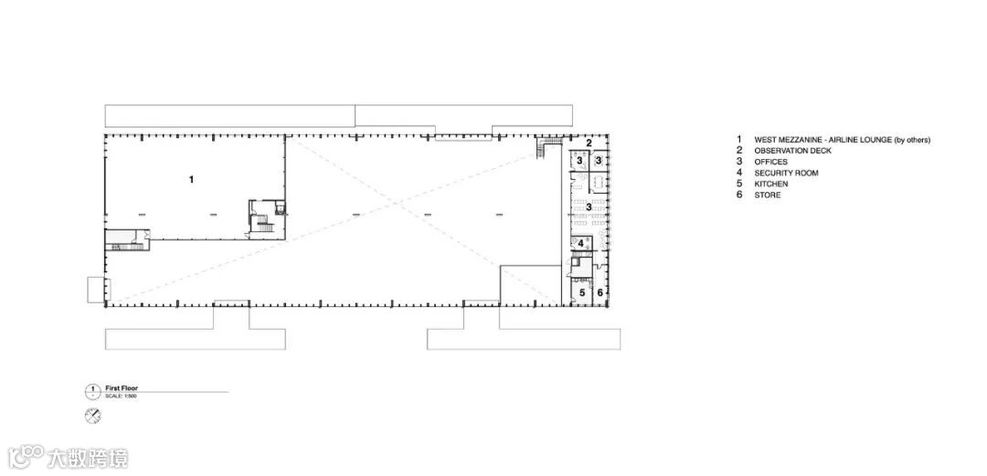
1层平面图

屋顶平面图

剖面图

建筑师:太平洋建筑工作室(Studio Pacific Architecture)
地点:新西兰
面积:5300 m²
年份:2019
来源于:能源世界,如有侵权请联系后台处理;


