邯郸市综合体育馆附馆项目位于河北省邯郸市,占地面积3413.84㎡,总建筑面积15938.68㎡,是邯郸市第一个超低能耗体育建筑,也是中建五局首个通过设计评审的超低能耗体育建筑。
项目采用优化建筑布局、高性能围护结构、高性能门窗等被动式设计技术,以及高效空调照明系统、高效新风热回收技术、可再生能源利用等主动式设计技术。这一系列设计技术的应用大幅提升了建筑节能水平,满足被动式超低能耗建筑要求。
其室内环境参数和能效指标符合《被动式超低能耗公共建筑节能设计标准》DB13(J)/T8360-2020规定,建筑能耗水平(包含供暖、供冷和照明能耗)在河北省《公共建筑节能设计标准》DB13(J) 81-2016的基础上降低50%及以上。
01 优化建筑布局

通风环境模拟
优化建筑布局,合理布局能够使建筑与自然的联系更加紧密。通过软件模拟,优化建筑布局,增加过渡季通风,减少冬季寒风,让自然风环境更好;优化功能布局,更多利用自然光,节约照明能耗。
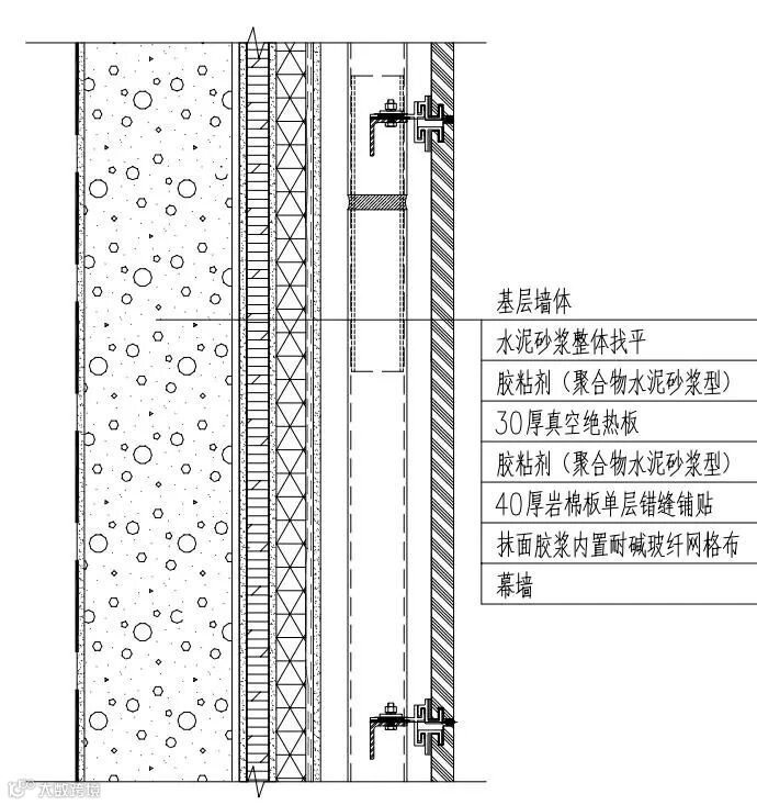
02 高性能维护结构

围护结构大样
高性能围护结构,平衡效果、成本、施工便利性和耐久性等要求,外墙采用自保温加气块和岩棉板,局部采用真空绝热板;屋顶采用高密度石墨聚苯板和真空保温板,采用聚氨酯发泡胶粘接;架空楼板采用挤塑聚苯板和真空绝热板。
03 高性能门窗

高性能门窗
高性能门窗,合理选定玻璃g值,平衡采光以及冬夏季得热的影响,通过不同被动式门窗产品的比选,门窗选用三玻两腔充氩气双Low-E窗,满足被动式超低能耗要求。
04 高效空调照明系统

高效能空调照明系统
高效空调照明系统,选用较高的制冷综合性能系数或机组能源效率等级指标的空调设备。照明设计采用高光效LED光源、在满足眩光限制的条件下,优先选用直射式照明灯具,室内灯具效率不低于75%,场馆内采用可调光智能照明控制系统。
05 高性能新风热回收技术

高效能新风热回收技术
高效新风热回收技术,采用新风全热回收吊顶式机组,机组内设热回收芯组,无冷热源。具有新风冷热回收、新风过滤等功能。新风热回收装置性能全热交换效率不低于70%。
06 可再生能源利用

太阳能热水和空气源热泵
可再生能源利用,根据本项目体育类建筑人员运动后有淋浴需求,采用太阳能和空气源热泵组合的热水系统,设计小时热水量满足使用需求。
项目建成后预计每年能节省运营费用约63万,按设计使用年限50年算,建筑全生命期节省运营费达2394万,能极大节约建设单位的运营成本。项目二氧化碳排放量每年减少456.16吨,建筑全寿命期二氧化碳排放量减少22807.90吨,极大减少建筑运营过程中的二氧化碳的排放。
今年3月,住房和城乡建设部印发《“十四五”建筑节能与绿色建筑发展规划》提出,到2025年,建设超低能耗、近零能耗建筑0.5亿平方米以上。
不断提高建筑绿色低碳发展质量,降低建筑能源资源消耗,中建五局建筑设计院将持续深入研究被动式超低能耗建筑、近零能耗建筑及零碳建筑,提高绿色设计和咨询水平,发挥央企担当,为“双碳目标”贡献智慧。
来源于:绿圈,如有侵权请联系后台处理;


