
一辆行驶里程约4.2万km、配置274发动机、722.5九速变速器的奔驰GLC300。客户反映:该车行驶中仪表显示变速器温度高,请去授权服务中心,显示红色字体。
故障诊断:接车后,验证客户所述的故障现象,测试一切正常,仪表未报警,变速器换挡加速正常。连接诊断仪读取有如下相关故障码,如图1、图2所示。

结合故障现象可以得出一些结论就是,这是一个关于变速器散热系统的故障。诊断故障前,必须先搞清楚它的功能原理,这样才能有的放矢。
接下来我们就了解一下这款变速器,GLC300配备的是奔驰最新一代的九速变速器,配备有9个前进挡,1个倒挡。对发动机功率的运用十分的高效,在燃油经济性和动力提升方面有卓越的表现。九速变速器的散热功能原理图如图3、图4所示。


图3中的Y3/8S2就是变速器温度传感器,用它来探测变速器的温度。
图4就是变速器的冷却循环结构图,它由变速器散热油管、节温器、变速器油热交换器以及变速器散热冷却管路组成。
供至变速器油热交换器的变速器油流量由变速器油节温器调节。变速器油节温器用螺栓固定在变速器油热交换器上,并根据当前变速器油温度打开或关闭,变速器油温度低于70℃时,变速器油节温器引导自动变速器油通过回流方式完全流回变速器,达到快速加热变速器油的目的。当变速器油温超过90℃时,节温器全开,变速器油流过变速器散热器。在变速器油温70~90℃之间节温器半开。
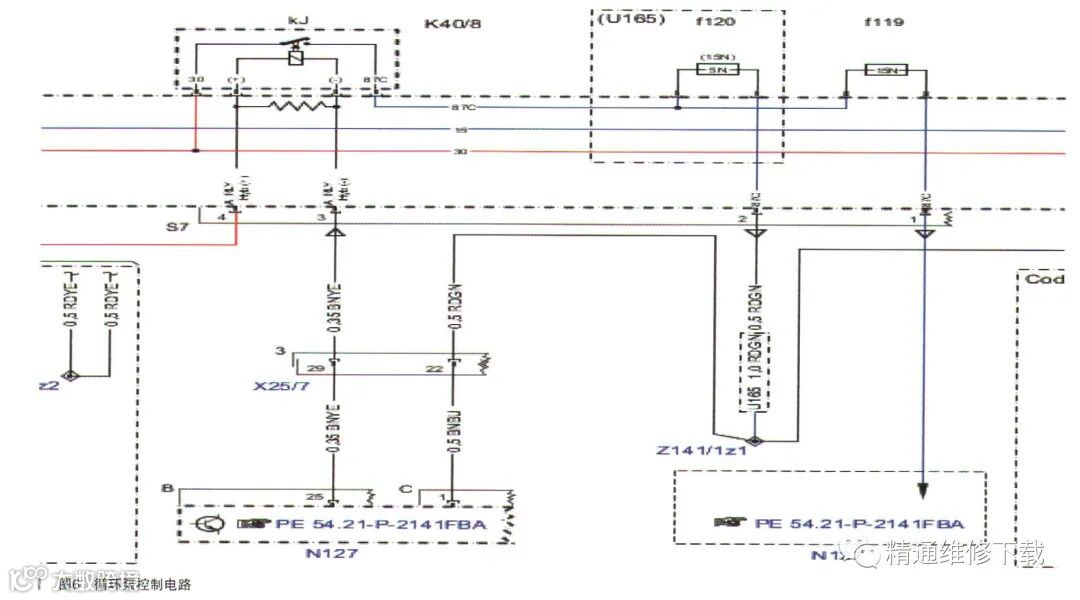
图4中的冷却液是用来专门冷却变速器油的,它有一个专用的冷却液循环泵,这个循环泵由动力控制单元控制,有一个循环泵继电器,还有一个温度传感器来探测冷却液的温度。它的电路图如图5所示。

M43/6就是变速器冷却液的循环泵。从电路图可以得出它是由N127控制的,它的供电由K40/8供电。
接下来我们再分析故障码,控制单元N127和变速器控制单元都报了相关的故障码,进一步分析故障码可以得出,它们之间是有因果关系的。由于N127中循环泵故障导致变速器控制单元报油温传感器故障,所以只要解决了N127中循环泵的故障,那么变速器油温高的故障就解决了。
测量M43/6的供电,电压为0V。进一步查找循环泵的电路图如图6所示。

查阅电路图发现,循环泵是受KJ继电器控制的,而习继电器是受N127控制的,而这个KJ继电器是集成在K40/8中的,所以这个继电器不是很好测量。而这个继电器盒是很好拆装的,果断对调K40/8继电器盒,测试功能,一切正常。更换K40/8继电器盒后故障排除。

故障总结:从这个故障里面总结出两点。第一,诊断故障前对相关系统的功能原理弄清楚是非常重要的;第二,分析故障码之间存在的关系对诊断大有裨益。图文来自互联网原者可联系删除
图文内容仅供参考学习交流,欢迎转发,欢迎指正错误内容。
特别鸣谢广州东方酷科汽配(星际丰)商行提供文章内容,欢迎添加服务微信:mmggppqq


