为了解决预制方桩用于深基坑工程混凝土内支撑体系竖向承重构件所存在的问题,以盐城某基坑工程实例为背景,介绍了预制方桩与混凝土内支撑结构采用抗剪构件的连接方法,在结构基础底板位置采用刚性止水结合柔性止水的双重防水措施,并对用作混凝土内支撑竖向构件的预制方桩在施工中应注意的问题做了相应的限定。监测结果表明:基坑施工过程,预制方桩立柱最大沉降量为29.62mm,满足要求。表明所采用的这些关键技术措施,在实践中取得了较好的效果,值得在同类基坑工程中参考。
0 引 言
基坑支护是一项系统工程,也是一项风险工程,设计过程应充分认识支护工程的特点,设计方案既要保证整个支护结构的安全,又要方便施工、节约造价。目前,土地使用范围受限,支护结构不能超越用地范围红线,致使软土地区大部分基坑采用板式围护墙结合混凝土内支撑的支护型式。内支撑系统由水平支撑和竖向支承两部分基本构件组成。在常规的支护工程中竖向构件包括立柱和立柱桩两部分。其中立柱常采用角钢格构柱、H型钢[1]、钢管或者钢管混凝土柱,立柱桩常采用灌注桩、水泥土搅拌桩或者高压旋喷桩[2~3];部分工程采用PHC管桩[4]。根据工程需要,立柱和立柱桩进行组合设计。对大面积深基坑工程,竖向支撑系统采用上述组合型式,造价较高,不经济,且立柱桩需要较长的养护时间。
针对以上问题,结合工程实例通过对预制方桩用作支撑立柱的可行性进行分析,对该立柱型式的技术难度、设计要点及施工注意事项进行较为详细的阐述,并结合监测结果进一步证实了预制方桩用作内支撑立柱的可行性,希望为以后类似的工程提供一些借鉴。
1 工程实例
1.1 工程概况
本工程设2层地下室,基坑面积约17600m2,周长约535.0m。基坑北侧地下室外墙与用地红线最近距离约10.0m;南侧地下室外墙与用地红线最近约5.6m,西侧地下室外墙距离用地红线约9.0m;东侧地下室外墙距离用地红线约8.5m。
1.2 基坑支护设计概况
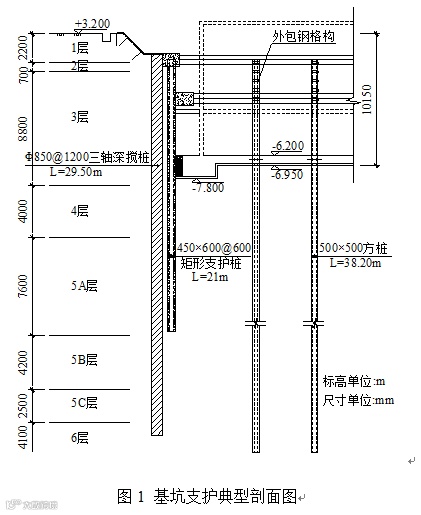
综合本工程基坑开挖深度、场地土质条件、周边环境保护要求以及工期及造价等因素考虑,本工程挡土支护桩采用450×600预应力高强度混凝土矩形支护桩,间距600mm。止水桩采用Ф850@1200三轴水泥土搅拌桩,水平向设置二道钢筋混凝土内支撑,竖向立柱体系采用边长500mm的预制方桩。支护型式详见图1。

2 关键的设计技术
2.1 预制方桩作为支撑立柱的可行性分析
竖向支撑体系包括立柱和其下的立柱桩。在允许的条件下尽可能利用主体结构工程桩以降低工程造价,提高工程经济性;受主体结构影响时,立柱桩应专门增设。
支撑立柱需满足基坑开挖阶段的受力和使用要求,而且应便于现场施工操作[6]。在大面积的深基坑工程中,由于各个工程的现场环境以及主体结构设计等条件各不相同,必须合理地采取有针对性的技术对策,既要保障基坑工程的安全,又要兼顾施工效率,有效的解决工程中出现的具体问题。
内支撑立柱一般按照轴心受压或者小偏心受压柱计算。传统的预制桩因其抗弯、抗裂能力较差,作为支撑立柱欠妥,但目前国内生产的高强度空心预制方桩,其抗弯、抗裂性能已提高,降低了原有混凝土方桩的施工破损率,且高强混凝土配方形头部,耐冲击性能较高,桩在施工中桩头破损几率很小。方形具有较大的焊接周长,充分保证每节桩之间的有效焊接强度,减小了施工中出现的节头脱焊或移位现象,使沉桩质量较易保证。因此,高强度预制方桩可作为内支撑竖向的立柱及立柱桩,即“一桩两用”。本工程设计采用PHS-B500(300)空心方桩作为立柱及立柱桩,现场实景详见图2。

2.2 预制方桩与首道支撑连接设计
支护桩、止水桩、工程桩及立柱桩施工结束后,开挖基坑内第一皮土方至第一道支撑底标高,人工清理立柱桩桩头。清除桩顶时,不得将桩头打得缺棱掉角、开裂、酥烂,避免影响预制桩与支撑的可靠牢固连接。
桩头清理后,在预制方桩外侧四周分别包焊4块125×125×10角钢,增大预制方桩立柱的强度,必要时可在外包角钢上施加预应力。角钢外侧加焊矩形钢缀板,其中支撑下第一块钢缀板尺寸为–440×450×12。外包角钢应锚入支撑梁内,其锚固长度与预制桩锚入支撑内的长度相同。锚入支撑内的角钢四周加焊长3.50m、直径为Φ25(HRB400级)钢筋的抗剪短钢筋。预制桩与角钢之间的间隙应采用等级不低于C30的素混凝土密实填充。预制方桩立柱与首道支撑的具体型式详见图3。

焊接结束后,在桩芯内插入连接主筋为6Φ20(HRB400级)钢筋笼,并填芯浇筑混凝土至第二道支撑底标高。填芯连接钢筋笼一般要求深入首道支撑内一定长度,露出桩截面500mm左右,露出的钢筋弯钩锚固在支撑里面,最后立柱桩桩头与内支撑整体浇注在一起。
2.2 预制方桩与二道支撑连接设计
预制方桩立柱与第二道内支撑的连接节点区,处于压、弯、剪复合受力状态,受力较复杂。节点区不同尺寸和材料的抗力元件上下、左右、前后交错,构造连接复杂。这种复杂的连接构造应合理、可靠、传力明确,不应力集中,方便构件加设、支撑钢筋绑扎及混凝土浇筑,实现“节点更强”的设计原则。第二道支撑与预制方桩立柱连接实施效果详见图4。

基坑工程中支撑梁为现浇钢筋混凝土梁,支撑纵筋会受到预制方桩立柱的影响,不能使梁内纵向主筋顺利贯通。若在节点处预制方桩立柱上开孔、现场穿过钢筋,方桩内需设置上下两层双向钢筋孔,消弱了桩壁,不利于保持节点的整体性。
现浇混凝土内支撑梁的宽度一般大于预制方桩立柱的边长,因此设计时,可采用梁纵筋绕过方桩的连接方式,将梁端局部增大、加宽,使梁顶面和底面纵向钢筋靠近桩边连续通过。同时可根据计算,必要时加设牛腿作为梁的支座以传递梁的剪力。梁端加宽的腋角边长不小于600mm,在梁宽的起点处,于钢筋转折点前后设置附加箍筋,以承受纵筋的侧向张力。
立柱与支撑连接节点,施工期间主要承受临时支撑竖向荷载引起的剪力,设计时一般根据剪力的大小计算确定后在节点位置立柱上设置足够数量的抗剪钢筋。图5为设置抗剪钢筋与临时支撑连接的节点示意。

2.4 预制方桩底板止水构造设计
基坑工程中由于预制桩立柱要在水平支撑全部拆除之后方能拆除,水平支撑则随着地下结构由下往上逐层施工而逐层拆除,因此立柱需穿越基础底板,方桩立柱与结构底板接缝处,将成为地下水往上渗流的通道,应根据防水等级要求采取多道防水措施设防。立柱底板防水现场照片详见图6。

预制桩立柱位置,基础底板设置施工缝,采用二次浇筑的型式,其中基础底板施工缝应设置在基础底板内部,即基础分两层施工,施工缝形成凹字形,把施工缝留在底板内部,降低基础底板漏水的几率。凹字后施工面积和深度应根据结构基础底板的厚度和配筋综合确定,不宜太大,深度建议取板厚的2/5。施工缝是混凝土结构的薄弱环节,也是地下工程易出现渗漏的部位,因此,其防水设防应采用多道设防的处理方法,具体防水措施详见图7。

基础底板施工缝以下,在预制桩外侧竖向包焊四块高度为30mm,尺寸为510×510×10方形钢片,且四块钢板焊接成一个整体;水平向包焊一块530×530×10封闭的方形钢板。竖向钢板与预制桩间隙密实填充环氧树脂或者丙烯酸脂胶乳类防水涂料等其它柔性防水材料,不宜采用刚性防水材料。最上端预制立柱四侧采用四块L140×140×10角钢包焊,形成两道防水,通过延长渗水途径起到止水目的。
后期预制方桩凿除后,采用一块–600×600×10盖在角钢上面,四边与密封角钢焊接牢固。立柱位置留空浇筑,待立柱凿除干净后,将施工缝凿毛,设置尺寸为20×30的遇水膨胀止水条,并采用水泥钉固定,然后填充微膨胀混凝土。
3 监测结果分析
本工程从基坑开挖至第一道内支撑底标高开始到拆除第二道内支撑期间,对预制桩立柱先后进行了20次沉降观测,其中图8为五个关键部位的立柱沉降变化曲线。从图8可看出,预制桩立柱的沉降变化规律基本相似,均为回弹和沉降相互交叉。其中从第二道支撑施工到向下开挖土方至坑底(第十三次监测)这一段时间内,立柱沉降发展迅速。地下结构施工期间沉降仍继续发展,但沉降速度明显减慢,之后各测点的沉降缓慢趋向稳定。

从图8中可看出,LZ2号立柱发生最大沉降为29.62mm;LZ1号立柱发生最大沉降最小沉降为18.51mm;LZ4号立柱和LZ5号立柱最大沉降两者均接近于25.00mm。存在差异沉降是因立柱的沉降存在“时空效应”,LZ2号立柱和LZ5号立柱在先开挖的区域内。因此,沉降大于其它立柱。但是在整个基坑施工过程预制桩立柱没有发现裂缝。表明采用预制方桩作支撑立柱能够较好地承担基坑开挖过程中支撑自重及部分竖向荷载。
4 结 论
目前相关基坑支护技术规范未明确内支撑立柱桩的具体设计方式,但在工程设计中,既要保证立柱、立柱桩的设计承载力具备足够的安全度,又要保证立柱与支撑连接的可靠性,并应提出全面的质量检测要求。
本工程施工已结束,实测结果表明,基坑开挖与地下结构施工阶段,立柱沉降均在可控范围内,对支撑稳定无安全影响,该方式是可行的、有效的。这说明本工程设计的预制方桩用作混凝土内支撑立柱的新技术是较成功的,可为今后类似的基坑工程提供一些借鉴。
END
来源:互联网
我们致力于保护作者版权,内容来源均已标明出处,仅作传播分享知识作用,
无其他任何商业性盈利作用,如有侵权,请联系我们删除。

