自动检重喷码系统的解决方案(一):
其实本系统可用运用于各行业的包装、检重等。主要原理是:产品经过称重模块后,读取实际重量,然后通过PLC控制喷码机自动将所称重量数值喷印在外包装上工,先通过称重器称出产品重量,将数据发送到我们的软件计算再将数据发给喷码机或打印机进行喷码或打印。
ZHB25K-2C3MR是一个非常紧凑的在线自动检重秤和喷码组合系统,她不仅融入了标准的ZHB25K-C3MR自动检重秤的所有功能、选项和配件,而且还包括一个高真免维护喷码系统。这两种技术的结合以及触摸屏用户界面使得这一设备成为要求具备有效的品牌保护但安装空间有限的所有应用领域的最佳选择。
ZHB25K-2C3MR检重喷码系统是为现有或新的生产线提供重量自动跟踪与追朔打码功能的完整系统化解决方案。包括自动检重、喷码式打印或激光喷码系统以及信号及位置自动追朔、机械传送装置与分选设备在内的所有组件,均按照最佳配合工作方式合理调整。她的高精度传送装置可以直接实现高速动态称重并将其传送到最佳位置时进行序列化喷码,自动替代以往的传统作业。
此系统采用行业公认的模块化设计,可以装配各种世界领先的喷墨打印或激光打码系统。具有触摸屏界面,可存储多个产品牌号,调整和操作简单快捷,节省停机时间,提高效率。
ZHB25K-2C3MR检重喷码系统的设计特别紧凑,占地面积较小。在工厂场地有限的情况下,实现了完美的应用,可以毫不费力地接入您现有的生产线中。
重量检测机与喷码的组合尤其适用于肉制品/熟食/水果蔬菜等生产企业。因为肉制品切割后的重量不唯一,所以在重量检测机后端组合喷码机,将该产品的重量直接喷印于产品包装,可有效的减少重复操作,为企业节约包装成本。
药妆自动在线检重/喷码/封箱组合机(二):
主要目的:实现对整箱产品自动检重/喷码和封箱联动生产
具体要求如下:产品由人工装箱/自动装箱机通过生产线进入自动检重设备,符合标准重量的包装箱将进行重量喷码(喷码要求为三行,字体大小为16*8mm中英文及数字。第一行为:批号:2A2014 第二行为:生产日期:20140508 第三行为:重量:18.65Kg或18650g)。随后进入封箱机自动封箱并由人工码垛/机器码垛,不符合重量的包装箱将由喷码机前端的剔除装置自动踢出。
本设备在使用前首先在称重显示器上设定好产品的批号和此产品的上下限重量值。如批号为2A2014的产品,他的标准重量是18.65Kg,此时我们将根据工厂对本批号产品的标准重量要求来设定上下限重量值,如上限重量值规定为18.75Kg,那么上限重量值就设定为18.75Kg,下限重量值规定为18.55Kg,那么下限重量值就设定为18.55Kg。速度根据产量要求可任意设置,不过在出厂之前我们已经设置了最大产量的速度,一般情况下不必改变就能满足高低速要求。在18.55Kg-18.75Kg之间的产品将被输送到后端进行喷码和封箱,小于18.55Kg和大于18.75Kg的产品将由喷码机前端的剔除装置自动剔出。生产日期将自动生成不必设置。
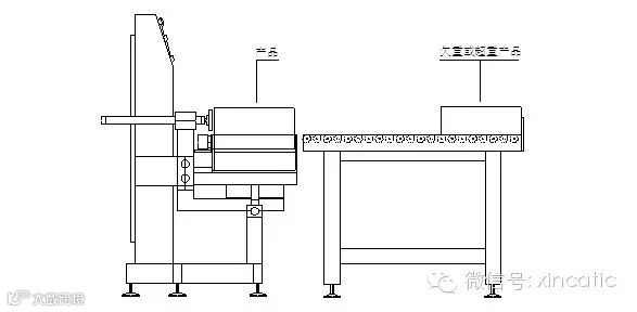
主体结构如下示意图:
检重喷码封箱联动线主体示意图


具体操作详见说明书
注:以上示意图直供参考,实物的某些结构会根据产品测量要求有所改变。
想了解更多鑫中航产品信息,请扫描下面的二维码与我们进行互动吧!或欢迎访问官方网站:http://www.xincatic.com



