施工工艺流程

(1)施工准备
1、模板施工方案及配模计划齐全,并进行交底;模板按照放样尺寸制作;拼接相邻两模板表面高低差控制在2mm 以内。
2、使用材料必须满足方案及规范要求,模板应涂刷脱模剂,编号分类堆放,二次周转使用前必须清理干净。
3、使用机具准备到位。

(2) 弹柱边线及控制线
1、按图纸要求弹出横竖向轴线、柱子边线及控制线。
2、柱轴线部位可采用红色边长50mm 的“△”标记,并标记“轴线”二字。
3、柱边线采用墨线沿设计柱边位置弹出框线;边框线宜两端各延长不少于20cm,备做吊线检查使用。
4、柱边线向外偏移500mm 处用墨线平行于柱边线弹柱控制线。

(3)剔凿混凝土表面浮浆
1、柱根凿毛,首先剔除柱边线范围内的砼浮浆,直至露出均匀的石子。
2、凿毛深度不小于5mm,应将剔凿点间距控制在20~30mm 以内,凿毛应覆盖柱边线内全部范围。
3、剔除的浮浆残渣及时清理,并用水冲洗干净。
4、应经过监理和业主检查验收。

(4)弹柱边线及控制线
支模前先在墙柱轮廓线外200mm位置弹出墙柱控制线,用来复核墙柱支模。按放出的柱边线焊接Ø20内截面控制筋,每个方向两根。(直径同箍筋,设置于柱模上中下三道)或者在放出的柱边线的柱四个角钻孔打入限位筋。

(5)安装柱模板
1、按放线位置先钉好压脚板再安装柱模板。
2、柱子两垂直向加斜拉顶撑。
3、柱根部缝隙封堵到位,也可采用砂浆将柱根部外围封堵,不宜采取下压海绵条或其他杂物塞填等形式。
4、柱子截面内部尺寸控制在+4、-5mm 以内。

(6)安装柱箍
1、柱箍材料选择应根据模板施工方案进行确定。
2、柱箍间距应符合方案设计要求、并加固牢靠。
3、柱箍安装应保证其水平,单边长度超过500mm 的柱应考虑设计对拉螺杆加强,对拉螺栓直径应通过计算确定,螺杆扭矩值符合方案要求。

(7)校正垂直度、柱模板验收
1、检查垂直度前首先对其控制线进行复核,再进行垂直度检查。
2、模板拼缝严密,相邻两模板表面高低差控制在2mm以内。
3、层高≤5m 时垂直度偏差控制在6mm 以内,层高>5m 时,垂直度控制在8mm 以内。
4、模板柱箍和对拉螺杆符合设计要求,对拉螺杆间距不大于500mm。
5、柱根部封堵符合要求。
施工工艺流程
(8)施工准备工作(弹轴线及定位线)
1、模板施工方案及配模计划齐全,并进行交底;模板按照放样尺寸制作。
2、使用材料必须满足方案及规范要求,模板应涂刷脱模剂,分类堆放,并清理干净。
3、使用机具准备到位。
4、在柱子上弹出轴线、梁位置及水平线,轴线允许偏差5mm,梁截面尺寸线允许偏差+4mm、-5mm。

(9)梁板满堂架搭设
1、架体搭设应符合规范及模板设计专项施工方案要求。
2、梁下支柱支承在基土面上时,应对基土平整夯实,满足承载力要求,并在立杆底加设厚度≮100mm 的硬木垫板或混凝土垫板等有效措施,确保混凝土在浇筑过程中不会发生支撑下沉。
3、支架立杆的垂直度偏差不宜大于5/1000,且不应大于100mm。
4、在立杆底部的水平方向上应按纵下横上的次序设置扫地杆。

(10)安装梁底模
1、根据图纸计算出梁底小横杆标高,并固定牢固。
2、梁底模安装前先钉柱头模板,底模安装时需拉线找平,梁跨度≥4m 时,应按规范要求起拱, 起拱高度宜为梁跨度的1/1000~3/1000。起拱顺序:先主梁起拱后次梁起拱。
3、模板支设完成后,应对梁底模板标高进行复核。

(11)安装梁侧模
1、 梁侧模制作高度应根据梁高及楼板厚度确定。
2、支模宜遵循边模包底模的原则。
3、 梁侧模板须拉线安装。
4、如遇到梁高超过650mm 时,侧模板安装先安装一边,等梁钢筋绑扎完毕后再进行另一侧梁模板的安装,有效安排工序先后情况,以满足施工要求。

(12)侧模加固及梁模板验收
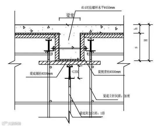
1、梁高超过600mm 时,梁侧模宜加穿梁螺栓加固。
2、梁侧模必须有压脚板、斜撑,拉线通直后将梁侧钉牢。
3、梁侧模板应垂直,梁内截面尺寸偏差应控制在+4,-5mm 内。
4、梁模板加固方式符合模板施工方案。
(1)柱模板安装
工艺说明:按图纸尺寸制作柱侧模板后,测放好柱的位置线,钉好压脚板后再安装柱模板,两垂直向加斜拉顶撑。柱模安装完成后,应全面复核模板的垂直度、对角线斜拉长度差及截面尺寸等项目。柱模板支撑必须牢固,预埋件、预留孔洞严禁漏设且必须准确、稳劳。
(2)梁模板安装
工艺说明:当梁高超过600mm时,梁侧模须必须采用对拉螺杆加固,梁下必须设单独立杆并与支模架有机连接,且连接点数不少于两处。

(3)边梁模板安装
工艺说明:边梁支模体系严禁与外架连接。

(4)板模板安装
工艺说明:根据立杆支撑位置图放线,保证每层立杆都在同一条垂直线上,应确保上下支撑在同一竖向位置上。对需起拱的模板,应先支好模板,然后将跨中的可调支托丝扣向上调动,调到要求的起拱高度。

(5)剪力墙模板安装
工艺说明:剪力墙外墙模板安装时,需预留老螺杆并贴海绵胶,防止上下层接茬处错台及漏浆。内墙墙根处为防止烂根,模板下部外侧采用砂浆封堵。


