
治愈生活的良方,就是保持对生活的热爱。
The cure for life is to keep the love of life.
▶背景情况,About the Owner
成员构成:爱好阅读和音乐,喜欢品尝美酒和咖啡的一位女业主
建筑面积:76m²
项目风格:日式奶油风
项目材料:木材 瓷砖 涂料 玻璃
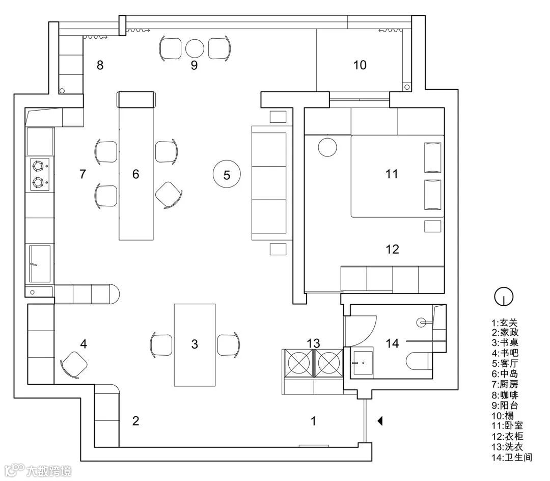
设计理念:由于每个空间相对孤立而且连接不够舒适,为了能赋予整体空间更全面的布局和为业主量身定制适合日常起居的功能安排,于是把厨房的非承重墙拆掉,将客厅、餐厅、厨房以及阳台整合成一个大空间。在空间最核心处设置一个中岛,成为连接客厅、餐厅、厨房以及阳台连接纽带,从而达到起居空间各项功能围绕中岛吧台展开。
The hotess likes reading and music, and enjoys drinking wine and coffee.
Area:76m²
Style:Japanese-style cream
Materials:Wood Tile Paint Glass
The Design Concept:Because of each space is relatively isolated and the connection is not comfortable enough,in order to provide the house a more comprehensive layout and customize the functional arrangement suitable for daily living for the owner,the non-load-bearing wall of the kitchen is removed, and the living room, dining room, kitchen and balcony are combined into a large space.A middle island is set at the core of the space, which connects the living room, dining room, kitchen and balcony, so that all functions of the living space are spread out around the middle island bar.
▼SketchUp模型,SketchUp model

▼空间概览,Overall view of the space

01/
玄关处
The entrance
▼玄关,Entrance

玄关处与家政区安放在采光较弱的北向进门处,同时将鞋物、挂衣的收纳柜体以及烘洗机组合在一起。
The entrance and housekeeping room are in the north entrance with weak lighting.And place shoes, clothes-hanging cabinet and dryer together.
▼家政区,Housekeeping Room

▼工作区,Work area


作为家中多种功能中补充功能的工作区,贴合中岛南侧位置的设计,把洗衣机和玄关柜的侧板做成书写板和书桌相对应。
As a complementary work area among various functions of the home, the design fits the south side of the middle island, and the side panels of the washing machine and the porch cabinet are made into writing boards corresponding to the desks.
02/
餐厨空间
Dinning room & kitchen
▼吧台区,The bar counter

把厨房的非承重墙拆掉,达到客餐厨一体,形成起居功能区围绕岛台分布的格局。
Remove the non-load-bearing wall of the kitchen, so as to achieve the integration of guest, dining and kitchen, and form a pattern of living area distributed around the island.

中岛吧台的设计可以让业主在休闲时光里,享受与美食、美酒和咖啡的独处时光。
The central island bar is designed to allow the owners to enjoy some alone time with food, wine and coffee during their leisure time.
▼餐厨空间细节,Kitchen space details

03/
起居室
Living room
▼起居室,Living room

起居室在室内造型风格、环境氛围方面常起到主导的作用。涵盖了多个区域:餐厅岛台、沙发区、厨房和咖啡吧功能区,让做饭变得更有趣。假如约上几个知己相聚,品尝咖啡美食,大笑畅谈,享受美好时光是件多美好的事。
Living room plays an important role in interior style and environment.It contains many areas: dining island, sofa area, kitchen and coffee bar to make cooking more fun.It is a beautiful thing to meet with friends in the house to enjoy coffee,tasting food and talking.
▼沙发区,Sofa area


04/
卧室
Bedroom
▼卧室整体,Bedroom ensemble

卧室是一个纯休息的空间,保持原本墙体不变,通过入墙移门与起居室分隔开。将书柜设置成与窗台一样的高度,摆放绿植作为点缀,百叶窗作为装饰的同时还能保证私密。书柜的对面是设计一门到顶的木纹衣柜,柜门无拉手设计让整体显得更为简约干净,并且也能满足收纳储物功能。
The bedroom just for resting,to keep the wall unchange and separate from the living room by a sliding door into the wall.The height of the bookcase is the same of the window sill,and decorate with plants.Louvers are designed to be both decorative and private.Opposite the bookcase is a door to the top of the design of wood grain wardrobe.Cabinet door without handle design makes the whole look more simple and clean, and can also meet the storage function.
▼书柜,Bookcase

▼衣柜,Wardrobe

05/
阳台
Balcony
▼阳台中的休憩榻,Rest bed in balcony

▼阳台中的咖啡吧,Coffee bar on the balcony

▼ 改造前( 左 )和 改造后( 右 )户型,
House type before (left) & after (right) reconstruction


◎Thanks for watching

▶延伸阅读
#图片源自网络,侵权私信删
- END -


