01/
Simple life, Rich heart
‘ 简约人生、丰盈内心 ’
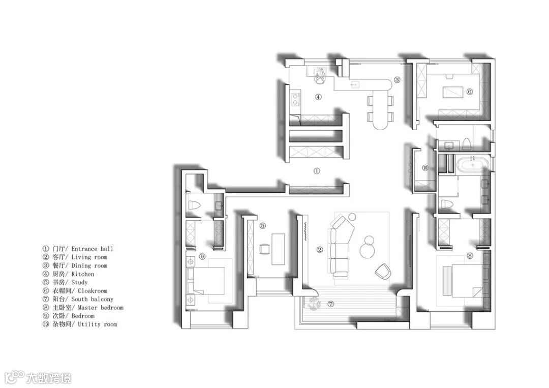
在简单轮廓的空间整体中,
入宅即映入眼帘的裸色主色调
In a simple outline of the overall space
the main nude color tone that
comes into view when entering the house


演意设计深入挖掘业主对于“家”之独有生活方式的考量和追求,在原有格局中规中矩的基础上,以严谨细腻的艺术笔法勾勒契合个人审美与个性偏好的场景优化定制,容纳生活方式、家庭关系、社交互动多维合一的居家质感体验。

The more fluid, the more comfortable


去除多余隔墙的开放式形态贯穿在公共区域中,将环境与建筑的天然优势最大化,释放大宅风度。无碍相通的客餐厅整合之外,阳台与客厅亦经由大落地窗而融为一体,将窗外美景自然“框”进室内,纱帘的奶油雾感在光影下平添流动的视觉美感。


家具多以弧线型的包裹感诠释舒适与温馨的第一要义。壁炉则以沙发高度为参照,在石材的纹路背景下火光熠熠,立体了空间的纵深记忆,为“流动”姿态增添时光烟火的温度与诗意。

开放式厨房将岛台延伸至餐桌,形成一体式的就餐、咖啡、吧台、社交区域,去繁至简的设计激发轻快自然的都市时尚行为方式,也为包容和谐的家庭互动提供了更多可能性。




The poetic nature of memory

大地色系搭配深深浅浅的木质系统
让卧室和书房弥漫着内在的沉浸气息
利用色块差异勾勒层次
自然而然形成视觉的缓冲与递进
Earth color system with deep and shallow wood system,
let bedroom and study filled with internal immersion atmosphere,
using color block difference outline level,
naturally form visual buffer and progression.





#图片源自网络,侵权私信删#

- 延伸阅读 -

