随着时间的洗礼,人们的生活越来越喜欢删繁就简,对于房屋装修更喜欢简约的风格,家是让人能够放松心情,褪却烦恼的地方。如何一回到家就能精神放松,家里的装修风格也很重要。这种简单的现代风格,很受大家的追捧。
项目信息
|
户型面积 |
150m² |
|
设计风格 |
现代风格 |
|
户型配置 |
三房两厅 |
|
楼盘名称 |
星河湾荟心园 |
|
装修公司 |
广州大辰装饰 |


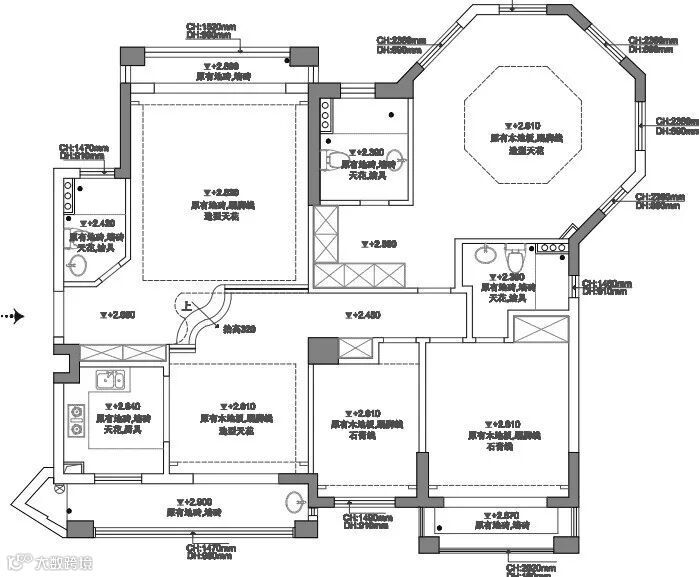
原始结构图

平面方案图



现代装修风格注重展现建筑结构的形式美,探究材料自身的质地和色彩搭配的效果,实现以功能布局为核心的不对称非传统的构图方法。
摒弃过于繁琐的设计,将空间还给空间,保持室内的宽敞和内外通透,追求在自己的家中不受束缚的自由。


整洁清爽的餐厅,空间整体是一个灰雅的搭配,与客厅交相辉映,整体空间充斥着时尚气息。一家人其乐融融就餐的幸福时光。


在软装方面,现代装修风格选用的产品多为造型简约的装饰品。家具和日用品多采用直线、玻璃、金属等材质,利用质感的丰盈和造型的简洁来达到空间的高级感。


在家具及配饰上,延续了简洁的色调,造型精致营造出时尚前卫的感觉,使空间倍感时尚,具有舒适与美观的现代家居生活。


在都市的喧闹和紧张的生活中,越来越多的人们开始摒弃繁缛的装修风格,而转向自然简约的装修风格,比起繁华的生活环境,人们也更倾向于轻松随意的生活环境。
夏辉
| 金湖翡翠别墅
| 天湖峰镜别墅
| 颐和高尔夫庄园
| 珊瑚湾畔别墅
| 黄埔古巷
| 凯旋新世界
| 流花君庭
设计理念:设计改变环境,环境改善生活!






